Arundel Road, Angmering, West Sussex

- PROPERTY TYPE
Bungalow
- BEDROOMS
2
- BATHROOMS
2
- SIZE
Ask agent
Key features
- Two double bedrooms
- Private entrance
- Village location
- Warden-assisted development
- Communal garden
- Communal facilities
- Exclusively for over-60s
- Two bathrooms
Description
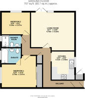
The property offers two double bedrooms and two bathrooms, including an en-suite shower room to the principal bedroom. A private entrance provides a sense of independence, while patio doors open directly onto the well maintained communal gardens, perfect for enjoying the outdoors.
Set within a warden assisted development, residents benefit from a supportive environment along with access to communal facilities, ideal for socialising and added peace of mind. This delightful bungalow combines comfort, security, and village living.
Nestled in the heart of a charming village, this delightful ground floor retirement flat offers a tranquil retreat for those seeking a peaceful lifestyle. Boasting two generously sized bedrooms, and two bathrooms. This property is perfect for downsizers or those looking to enjoy retirement in a warden-assisted community. The apartment features a communal garden, ideal for relaxing outdoors and socializing with neighbors. The interior is bright and airy, with a well-designed layout that maximizes space and functionality. Situated in a sought-after location, this property offers convenient access to local amenities, shops, and transport links. Don't miss the opportunity to make this lovely flat your new home and enjoy the serenity and convenience it has to offer. Contact us today to arrange a viewing.
Brochures
Particulars- COUNCIL TAXA payment made to your local authority in order to pay for local services like schools, libraries, and refuse collection. The amount you pay depends on the value of the property.Read more about council Tax in our glossary page.
- Band: C
- PARKINGDetails of how and where vehicles can be parked, and any associated costs.Read more about parking in our glossary page.
- Residents
- GARDENA property has access to an outdoor space, which could be private or shared.
- Ask agent
- ACCESSIBILITYHow a property has been adapted to meet the needs of vulnerable or disabled individuals.Read more about accessibility in our glossary page.
- Ask agent
Energy performance certificate - ask agent
Arundel Road, Angmering, West Sussex
Add an important place to see how long it'd take to get there from our property listings.
__mins driving to your place
Get an instant, personalised result:
- Show sellers you’re serious
- Secure viewings faster with agents
- No impact on your credit score
About Graham Butt Estate Agents, Angmering
The Square High Street, Angmering, Littlehampton, BN16 4AE



Your mortgage
Notes
Staying secure when looking for property
Ensure you're up to date with our latest advice on how to avoid fraud or scams when looking for property online.
Visit our security centre to find out moreDisclaimer - Property reference ANG230057. The information displayed about this property comprises a property advertisement. Rightmove.co.uk makes no warranty as to the accuracy or completeness of the advertisement or any linked or associated information, and Rightmove has no control over the content. This property advertisement does not constitute property particulars. The information is provided and maintained by Graham Butt Estate Agents, Angmering. Please contact the selling agent or developer directly to obtain any information which may be available under the terms of The Energy Performance of Buildings (Certificates and Inspections) (England and Wales) Regulations 2007 or the Home Report if in relation to a residential property in Scotland.
*This is the average speed from the provider with the fastest broadband package available at this postcode. The average speed displayed is based on the download speeds of at least 50% of customers at peak time (8pm to 10pm). Fibre/cable services at the postcode are subject to availability and may differ between properties within a postcode. Speeds can be affected by a range of technical and environmental factors. The speed at the property may be lower than that listed above. You can check the estimated speed and confirm availability to a property prior to purchasing on the broadband provider's website. Providers may increase charges. The information is provided and maintained by Decision Technologies Limited. **This is indicative only and based on a 2-person household with multiple devices and simultaneous usage. Broadband performance is affected by multiple factors including number of occupants and devices, simultaneous usage, router range etc. For more information speak to your broadband provider.
Map data ©OpenStreetMap contributors.




