
Upper New Walk, Leicester, LE1

- PROPERTY TYPE
Block of Apartments
- BEDROOMS
4
- BATHROOMS
4
- SIZE
Ask agent
- TENUREDescribes how you own a property. There are different types of tenure - freehold, leasehold, and commonhold.Read more about tenure in our glossary page.
Freehold
Key features
- Period Villa
- Four Floors Of Living Space
- One Apartment On Each Floor
- Potential For Modernisation
- Close To University Campus
- Adjacent To Victoria Park
- South After Location
- Potential For Parking To Frontage
- Protective Tenancy For One Apartment
Description
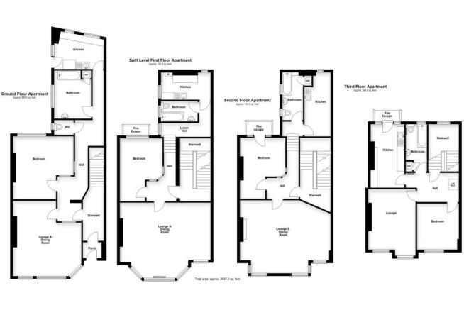
INVESTMENT PURCHASE / CASH BUYERS ONLY - A substantial period dwelling and a fantastic buy to let opportunity, situated in without doubt one of the city's most highly regarded locations close to local amenities and shopping with Victoria Park and the university campus just a stones throw away. The accommodation, situated over four spacious levels with rear fire escape, includes a flat on each level - three of which are currently let (one of which is a protected tenancy) and the other recently vacant. There is huge scope for modernisation and re-configuring throughout to allow three of the four to convert from one to two-bedrooms. Viewings strictly via Moore & York.
Porch
With partially glazed exterior door and internal door to:
Entrance Hall
With staircase rising to the upper floors, lighting and access off to:
Hallway
With access to the living and dining room, large double bedroom, WC , bathroom and kitchen.
Living & Dining Room
5.54m x 5.03m
With half bay windows, cornicing, and impressive high ceiling. Ample space for seating and dining.
Bedroom
4.62m x 4.35m
With window to the rear elevation, internal high level windows.
Wc
1.44m x 1.1m
Window to the side elevation, lighting, close coupled WC.
Bathroom
3.53m x 2.74m
With window to the side elevation, cupboard with hot water cylinder, paneled bath and wash basin.
Kitchen
3.65m x 2.5m
With various work surfaces and windows to side and rear plus door leading outwards and down via steps into the rear yard where there is access to a brick built single store.
First Floor Stair Case & Landing
With staircase rising and falling to the lower and upper floors, lighting and access off to:
Hallway
A split level space with the rear on the lower mezzanine level. Gives access to the living and dining room, large double bedroom, bathroom and kitchen.
Lounge & Dining Room
6.67m x 4.38m
With wide bay to the front elevation, tiled fire surround, ceiling light.
Double Bedroom
3.06m x 4.62m
With window to the rear elevation, lighting and internal windows to the hall.
Bathroom
2.73m x 1.46m
With three piece suite and window to the side elevation.
Kitchen
3.66m x 2m
With base units, worktops and wall mounted boiler with single radiator. Window to the side elevation, sink with drainer.
Second Floor Stairwell & Landing
With staircase rising and falling to the lower and upper floors, lighting and access off to:
Hallway
5.67m x 2.35m
A split level space with the rear on the lower mezzanine level. Gives access to the living and dining room, large double bedroom, bathroom and kitchen.
Living & Dining Room
6.67m x 4.41m
6.67m x 4.41m (21' 11" x 14' 6" plus bay) With wide bay to the front elevation, tiled fire surround, ceiling light.
Double Bedroom
3.2m x 4.63m
3.20m x 4.63m (10' 6" x 15' 2" max) With French window to the rear elevation, lighting and internal windows to the hall.
Bathroom
3.51m x 1.52m
With three piece suite, built in cupboard with hot water cylinder and two windows to the side elevation.
Kitchen
4.6m x 2.04m
With base units, worktops. Window to the rear elevation, sink with drainer.
Third Floor Stairwell & Landing
3.29m x 2.25m
The landing space having room for furniture with window to the rear elevation - a set of steps leads up and off to:
Hallway
3.91m x 2.14m
3.91m x 2.14m (12' 10" x 7' 0" max) With wooden loft staircase leading via hatch to the roof space, lighting electric heater and access to the lounge, bedroom, kitchen and bathroom.
Lounge
3.49m x 4.89m
3.49m x 4.89m (11' 5" x 16' 1" max) Windows to the front elevation, lighting and power points.
Double Bedroom
3.39m x 3.06m
Window to the front elevation, lighting and power points.
Kitchen
4.65m x 2.48m
With units and worktops, French door to the rear elevation, lighting, sink with drainer.
Bathroom
3.47m x 1.56m
With three piece suite, built in cupboard with hot water cylinder and window to the rear elevation.
Council Tax Band(s)
The Apartments from ground to third floor have council tax bands of: B,A,A,A respectively.
EPC Ratings
Apartment 2 (First Floor) has an EPC rating of D - all others are in process and will be available shortly.
Making An Offer
As part of our service to our Vendors, we have a responsibility to ensure that all potential buyers are in a position to proceed with any offer they make and would therefore ask any potential purchaser to speak with our Mortgage Advisor to discuss and establish how they intend to fund their purchase. Additionally, we can offer Independent Financial Advice and are able to source mortgages from the whole of the market, helping you secure the best possible deal, potentially saving you money.
If you are making a cash offer, we will ask you to confirm the source and availability of your funds in order to present your offer in the best possible light to our Vendor.
Money Laundering Checks
If you have an offer agreed we are legally bound to carry out ID and Anti-Money Laundering checks and on acceptance of offer one of our onboarding team will contact you to guide you through this secure process. There will be a upfront cost of this of £79.99 plus VAT for these checks.
Plot / Floor Plans
Purchasers should note that the floor/Plot plan(s) included within the property particulars is/are intended to show the relationship between rooms/boundaries and do not necessarily reflect exact dimensions. Plans are produced for guidance only and are not necessarily to scale. Purchasers must satisfy themselves of matters of importance regarding dimensions or other details by inspection or advice from their Surveyor or Solicitor.
Important Information
Measurements or distances are approximate. The text, photographs and plans are for guidance only and are not necessarily comprehensive. It should not be assumed that the property has all necessary planning, building regulation or other consents. Moore & York have not tested any services, equipment or facilities. Purchasers must satisfy themselves by inspection or otherwise. We have not made any investigations into the existence or otherwise of any issues concerning pollution of land, air or water contamination and the purchaser is responsible for making his own enquiries in this regard.
For clarification we wish to inform any prospective purchasers that we have prepared these sales particulars as a general guide. They must not be relied upon as statements of fact. We have not carried out a detailed survey, nor tested the services, heating systems, appliances and specific fittings. Room sizes should not be relied upon for carpets and furnishings. If there are points which are of part...
Yard
The rear yard is walled with access to a small brick built store and is given over in part to the fire escape which serves the upper floors. There is gated access via a rear service yard which also allows access to neighboring properties.
Front Garden
The frontage is planted with shrubs and trees with walling, wrought iron railings to the perimeter - it is possible that the frontage could potentially be converted to car parking for two to three vehicles (depending on size) subject to any necessary consent(s) as we understanding there is a right of access across neighbouring frontages that are already converted. ACCESS is from London road via Salisbury Avenue located on the right hand side if heading southbound away from the city centre, just prior to the major junction with Granville Road.
Parking - On street
We would advise parking in the pay and display car park across Granville Road.
- COUNCIL TAXA payment made to your local authority in order to pay for local services like schools, libraries, and refuse collection. The amount you pay depends on the value of the property.Read more about council Tax in our glossary page.
- Band: A
- PARKINGDetails of how and where vehicles can be parked, and any associated costs.Read more about parking in our glossary page.
- On street
- GARDENA property has access to an outdoor space, which could be private or shared.
- Front garden,Private garden
- ACCESSIBILITYHow a property has been adapted to meet the needs of vulnerable or disabled individuals.Read more about accessibility in our glossary page.
- Ask agent
Energy performance certificate - ask agent
Upper New Walk, Leicester, LE1
Add an important place to see how long it'd take to get there from our property listings.
__mins driving to your place
Get an instant, personalised result:
- Show sellers you’re serious
- Secure viewings faster with agents
- No impact on your credit score

Your mortgage
Notes
Staying secure when looking for property
Ensure you're up to date with our latest advice on how to avoid fraud or scams when looking for property online.
Visit our security centre to find out moreDisclaimer - Property reference b6ec8e6f-4b0c-4da2-8acc-38afe02a25aa. The information displayed about this property comprises a property advertisement. Rightmove.co.uk makes no warranty as to the accuracy or completeness of the advertisement or any linked or associated information, and Rightmove has no control over the content. This property advertisement does not constitute property particulars. The information is provided and maintained by Moore & York, Covering Leicestershire. Please contact the selling agent or developer directly to obtain any information which may be available under the terms of The Energy Performance of Buildings (Certificates and Inspections) (England and Wales) Regulations 2007 or the Home Report if in relation to a residential property in Scotland.
*This is the average speed from the provider with the fastest broadband package available at this postcode. The average speed displayed is based on the download speeds of at least 50% of customers at peak time (8pm to 10pm). Fibre/cable services at the postcode are subject to availability and may differ between properties within a postcode. Speeds can be affected by a range of technical and environmental factors. The speed at the property may be lower than that listed above. You can check the estimated speed and confirm availability to a property prior to purchasing on the broadband provider's website. Providers may increase charges. The information is provided and maintained by Decision Technologies Limited. **This is indicative only and based on a 2-person household with multiple devices and simultaneous usage. Broadband performance is affected by multiple factors including number of occupants and devices, simultaneous usage, router range etc. For more information speak to your broadband provider.
Map data ©OpenStreetMap contributors.






