Land for sale
Land at Longdown Road, Longdown, Exeter, Devon, EX6 7SR
- PROPERTY TYPE
Land
- BEDROOMS
1
- SIZE
Ask agent
Key features
- For sale by online auction
- Register at tcpa.co.uk
- 0.12 Acre Plot
- Superb Rural Position
- Planning Approved
- 3 Bedroom Detached Dwelling
Description
0.12 Acre plot with magnificent views
Description
This 0.12 acre plot is located in the village of Longdown, which lies in a beautiful rural setting. Just three miles from the centre of Exeter, providing the best of country living with convenient access to all of the city's amenities and transport links.
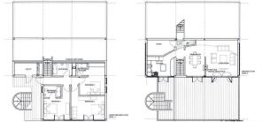
Full planning permission was accepted for the development of one substantial detached dwelling and benefits from truly magnificent forestry views. The proposed property features 3 bedrooms, with a kitchen, lounge, dining area and study. Designed to combine modern life with country living, a total area of 196.2 square metres.
** PLANNING REF 13/00124/FUL **
Legal PackA legal pack is a collaboration of important documents of the property or land that is going to be sold at auction. To review the legal pack, click the Legal Documents button at the bottom of this advert or visit tcpa.co.uk.
Auction Information.
To view the auction information, click the Online Bidding button at the bottom of this advert or visit tcpa.co.uk.
UNCONDITIONAL LOT Buyers Premium Applies Upon the fall of the hammer, the Purchaser shall pay a 5% deposit and a %+VAT (subject to a minimum of £5,000+VAT) buyers premium and contracts are exchanged. The purchaser is legally bound to buy and the vendor is legally bound to sell the Property/Lot. The auction conditions require a full legal completion 28 days following the auction (unless otherwise stated).The seller of this property may consider a pre-auction offer prior to the auction date. All auction conditions will remain the same for pre-auction offers which include but are not limited to, the special auction conditions which can be viewed within the legal pack, the Buyer's Premium, and the deposit. To make a pre-auction offer we will require two forms of ID, proof of your ability to purchase the property and complete our auction registration processes online. To find out more information or to make a pre-auction offer please contact us.Special Conditions
Any additional costs will be listed in the Special Conditions within the legal pack and these costs will be payable on completion. The legal pack is available to download free of charge under the LEGAL DOCUMENTS'. Any stamp duty and/or government taxes are not included within the Special Conditions within the legal pack and all potential buyers must make their own investigations.
Brochures
Legal DocumentsOnline BiddingLand at Longdown Road, Longdown, Exeter, Devon, EX6 7SR
NEAREST STATIONS
Distances are straight line measurements from the centre of the postcode- Exeter St. Thomas Station3.1 miles
- Exeter St. Davids Station3.2 miles
- Exeter Central Station3.5 miles
Notes
Disclaimer - Property reference 328158. The information displayed about this property comprises a property advertisement. Rightmove.co.uk makes no warranty as to the accuracy or completeness of the advertisement or any linked or associated information, and Rightmove has no control over the content. This property advertisement does not constitute property particulars. The information is provided and maintained by Town & Country Property Auctions, Wrexham - Auctions. Please contact the selling agent or developer directly to obtain any information which may be available under the terms of The Energy Performance of Buildings (Certificates and Inspections) (England and Wales) Regulations 2007 or the Home Report if in relation to a residential property in Scotland.
Auction Fees: The purchase of this property may include associated fees not listed here, as it is to be sold via auction. To find out more about the fees associated with this property please call Town & Country Property Auctions, Wrexham - Auctions on 01978 803835.
*Guide Price: An indication of a seller's minimum expectation at auction and given as a Guide Price or a range of Guide Prices. This is not necessarily the figure a property will sell for and is subject to change prior to the auction.
Reserve Price: Each auction property will be subject to a Reserve Price below which the property cannot be sold at auction. Normally the Reserve Price will be set within the range of Guide Prices or no more than 10% above a single Guide Price.
Map data ©OpenStreetMap contributors.





