
Chadshunt, Near Kineton, CV35

- PROPERTY TYPE
Barn Conversion
- BEDROOMS
3
- BATHROOMS
3
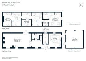
- SIZE
2,344 sq ft
218 sq m
- TENUREDescribes how you own a property. There are different types of tenure - freehold, leasehold, and commonhold.Read more about tenure in our glossary page.
Freehold
Key features
- Attractive barn conversion
- Open-plan living dining Room
- Three bedrooms
- Three bathrooms
- Front and rear garden
- Double garage
- Immaculate Throughout
Description
The main vehicular entrance is sited to the rear, set behind a five bar wooden gate which opens into the large gravelled driveway. This provides private parking for approximately eight vehicles as well as two further vehicles within the adjacent detached double garage.
Once inside the superb quality finish is immediately apparent. The impressive entrance hallway is bright, spacious and provides a central hub for the downstairs accommodation. There is underfloor heating in here and every room throughout the property.
A triple aspect room, the breakfast kitchen is fitted with a range of bespoke handmade units with eye catching granite worktops. There are a number of appliances that are fitted and would remain including; the fridge/ freezer, dishwasher and Aga Range style cooker with extractor hood above. There is space for a large breakfast table and chairs.
Immediately next to the kitchen from the hallway is a separate utility/boot room. This is a really useful space with additional sink; plumbing for a washing machine and tumble drier. Even the utility room is visually pleasing with an original fireplace left exposed.
The large reception room offers space for a sitting area centred around a most striking carved stone fireplace with inset multi-fuel burner. This coupled with the exposed ceiling beams keeps the characterful feel that you would expect from a barn conversion and makes even a large room like this feel warm and homely. Open to the dining area with windows on both sides and doors that open to both the front and rear gardens, really connecting the outdoors.
Finally on the ground floor is a cloakroom with W.C. This also houses the linen cupboard and provid
Outside
There are gardens to the front and rear, both of which are landscaped and have been carefully maintained. The large private front garden is set in a superb central courtyard and is mainly laid to lawn with paved pathways and hedged borders. The rear garden has a stone patio being ideal for alfresco dining. There is a large lawned area with central planting of low level box hedging and some tall privacy boundary hedging.
Garage and Parking
There is a detached double garage at the rear of the property. This is a true double garage with no partition internally and has a fully boarded loft space with hatch and drop down ladder providing ample storage space. In front and around the garage is a gravelled driveway providing parking for up to eight further vehicles. Beyond the rear garden is an additional private parking space.
Situation
Troopers Barn sits in the hamlet of Chadshunt adjacent to a large country estate where the ancient All Saints Church dates back to the 12th Century and lies at the centre of areas of important historical interest and around fine opportunity for walking and hiking along a network of foot and bridal paths that crisscross South Warwickshire and the North Cotswolds.
Located in South Warwickshire and close to the Gaydon junction of the M40 there is easy access to all the commercial and cultural centres via the motorway network. There are mainline railway stations at Leamington Spa, Warwick Parkway and Banbury, providing a direct line to London. A full range of state, grammar and public schools are to be found within traveling distance.
Gaydon: 1.5 miles, Kineton: 1.5 miles, M40 (Junction 12): 2 miles, Royal Leamington Spa: 11 miles Stratford-upon-Avon: 13 miles, Banbury: 12 miles. Banbury to London Marylebone Railway Station takes approximately 54 mins.
Property Ref Number:
HAM-36262Additional Information
The property offers mains water and electricity connections, drainage is by way of a private drainage connection. Fiber connection is now available subject to contract. There is an underfloor air source heating system by Stiebel Eltron installed.
Service Charge
There is a service charge of £25.00 per month payable to the residents association. This is for the upkeep of the private road and the maintenance grounds and sewage system.
Local Authority
Stratford on Avon District Council
Brochures
Brochure- COUNCIL TAXA payment made to your local authority in order to pay for local services like schools, libraries, and refuse collection. The amount you pay depends on the value of the property.Read more about council Tax in our glossary page.
- Band: G
- PARKINGDetails of how and where vehicles can be parked, and any associated costs.Read more about parking in our glossary page.
- Off street
- GARDENA property has access to an outdoor space, which could be private or shared.
- Private garden
- ACCESSIBILITYHow a property has been adapted to meet the needs of vulnerable or disabled individuals.Read more about accessibility in our glossary page.
- Ask agent
Chadshunt, Near Kineton, CV35
Add an important place to see how long it'd take to get there from our property listings.
__mins driving to your place
Get an instant, personalised result:
- Show sellers you’re serious
- Secure viewings faster with agents
- No impact on your credit score


Affordability
Notes
Staying secure when looking for property
Ensure you're up to date with our latest advice on how to avoid fraud or scams when looking for property online.
Visit our security centre to find out moreDisclaimer - Property reference a1n8d000000i5fzAAA. The information displayed about this property comprises a property advertisement. Rightmove.co.uk makes no warranty as to the accuracy or completeness of the advertisement or any linked or associated information, and Rightmove has no control over the content. This property advertisement does not constitute property particulars. The information is provided and maintained by Hamptons, Stratford-upon-Avon. Please contact the selling agent or developer directly to obtain any information which may be available under the terms of The Energy Performance of Buildings (Certificates and Inspections) (England and Wales) Regulations 2007 or the Home Report if in relation to a residential property in Scotland.
*This is the average speed from the provider with the fastest broadband package available at this postcode. The average speed displayed is based on the download speeds of at least 50% of customers at peak time (8pm to 10pm). Fibre/cable services at the postcode are subject to availability and may differ between properties within a postcode. Speeds can be affected by a range of technical and environmental factors. The speed at the property may be lower than that listed above. You can check the estimated speed and confirm availability to a property prior to purchasing on the broadband provider's website. Providers may increase charges. The information is provided and maintained by Decision Technologies Limited. **This is indicative only and based on a 2-person household with multiple devices and simultaneous usage. Broadband performance is affected by multiple factors including number of occupants and devices, simultaneous usage, router range etc. For more information speak to your broadband provider.
Map data ©OpenStreetMap contributors.





