2 bedroom terraced house for sale
Rosedale Street, Sunderland, SR1

- PROPERTY TYPE
Terraced
- BEDROOMS
2
- BATHROOMS
1
- SIZE
Ask agent
- TENUREDescribes how you own a property. There are different types of tenure - freehold, leasehold, and commonhold.Read more about tenure in our glossary page.
Freehold
Key features
- Unconditional Auction
- Cash Buyers Only
- Visit northwoodauctionne.com
- Legal Pack Available
- Immediate Exchange of Contracts
- Auction reservation £2400 inc VAT
- Deposit 10% of purchase price
Description
Unconditional Auction (option 1)
CASH BUYERS ONLY. This two bedroom mid cottage is offered for sale as a tenanted investment and currently let at £530pcm. The accommodation is arranged over one level and comprises entrance hall, two bedrooms, bathroom, lounge and kitchen. To the rear there is a generous enclosed yard with up and over door.
Located just outside the city centre and close to Sunderland University, close to shops, bars restaurants and Metro stations. Making this the perfectly placed investment.
Disclaimer One
This property is to be sold via unconditional auction (option 1). The successful buyer will need to pay a non-refundable deposit of 10% of the value of the agreed purchase price, subject to a minimum of £3,000.00. Contracts will exchange immediately and completion will take place no later than 28 days of the date of the deposit being taken and the exchange of contracts.
Disclaimer Two
Every auction property comes with a guide price and a reserve price. The guide price sets the starting point for bidding, while the reserve price represents the minimum price that the seller is willing to accept at auction. The auctioneer is not allowed to sell the property below this reserve price. The reserve price is not revealed to the public and is kept confidential between the seller and the auctioneer. It may be up to 10% higher than the guide price.
Please note that both the guide price and the reserve price are subject to potential changes leading up to and including the day of the auction.
Disclaimer Three
At your request we can refer you to a Solicitor from our panel. It is your decision whether you choose to deal with them, should you decide to use them you should know that we would receive a referral fee of £180 including Vat from them for the recommendation.
Reservation Fee
This property is sold subject to a non-refundable reservation fee of £2,400.00 inc VAT (£2,000.00 plus VAT) The reservation fee does not form part of the purchase price.
Legal Pack
A legal pack will be available to download before the auctions end date. We strongly recommend all buyers to familiarise themselves with the legal pack prior to bidding.
Particulars
We endeavour to make our sales particulars accurate and reliable, however, they do not constitute or form part of an offer or any contract and none is to be relied upon as statements of representation or fact. Any services, systems and appliances listed in this specification have not been tested by us and no guarantee as to their operating ability or efficiency is given. All measurements have been taken as a guide to prospective buyers only, and are not precise. If you require clarification or further information on any points, please contact us, especially if you are travelling some distance to view. Fixtures and fittings other than those mentioned are to be agreed with the seller by separate negotiation.
EPC rating: D. Tenure: Freehold,
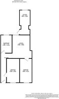
Entrance Hall
5.31m x 1.05m (17'5" x 3'5")
With radiator
Bedroom 1
4.24m x 2.36m (13'11" x 7'9")
With window to the front, radiator
Bedroom 2
4.24m x 2.23m (13'11" x 7'4")
With window to the front, radiator
Bathroom
3.19m x 2.23m (10'6" x 7'4")
With window to the rear, radiator
Lounge
4.23m x 3.58m (13'11" x 11'9")
With window to the rear, radiator
Kitchen
4.4m x 1.88m (14'5" x 6'2")
With window to the rear
- COUNCIL TAXA payment made to your local authority in order to pay for local services like schools, libraries, and refuse collection. The amount you pay depends on the value of the property.Read more about council Tax in our glossary page.
- Band: A
- PARKINGDetails of how and where vehicles can be parked, and any associated costs.Read more about parking in our glossary page.
- On street
- GARDENA property has access to an outdoor space, which could be private or shared.
- Yes
- ACCESSIBILITYHow a property has been adapted to meet the needs of vulnerable or disabled individuals.Read more about accessibility in our glossary page.
- Ask agent
Rosedale Street, Sunderland, SR1
Add an important place to see how long it'd take to get there from our property listings.
__mins driving to your place
Get an instant, personalised result:
- Show sellers you’re serious
- Secure viewings faster with agents
- No impact on your credit score
Your mortgage
Notes
Staying secure when looking for property
Ensure you're up to date with our latest advice on how to avoid fraud or scams when looking for property online.
Visit our security centre to find out moreDisclaimer - Property reference P10101. The information displayed about this property comprises a property advertisement. Rightmove.co.uk makes no warranty as to the accuracy or completeness of the advertisement or any linked or associated information, and Rightmove has no control over the content. This property advertisement does not constitute property particulars. The information is provided and maintained by Northwood, Sunderland. Please contact the selling agent or developer directly to obtain any information which may be available under the terms of The Energy Performance of Buildings (Certificates and Inspections) (England and Wales) Regulations 2007 or the Home Report if in relation to a residential property in Scotland.
Auction Fees: The purchase of this property may include associated fees not listed here, as it is to be sold via auction. To find out more about the fees associated with this property please call Northwood, Sunderland on 01924 943379.
*Guide Price: An indication of a seller's minimum expectation at auction and given as a Guide Price or a range of Guide Prices. This is not necessarily the figure a property will sell for and is subject to change prior to the auction.
Reserve Price: Each auction property will be subject to a Reserve Price below which the property cannot be sold at auction. Normally the Reserve Price will be set within the range of Guide Prices or no more than 10% above a single Guide Price.
*This is the average speed from the provider with the fastest broadband package available at this postcode. The average speed displayed is based on the download speeds of at least 50% of customers at peak time (8pm to 10pm). Fibre/cable services at the postcode are subject to availability and may differ between properties within a postcode. Speeds can be affected by a range of technical and environmental factors. The speed at the property may be lower than that listed above. You can check the estimated speed and confirm availability to a property prior to purchasing on the broadband provider's website. Providers may increase charges. The information is provided and maintained by Decision Technologies Limited. **This is indicative only and based on a 2-person household with multiple devices and simultaneous usage. Broadband performance is affected by multiple factors including number of occupants and devices, simultaneous usage, router range etc. For more information speak to your broadband provider.
Map data ©OpenStreetMap contributors.


