Plot for sale
Land at Foxglove Road, Almondbury
- PROPERTY TYPE
Plot
- SIZE
Ask agent
Description
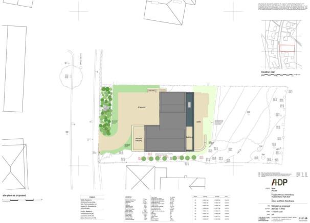
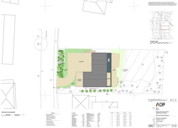
Take the first step towards realising your dream home. An exciting opportunity has arisen to purchase a plot of land in a highly popular location within Almondbury. The proposed plans are for a substantial 4000 sqft property and offer the chance to design and construct a truly exceptional property tailored to your unique tastes and requirements. This is not just a property; it's the opportunity to create your perfect home from the ground up. Make your dream a reality today!
Why Choose a Self-Build?
Customisation: Every aspect of the home, from layout to finishes, can be tailored to suit your lifestyle and preferences.
Quality: Control over the quality of materials and construction ensures a superior build.
Satisfaction: The pride and satisfaction of living in a home that you have helped to design and create are unparalleled.
Act Now – This Opportunity Won't Last!
Opportunities like this in Almondbury are rare and highly coveted. Whether you are an experienced developer or a homeowner looking to create a bespoke residence, this self-build plot offers endless potential.
For more information or to arrange a viewing, please contact us today. Don't miss out on the chance to turn your dream home into a reality in Almondbury's highly popular location.
Additional Information - Planning permission:Application number 2022/62/92372/W passed in November 2023
Tenure: Freehold
What3Words: every.hike.cliff
Agent Notes - 1.MONEY LAUNDERING REGULATIONS: Intending purchasers will be asked to produce identification documentation at a later stage and we would ask for your co-operation in order that there will be no delay in agreeing the sale.
2. General: While we endeavour to make our sales particulars fair, accurate and reliable, they are only a general guide to the property and, accordingly, if there is any point which is of particular importance to you, please contact the office and we will be pleased to check the position for you, especially if you are contemplating travelling some distance to view the property.
3. The measurements indicated are supplied for guidance only and as such must be considered incorrect.
4. Services: Please note we have not tested the services or any of the equipment or appliances in this property, accordingly we strongly advise prospective buyers to commission their own survey or service reports before finalising their offer to purchase.
5. THESE PARTICULARS ARE ISSUED IN GOOD FAITH BUT DO NOT CONSTITUTE REPRESENTATIONS OF FACT OR FORM PART OF ANY OFFER OR CONTRACT. THE MATTERS REFERRED TO IN THESE PARTICULARS SHOULD BE INDEPENDENTLY VERIFIED BY PROSPECTIVE BUYERS OR TENANTS. NEITHER YORKSHIRES FINEST LIMITED NOR ANY OF ITS EMPLOYEES HAS ANY AUTHORITY TO MAKE OR GIVE ANY REPRESENTATION OR WARRANTY WHATEVER IN RELATION TO THIS PROPERTY.
Brochures
Land at Foxglove Road, AlmondburyLand at Foxglove Road, Almondbury
NEAREST STATIONS
Distances are straight line measurements from the centre of the postcode- Huddersfield Station1.3 miles
- Lockwood Station1.7 miles
- Berry Brow Station1.8 miles
Notes
Disclaimer - Property reference 34160893. The information displayed about this property comprises a property advertisement. Rightmove.co.uk makes no warranty as to the accuracy or completeness of the advertisement or any linked or associated information, and Rightmove has no control over the content. This property advertisement does not constitute property particulars. The information is provided and maintained by Yorkshires Finest, Yorkshire. Please contact the selling agent or developer directly to obtain any information which may be available under the terms of The Energy Performance of Buildings (Certificates and Inspections) (England and Wales) Regulations 2007 or the Home Report if in relation to a residential property in Scotland.
Map data ©OpenStreetMap contributors.




