2 bedroom apartment for sale
Winckley Square, Preston, PR1

- PROPERTY TYPE
Apartment
- BEDROOMS
2
- BATHROOMS
1
- SIZE
643 sq ft
60 sq m
Key features
- Prime Winckley Square location
- Private balcony off the living room
- Bright, well-proportioned living space
- Two bedrooms with flexible use
- Main bedroom with en-suite
- Separate bathroom for guests or sharing
- Walkable to work, gyms, cafés & nightlife
- Ideal for professionals or sharers. CHAIN FREE
Description
Set within the iconic surroundings of Winckley Square, this well-proportioned apartment offers a lifestyle that’s effortlessly urban and quietly refined. Everything here is designed for people who want to live centrally, move easily, and spend more time enjoying the city than managing a home.
The living room is bright and inviting, opening directly onto a private balcony — a rare luxury in such a central location. It’s the perfect spot for a morning coffee before work, a moment of calm after the gym, or an evening drink as the city lights begin to glow. The balcony subtly extends your living space, offering fresh air and a sense of escape without leaving home.
The kitchen sits neatly alongside the living area, creating a layout that works around modern routines — quick weekday meals, relaxed hosting, or quiet nights in. Its practical proportions make it easy to use without dominating the living space, keeping the apartment feeling open and uncluttered.
Two bedrooms provide flexibility that suits city living. The main bedroom benefits from its own en-suite, giving you a private retreat to unwind at the end of the day, while the second bedroom is ideal as a guest room, home office or creative space — adapting easily to changing routines. A separate bathroom adds further convenience, especially when entertaining or sharing.
The long hallway enhances the sense of separation between social and private spaces, helping the apartment feel calm and considered rather than compact.
Living on Winckley Square places you at the heart of Preston’s cultural and social scene — moments from restaurants, cafés, gyms, transport links and green spaces. Whether it’s a morning walk to work, a spontaneous night out, or a weekend city break starting just outside your door, everything here supports a lifestyle built around freedom, connection and convenience.
This is city living with breathing space — a place to land, recharge and step back into the buzz whenever you choose.
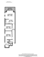
Entrance Hall
Lounge
13'10 x 11'5
Balcony
Kitchen
13'9 x 6'5
Bedroom 1
11'9 x 10'
Bathroom
Bedroom 2
10' x 9'4
WC
Parking
- COUNCIL TAXA payment made to your local authority in order to pay for local services like schools, libraries, and refuse collection. The amount you pay depends on the value of the property.Read more about council Tax in our glossary page.
- Ask agent
- PARKINGDetails of how and where vehicles can be parked, and any associated costs.Read more about parking in our glossary page.
- Allocated
- GARDENA property has access to an outdoor space, which could be private or shared.
- Ask agent
- ACCESSIBILITYHow a property has been adapted to meet the needs of vulnerable or disabled individuals.Read more about accessibility in our glossary page.
- Ask agent
Winckley Square, Preston, PR1
Add an important place to see how long it'd take to get there from our property listings.
__mins driving to your place
Get an instant, personalised result:
- Show sellers you’re serious
- Secure viewings faster with agents
- No impact on your credit score
Your mortgage
Notes
Staying secure when looking for property
Ensure you're up to date with our latest advice on how to avoid fraud or scams when looking for property online.
Visit our security centre to find out moreDisclaimer - Property reference RX713452. The information displayed about this property comprises a property advertisement. Rightmove.co.uk makes no warranty as to the accuracy or completeness of the advertisement or any linked or associated information, and Rightmove has no control over the content. This property advertisement does not constitute property particulars. The information is provided and maintained by Michael Bailey, Powered by Keller Williams, Preston. Please contact the selling agent or developer directly to obtain any information which may be available under the terms of The Energy Performance of Buildings (Certificates and Inspections) (England and Wales) Regulations 2007 or the Home Report if in relation to a residential property in Scotland.
*This is the average speed from the provider with the fastest broadband package available at this postcode. The average speed displayed is based on the download speeds of at least 50% of customers at peak time (8pm to 10pm). Fibre/cable services at the postcode are subject to availability and may differ between properties within a postcode. Speeds can be affected by a range of technical and environmental factors. The speed at the property may be lower than that listed above. You can check the estimated speed and confirm availability to a property prior to purchasing on the broadband provider's website. Providers may increase charges. The information is provided and maintained by Decision Technologies Limited. **This is indicative only and based on a 2-person household with multiple devices and simultaneous usage. Broadband performance is affected by multiple factors including number of occupants and devices, simultaneous usage, router range etc. For more information speak to your broadband provider.
Map data ©OpenStreetMap contributors.




