
1 bedroom flat for rent
Marble Arch Apartments, 17, W1H

Letting details
- Let available date:
- Now
- Deposit:
- £3,231A deposit provides security for a landlord against damage, or unpaid rent by a tenant.Read more about deposit in our glossary page.
- Min. Tenancy:
- 3 months How long the landlord offers to let the property for.Read more about tenancy length in our glossary page.
- Let type:
- Short term
- Furnish type:
- Furnished
- Council Tax:
- Ask agent
- PROPERTY TYPE
Flat
- BEDROOMS
1
- BATHROOMS
1
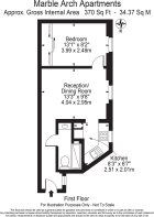
- SIZE
370 sq ft
34 sq m
Key features
- SHORT LET
- Newly decorated one bedroom apartment in this popular block of flats
- One bedroom and one bathroom
- Portered Building
- 1st floor with lift
- Marylebone location
Description
The property boasts excellent contemporary finishes throughout and comprises a generous double bedroom, a spacious reception room with direct views over the attractive communal gardens, a fully fitted modern kitchen, and a sleek contemporary bathroom.
Benefiting from abundant natural light, beautiful wooden flooring, and a fresh, neutral décor, this bright and inviting home offers comfortable and stylish living in one of London's most desirable areas.
Residents enjoy the convenience of 24-hour porterage for added security and peace of mind.
The location is second to none, with the boutique shops, cafes, and restaurants of Marylebone High Street just moments away, alongside the green open spaces of Hyde Park and Regents Park. Excellent transport connections are close at hand, including Marylebone, Baker Street, Edgware Road, and Lancaster Gate stations, providing swift access to the City, West End, and beyond, as well as proximity to the world-class shopping of Oxford Street.
Our China Desk is here for you, if Chinese is your preferred language, please get in touch via WeChat (ChestertonsLettings)
Brochures
Super-size images and Full Online Details ---- COUNCIL TAXA payment made to your local authority in order to pay for local services like schools, libraries, and refuse collection. The amount you pay depends on the value of the property.Read more about council Tax in our glossary page.
- Band: D
- PARKINGDetails of how and where vehicles can be parked, and any associated costs.Read more about parking in our glossary page.
- Ask agent
- GARDENA property has access to an outdoor space, which could be private or shared.
- Ask agent
- ACCESSIBILITYHow a property has been adapted to meet the needs of vulnerable or disabled individuals.Read more about accessibility in our glossary page.
- Ask agent
Marble Arch Apartments, 17, W1H
Add an important place to see how long it'd take to get there from our property listings.
__mins driving to your place
Notes
Staying secure when looking for property
Ensure you're up to date with our latest advice on how to avoid fraud or scams when looking for property online.
Visit our security centre to find out moreDisclaimer - Property reference CSL190019_L. The information displayed about this property comprises a property advertisement. Rightmove.co.uk makes no warranty as to the accuracy or completeness of the advertisement or any linked or associated information, and Rightmove has no control over the content. This property advertisement does not constitute property particulars. The information is provided and maintained by Chestertons, Hyde Park. Please contact the selling agent or developer directly to obtain any information which may be available under the terms of The Energy Performance of Buildings (Certificates and Inspections) (England and Wales) Regulations 2007 or the Home Report if in relation to a residential property in Scotland.
*This is the average speed from the provider with the fastest broadband package available at this postcode. The average speed displayed is based on the download speeds of at least 50% of customers at peak time (8pm to 10pm). Fibre/cable services at the postcode are subject to availability and may differ between properties within a postcode. Speeds can be affected by a range of technical and environmental factors. The speed at the property may be lower than that listed above. You can check the estimated speed and confirm availability to a property prior to purchasing on the broadband provider's website. Providers may increase charges. The information is provided and maintained by Decision Technologies Limited. **This is indicative only and based on a 2-person household with multiple devices and simultaneous usage. Broadband performance is affected by multiple factors including number of occupants and devices, simultaneous usage, router range etc. For more information speak to your broadband provider.
Map data ©OpenStreetMap contributors.








