
Southdown Road, Horndean
- PROPERTY TYPE
Land
- BEDROOMS
5
- BATHROOMS
5
- SIZE
Ask agent
Key features
- Approx 1/2 Acre Building Plot With Planning
- 5 Bed 5 Bath Detached House
- 3745 Sq Ft Of Luxury Living
- Requested Semi Rural Location
Description
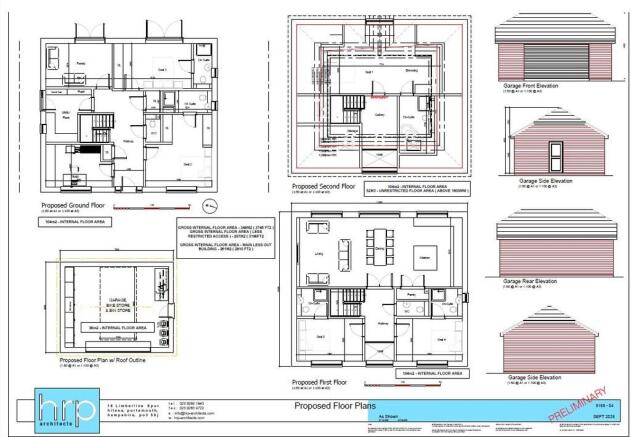
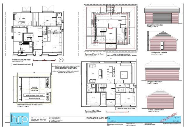
BUILDING PLOT WITH PP GRANTED! Located in a highly desirable area of Horndean we are delighted to offer for sale this 2 bedroom detached property with planning permission granted for a substantial 5 bedroom, 5 bathroom, detached property boasting over 3700 square feet of accommodation and providing stunning views. The property is situated on a large plot of approx 1/2 an acre backing onto Catherington Lith and incorporating a private woodland and offers a wonderful opportunity to build your own home or a development opportunity. There is permission granted for a substantial garage and parking. For further information contact Jeffries & Dibbens as sole agents. Planning App Number EHDC-25-1145-FUL
Brochures
Vista 4-Page Land...Southdown Road, Horndean
NEAREST STATIONS
Distances are straight line measurements from the centre of the postcode- Rowlands Castle Station3.2 miles
- Havant Station5.1 miles
About Jeffries & Dibbens Estate and Lettings Agents, Waterlooville
226 London Road, Waterlooville, Hampshire, PO7 7HP



Notes
Disclaimer - Property reference 100560068026. The information displayed about this property comprises a property advertisement. Rightmove.co.uk makes no warranty as to the accuracy or completeness of the advertisement or any linked or associated information, and Rightmove has no control over the content. This property advertisement does not constitute property particulars. The information is provided and maintained by Jeffries & Dibbens Estate and Lettings Agents, Waterlooville. Please contact the selling agent or developer directly to obtain any information which may be available under the terms of The Energy Performance of Buildings (Certificates and Inspections) (England and Wales) Regulations 2007 or the Home Report if in relation to a residential property in Scotland.
Map data ©OpenStreetMap contributors.





