2 bedroom terraced house for sale
West Street, Enderby, Leicester

- PROPERTY TYPE
Terraced
- BEDROOMS
2
- BATHROOMS
1
- SIZE
Ask agent
- TENUREDescribes how you own a property. There are different types of tenure - freehold, leasehold, and commonhold.Read more about tenure in our glossary page.
Freehold
Key features
- No Chain
- Two Bedrooms
- Mid Terrace
- Potential To Create Parking
- Close To Village Centre
- Bathroom Off Bedroom
- Good Access To Motorways
- Some Modernisation Required
- Excellent School Nearby
- Call To View
Description
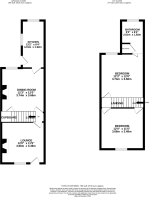
LOUNGE 12' x 11' 5" (3.66m x 3.48m) With fireplace, picture rail, telephone point, radiator and window to the front elevation.
LOBBY With stairs off to the first floor.
DINING ROOM 12' 3" x 12' (3.73m x 3.66m) With under stairs storage cupboard, fireplace, coving to the ceiling, laminate floor, radiator and window to the rear elevation.
KITCHEN 13' 2" x 6' 4" (4.01m x 1.93m) Comprising base and wall mounted units with complementary work surfaces, sink unit with drainer, tiled splash backs, tiled floor, electric cooker point, windows to the side and rear elevations, radiator and door to the rear garden.
LANDING
BEDROOM 12' x 11' 5" (3.66m x 3.48m) With over stairs storage cupboard (with access to the loft), radiator and window to the front elevation.
BEDROOM 12' 3" x 12' (3.73m x 3.66m) With coving to the ceiling, window to the rear elevation and radiator.
BATHROOM 9' 3" x 6' 4" (2.82m x 1.93m) Comprising panelled bath with shower over, wash hand basin, low flush w.c., tiled splash backs, airing cupboard, radiator and window to the rear elevation.
OUTSIDE The rear of the property is paved with fence to the rear. It is accessed via a gate to the side and has shared access across the gardens of 10, 12, 14 & 16. There is potential to 'pinch' a bit of the garden and create a parking space at the rear.
SALES SUMMARY & MATERIAL INFORMATION - Price : £160,000
- Tenure : Freehold
- Length of lease : N/a
- Annual ground rent amount : N/a
- Ground rent review period : N/a
- Annual service charge amount : N/a
- Service charge review period : N/a
- Council tax band : A
- EPC Rating: TBC
- Property type: Mid Terrace
- Property construction: Brick
- Number and types of room: Please refer to floorplan
- Electricity supply: mains
- Water supply: Mains
- Sewerage: Public sewer
- Heating: Gas Central Heating
- Broadband: Refer to Ofcom for broadband services
- Mobile signal / coverage: refer to Ofcom mobile coverage checker
- Parking: On Street Parking
- Building safety: No known hazards
- Restrictions: No known restrictions
- Rights and easements: Shared access across the rear garden
- Coastal erosion risk: none
- Planning permission: no known planning permissions or proposals for development
- Accessibility/Adaptations: None
- Coalfield or mining area: No direct impact of any mining activity
THINKING OF SELLING? We would be delighted to provide you with a free market appraisal/valuation of your own property. Please contact Phillips George to arrange a convenient appointment on .
BUYING TO LET? Phillips George are expert, ARLA qualified letting agents with experience of all kinds of rental property across city and county. Should you need a rental valuation for your new property or on any of your existing portfolio, or simply want some advice on the current rental market, call us now on .
DISCLAIMER & IMPORTANT INFORMATION Phillips George Sales & Lettings for themselves and the vendors of this property whose agents they are, give notice that these particulars are not to be relied upon as a statement or representation of fact and do not constitute any part of an offer or a contract. Intending purchasers must satisfy themselves by inspection or otherwise as to the correctness of each and any statements contained in these particulars. The vendors do not make or give and neither do Phillips George Sales & Lettings (nor any person in their employment) have authority to make any representation or warranty whatsoever in relation to the property.
None of the services, systems or appliances listed or shown in this specification have been tested by us and no guarantee as to their operating ability or efficiency is given. All floorplans and dimensions have been provided as a guide for prospective buyers only, and should not be relied on as a true representation.
Current money laundering regulations require us to confirm proof of identity and residency of anyone intending to purchase. We ask for your co-operation in providing the necessary documentation in order to avoid delays in agreeing the sale.
Brochures
A4 Portrait 2pp- COUNCIL TAXA payment made to your local authority in order to pay for local services like schools, libraries, and refuse collection. The amount you pay depends on the value of the property.Read more about council Tax in our glossary page.
- Band: A
- PARKINGDetails of how and where vehicles can be parked, and any associated costs.Read more about parking in our glossary page.
- On street
- GARDENA property has access to an outdoor space, which could be private or shared.
- Yes
- ACCESSIBILITYHow a property has been adapted to meet the needs of vulnerable or disabled individuals.Read more about accessibility in our glossary page.
- Ask agent
West Street, Enderby, Leicester
Add an important place to see how long it'd take to get there from our property listings.
__mins driving to your place
Get an instant, personalised result:
- Show sellers you’re serious
- Secure viewings faster with agents
- No impact on your credit score



Your mortgage
Notes
Staying secure when looking for property
Ensure you're up to date with our latest advice on how to avoid fraud or scams when looking for property online.
Visit our security centre to find out moreDisclaimer - Property reference 102253004290. The information displayed about this property comprises a property advertisement. Rightmove.co.uk makes no warranty as to the accuracy or completeness of the advertisement or any linked or associated information, and Rightmove has no control over the content. This property advertisement does not constitute property particulars. The information is provided and maintained by Phillips George Estate Agents, Leicester. Please contact the selling agent or developer directly to obtain any information which may be available under the terms of The Energy Performance of Buildings (Certificates and Inspections) (England and Wales) Regulations 2007 or the Home Report if in relation to a residential property in Scotland.
*This is the average speed from the provider with the fastest broadband package available at this postcode. The average speed displayed is based on the download speeds of at least 50% of customers at peak time (8pm to 10pm). Fibre/cable services at the postcode are subject to availability and may differ between properties within a postcode. Speeds can be affected by a range of technical and environmental factors. The speed at the property may be lower than that listed above. You can check the estimated speed and confirm availability to a property prior to purchasing on the broadband provider's website. Providers may increase charges. The information is provided and maintained by Decision Technologies Limited. **This is indicative only and based on a 2-person household with multiple devices and simultaneous usage. Broadband performance is affected by multiple factors including number of occupants and devices, simultaneous usage, router range etc. For more information speak to your broadband provider.
Map data ©OpenStreetMap contributors.




