3 bedroom terraced house for sale
Margaret Avenue , Bedworth

- PROPERTY TYPE
Terraced
- BEDROOMS
3
- BATHROOMS
1
- SIZE
Ask agent
- TENUREDescribes how you own a property. There are different types of tenure - freehold, leasehold, and commonhold.Read more about tenure in our glossary page.
Freehold
Key features
- Stunning Extended Mid Terraced
- Traditional Double Bayed & Side Entry
- Extended Kitchen Breakfast Room
- Three Bedrooms & Generous Bathroom
- Two Reception Rooms & Downstairs WC
- Off Road Parking
- Brick Built Garden Storage/Workshop
- Freehold
- Council Tax Band B
- EPC Commissioned
Description
INMORE DETAIL THE PROPERTY COMPRISES;
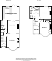
ENTRANCE HALL Access to the property via obscure double glazed stained glass wooden framed door, double glazed stain glass windows to front aspect, stairs ascending to the first floor landing, under stairs storage cupboard, panel radiator, doors to;
LIVING ROOM 14' 7" x 11' 2" (4.44m x 3.4m) With UPVC double glazed bay window to front aspect, panel radiator, feature fireplace with inset gas fire. Opening into;
DINING ROOM 11' 5" x 10' 5" (3.48m x 3.18m) With panel radiator, and double doors leading to;
EXTENDED KITCHEN BREAKFAST ROOM 12' 6" x 14' 2" (3.81m x 4.32m) With UPVC double glazed window to rear aspect, UPVC double glazed French doors leading to the garden. Modern kitchen wall and base units with Quartz work tops, inset ceramic one and half bowl sink and drainage unit, built in dishwasher, space for cooker, and space and plumbing for American style fridge freezer.
SIDE KITCHEN LOBBY 8' 9" x 6' 4" (2.67m x 1.93m) With a side Quartz work top with undercounter space and plumbing for washing machine.
DOWNSTAIRS WC With low level WC, and hand wash basin.
LANDING With access to the loft with fold down ladders. Doors to;
BEDROOM ONE 14' 9" x 10' 0" (4.5m x 3.05m) With UPVC double glazed window to front bay aspect, panel radiator, fitted wardrobes.
BEDROOM TWO 11' 6" x 10' 10" (3.51m x 3.3m) With UPVC double glazed window to rear aspect, panel radiator, fitted wardrobe.
BEDROOM THREE 7' 6" x 6' 10" (2.29m x 2.08m) With UPVC double glazed window to front aspect, panel radiator.
FAMILY BATHROOM 10' 9" (max) x 8' 2" (3.28m x 2.49m) With obscure UPVC double glazed window to rear aspect. Four piece bathroom suite comprising; corner bath, low level WC, wash basin, and feature walk in shower unit. Heated chrome towel rail, and extractor fan.
OUTSIDE To the front is off road parking, side paved pathway leading to storm porch, and shared entry passage to side gate leading to the rear.
To the rear is a decorative slated patio area, and side path, Astro turf lawn, with gate leading to further garden area, with a brick built construction which has been built.
BRICK BUILT CONSTRUCTION 21' 3" x 19' 8" (6.5m x 6m) L - Shaped construction build with solid brick and thermal blocks, with a GRP resin roof, and UPVC double glazed doors will be provided, electric cabling has been laid to the build.
GENERAL INFORMATION / MATERIAL INFORMATION PARTS C Nuneaton & Bedworth Borough Council. Council Tax Banding B EPC Commissioned.
Parts of Bedworth & Exhall are located in an ex coal mining area.
Low Floor Risk Area.
The Vendor has informed the Agents, they are not aware of any Building Safety issues.
The Vendor has informed the Agents, they are not aware of any planning considerations in direct locality.
We have been made aware the property is Standard Brick Construction. Shared side entry.
TENURE: we understand from the vendors that the property is freehold with vacant possession on completion.
SERVICES: Russell Cope Estate Agents have not tested any apparatus, equipment, fittings, etc, or services to this property, so cannot confirm they are in working order or fit for the purpose. A buyer is recommended to obtain confirmation from their Surveyor or Solicitor.
FIXTURES AND FITTINGS: only those as mentioned in these details will be included in the sale.
MEASUREMENTS: the measurements provided are given as a general guide only and are all approximate.
VIEWING: by prior appointment through the Sole Agents.
Brochures
A4 Portrait Windo...4 Page Portrait- COUNCIL TAXA payment made to your local authority in order to pay for local services like schools, libraries, and refuse collection. The amount you pay depends on the value of the property.Read more about council Tax in our glossary page.
- Band: B
- PARKINGDetails of how and where vehicles can be parked, and any associated costs.Read more about parking in our glossary page.
- Off street
- GARDENA property has access to an outdoor space, which could be private or shared.
- Yes
- ACCESSIBILITYHow a property has been adapted to meet the needs of vulnerable or disabled individuals.Read more about accessibility in our glossary page.
- Ask agent
Energy performance certificate - ask agent
Margaret Avenue , Bedworth
Add an important place to see how long it'd take to get there from our property listings.
__mins driving to your place
Get an instant, personalised result:
- Show sellers you’re serious
- Secure viewings faster with agents
- No impact on your credit score
Your mortgage
Notes
Staying secure when looking for property
Ensure you're up to date with our latest advice on how to avoid fraud or scams when looking for property online.
Visit our security centre to find out moreDisclaimer - Property reference 102700002696. The information displayed about this property comprises a property advertisement. Rightmove.co.uk makes no warranty as to the accuracy or completeness of the advertisement or any linked or associated information, and Rightmove has no control over the content. This property advertisement does not constitute property particulars. The information is provided and maintained by Russell Cope, Bedworth. Please contact the selling agent or developer directly to obtain any information which may be available under the terms of The Energy Performance of Buildings (Certificates and Inspections) (England and Wales) Regulations 2007 or the Home Report if in relation to a residential property in Scotland.
*This is the average speed from the provider with the fastest broadband package available at this postcode. The average speed displayed is based on the download speeds of at least 50% of customers at peak time (8pm to 10pm). Fibre/cable services at the postcode are subject to availability and may differ between properties within a postcode. Speeds can be affected by a range of technical and environmental factors. The speed at the property may be lower than that listed above. You can check the estimated speed and confirm availability to a property prior to purchasing on the broadband provider's website. Providers may increase charges. The information is provided and maintained by Decision Technologies Limited. **This is indicative only and based on a 2-person household with multiple devices and simultaneous usage. Broadband performance is affected by multiple factors including number of occupants and devices, simultaneous usage, router range etc. For more information speak to your broadband provider.
Map data ©OpenStreetMap contributors.







