Land for sale
Land to the Rear of 93 Worsley Road, Frimley, Camberley, Surrey, GU16 9BB
- SIZE
Ask agent
- SECTOR
Land for sale
Description
**For Sale By Public Auction 11th February 2026 09:30 AM To inspect the legal documents for this property go to our website to download the legal pack**
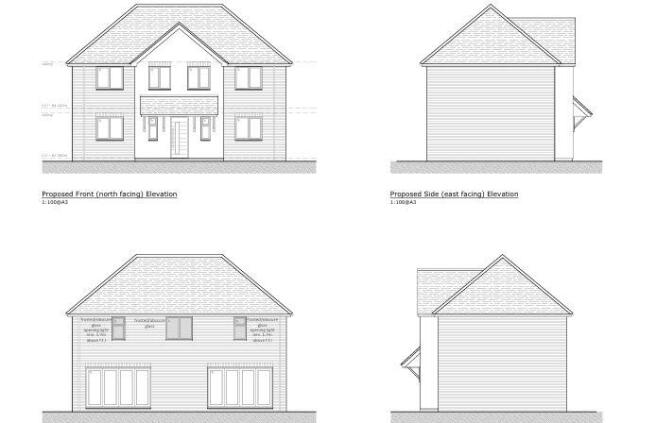
A Plot of Land Measuring Approximately 272 sq m (2,925 sq ft). Offered with Planning Permission for the Erection of a Three Bedroom Detached House
Tenure
Freehold
Location
The land is situated on a residential road close to local shops and amenities. The open spaces of Frimley Green Recreation Ground are within easy reach. Transport links are provided by Frimley rail station.
Description
The lot comprises a plot of land measuring approximately 272 sq m (2,925 sq ft).
Note
The site area depicted within the plan in the auction particulars is for indicative purposes only. Additionally, any measurements stated may not be exact. Some or all of the plot may comprise adopted highway land and if the site has trees, there may be Tree Preservation Orders in place. Buyers should rely on their own enquiries with regard to precise measurements, any consents or rights over the land and any possible development potential or alternative uses for this site.
Planning
Surrey Heath Borough Council granted the following planning permission on 12th November 2025: 'Erection of detached dwelling with new vehicular access from Dunbar Road,landscaping and associated works.
Brochures
Land to the Rear of 93 Worsley Road, Frimley, Camberley, Surrey, GU16 9BB
NEAREST STATIONS
Distances are straight line measurements from the centre of the postcode- Frimley Station0.8 miles
- Farnborough North Station0.8 miles
- Farnborough Station1.5 miles
Notes
Disclaimer - Property reference 328884. The information displayed about this property comprises a property advertisement. Rightmove.co.uk makes no warranty as to the accuracy or completeness of the advertisement or any linked or associated information, and Rightmove has no control over the content. This property advertisement does not constitute property particulars. The information is provided and maintained by Auction House London, London. Please contact the selling agent or developer directly to obtain any information which may be available under the terms of The Energy Performance of Buildings (Certificates and Inspections) (England and Wales) Regulations 2007 or the Home Report if in relation to a residential property in Scotland.
Auction Fees: The purchase of this property may include associated fees not listed here, as it is to be sold via auction. To find out more about the fees associated with this property please call Auction House London, London on 020 7870 6217.
*Guide Price: An indication of a seller's minimum expectation at auction and given as a Guide Price or a range of Guide Prices. This is not necessarily the figure a property will sell for and is subject to change prior to the auction.
Reserve Price: Each auction property will be subject to a Reserve Price below which the property cannot be sold at auction. Normally the Reserve Price will be set within the range of Guide Prices or no more than 10% above a single Guide Price.
Map data ©OpenStreetMap contributors.




