Aros, Isle of Mull, Argyll and Bute, PA72
- PROPERTY TYPE
Plot
- SIZE
Ask agent
Key features
- Large development plot in elevated position
- Three acres in total
- Easy commuting distance from Tobermory, Salen and Craignure
- Detailed planning permission for a detached residential property
- Superb panoramic views
- Services located close by for connection
Description
Situated within the coastal settlement of Arle on the Isle of Mull, The Development Land at Drumbuie North offers buyers an opportunity to acquire a sizable residential development plot extending to an area of approximately 1.21 Ha (3 acres) and benefitting from panoramic coastal views across the Sound of Mull.
The site is accessed directly from the road, with the newly formed entrance leading straight onto the land.
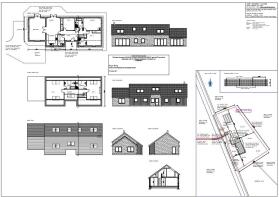
This exciting development opportunity benefits from full planning permission for the development of a single residential dwelling, details of which are available on the Argyll and Bute planning portal under reference 21/00848/PP
The comprehensive plans are available from the selling agent. It should be noted that a “meaningful start” has been made, resulting in the planning being offered in perpetuity.
Mains electricity is located a short distance from the site, and mains water runs along the roadside, adjacent to the plot. It is anticipated that a private sewage treatment system will be installed as part of the build process.
The site enjoys a popular setting, within easy commuting distance from Tobermory, Salen and Craignure. Given the land area of 3 acres, the site represents a wonderful lifestyle opportunity for those looking to relocate to this magical island.
The Development Land at Drumbuie is located in the coastal settlement of Arle, mid-way between the coastal village of Salen and the iconic town of Tobermory. Salen village boasts a primary school, grocery shop, cafes, hotel and petrol station well-stocked grocery shop and post office, petrol station, cafes, hotel, restaurant and primary school. The village and property are conveniently located, so perfect for exploring the whole island.
The colourful harbour town of Tobermory provides an excellent range of dining and shopping opportunities as well as offering primary and secondary schooling, a medical centre, churches, a golf course and a distillery.
The Isle of Mull is the second largest island within the Inner Hebrides. The island is accessed via a regular car ferry service from Oban to Craignure. Services from Lochaline and Kilchoan on the Morvern and Ardnamurchan peninsulas respectively are also available.
There is a small airstrip at Glenforsa suitable for private aircraft and a main line train service operating several times daily between Glasgow and Oban - some connecting directly with the ferries.
Mull boasts an extraordinary and diverse range of scenery, wildlife and leisure activities which brings large number of visitors throughout the year. The island also hosts a number of music and arts festivals plus the annual Tour of Mull car rally. In the sea surrounding Mull there are various trips provided to local puffin and seal colonies and also to Iona, and the island of Staffa where many tourists visit Fingal’s Cave.
Mains electricity and BT phone/internet services are located close by for connection. Mains water is located at the roadside. It is envisaged that a septic tank or bio digester will be installed as part of the build process.
From Oban, take the Calmac ferry to the Isle of Mull, arriving in Craignure. Upon leaving the ferry, turn right and follow the road for approximately 11 miles to Salen. Continue through the village, heading for Tobermory. The Development Land at Drumbuie is located on the right-hand side, clearly marked by a Bell Ingram sale board. Parking is available just beyond the plot on the left-hand side of the road.
Aros, Isle of Mull, Argyll and Bute, PA72
NEAREST STATIONS
Distances are straight line measurements from the centre of the postcode- Oban Station21.7 miles
Notes
Disclaimer - Property reference OBN260009. The information displayed about this property comprises a property advertisement. Rightmove.co.uk makes no warranty as to the accuracy or completeness of the advertisement or any linked or associated information, and Rightmove has no control over the content. This property advertisement does not constitute property particulars. The information is provided and maintained by Bell Ingram, Oban. Please contact the selling agent or developer directly to obtain any information which may be available under the terms of The Energy Performance of Buildings (Certificates and Inspections) (England and Wales) Regulations 2007 or the Home Report if in relation to a residential property in Scotland.
Map data ©OpenStreetMap contributors.








