
Playhatch, South Oxfordshire, RG4

- PROPERTY TYPE
Semi-Detached
- BEDROOMS
4
- BATHROOMS
2
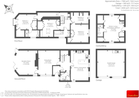
- SIZE
2,430 sq ft
226 sq m
- TENUREDescribes how you own a property. There are different types of tenure - freehold, leasehold, and commonhold.Read more about tenure in our glossary page.
Freehold
Key features
- Period Cottage set in Rural Village Location
- Sympathetically Extended and Improved
- Flexible and Adaptable Living Accommodation
- Carefully Planned for Modern Living
- Four Bedrooms - One Master with Ensuite Shower Room
- Two Reception Rooms with Kitchen / Breakfast Room
- Detached Double Garage with Studio Space above
- 3 Miles From Reading Station
- Refitted family bathroom
- Detached Annex
Description
Semi detached cottage retaining many period features, set in a rural village approximately 3 Miles from Reading Station and The Oracle Centre. Beautifully presented with kitchen/breakfast room, formal dining room, sitting room, four bedrooms, ensuite to master, refitted family bathroom
Property Details
A charming and deceptively spacious four-bedroom cottage set in the heart of the highly sought-after riverside village of Playhatch. Whitegate Cottage offers a rare blend of character, modern living and versatility, complemented by a detached studio with excellent AirBnB or ancillary accommodation potential.
The main house is rich in period charm, featuring an inviting open fire and two log burners, creating a warm and welcoming atmosphere throughout. At the heart of the home lies a superb open-plan kitchen/breakfast room, ideal for both everyday family life and entertaining. The accommodation flows beautifully, combining traditional cottage character with practical modern touches.
The property offers four well-proportioned bedrooms, including a generous principal bedroom with en-suite shower room. Further benefits include a separate utility room with WC, adding valuable functionality for busy households.
Outside, the cottage enjoys a private, landscaped garden, providing a peaceful retreat with excellent space for outdoor dining, entertaining and relaxation.
A particular highlight is the detached studio, offering outstanding flexibility. Ideal as a home office, gym, creative space or guest accommodation, it also presents a compelling AirBnB or short-term letting opportunity (subject to any necessary consents), making it perfect for those seeking additional income or multigenerational living.
Playhatch is renowned for its riverside walks, popular pubs and village atmosphere, while offering excellent access to Reading and the historic market town of Henley-on-Thames. Reading mainline station provides fast and frequent services to London Paddington, making this an ideal home for commuters and lifestyle buyers alike.
Whitegate Cottage is a unique opportunity to acquire a characterful village home with flexible accommodation and income potential, all set within one of Berkshire’s most desirable locations.
Brochures
More details from Chancellors- COUNCIL TAXA payment made to your local authority in order to pay for local services like schools, libraries, and refuse collection. The amount you pay depends on the value of the property.Read more about council Tax in our glossary page.
- Band: F
- PARKINGDetails of how and where vehicles can be parked, and any associated costs.Read more about parking in our glossary page.
- Garage,Off street
- GARDENA property has access to an outdoor space, which could be private or shared.
- Private garden
- ACCESSIBILITYHow a property has been adapted to meet the needs of vulnerable or disabled individuals.Read more about accessibility in our glossary page.
- Ask agent
Playhatch, South Oxfordshire, RG4
Add an important place to see how long it'd take to get there from our property listings.
__mins driving to your place
Get an instant, personalised result:
- Show sellers you’re serious
- Secure viewings faster with agents
- No impact on your credit score
Your mortgage
Notes
Staying secure when looking for property
Ensure you're up to date with our latest advice on how to avoid fraud or scams when looking for property online.
Visit our security centre to find out moreDisclaimer - Property reference 6090709. The information displayed about this property comprises a property advertisement. Rightmove.co.uk makes no warranty as to the accuracy or completeness of the advertisement or any linked or associated information, and Rightmove has no control over the content. This property advertisement does not constitute property particulars. The information is provided and maintained by Chancellors, Reading. Please contact the selling agent or developer directly to obtain any information which may be available under the terms of The Energy Performance of Buildings (Certificates and Inspections) (England and Wales) Regulations 2007 or the Home Report if in relation to a residential property in Scotland.
*This is the average speed from the provider with the fastest broadband package available at this postcode. The average speed displayed is based on the download speeds of at least 50% of customers at peak time (8pm to 10pm). Fibre/cable services at the postcode are subject to availability and may differ between properties within a postcode. Speeds can be affected by a range of technical and environmental factors. The speed at the property may be lower than that listed above. You can check the estimated speed and confirm availability to a property prior to purchasing on the broadband provider's website. Providers may increase charges. The information is provided and maintained by Decision Technologies Limited. **This is indicative only and based on a 2-person household with multiple devices and simultaneous usage. Broadband performance is affected by multiple factors including number of occupants and devices, simultaneous usage, router range etc. For more information speak to your broadband provider.
Map data ©OpenStreetMap contributors.








