
Meifod, Henllan, LL16

- PROPERTY TYPE
Semi-Detached
- BEDROOMS
3
- BATHROOMS
1
- SIZE
Ask agent
- TENUREDescribes how you own a property. There are different types of tenure - freehold, leasehold, and commonhold.Read more about tenure in our glossary page.
Freehold
Key features
- No chain
- Recently Installed Contemporary Bathroom
- Air Source Heat Pump Heating System
- Sought After Village Location
- Gardens to Front, Side and Rear
- Rear Outlook Over Nature Reserve with Birdlife
- Beautiful Far-Reaching Views
Description
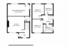
The property is approached via a gated entrance with steps leading up through the front garden. Inside, the entrance hall provides access to the main living accommodation and staircase to the first floor. The lounge is a warm and inviting space positioned to the front of the property, designed to make the most of the panoramic outlook. It now features a fireplace with a newly installed electric fire along with useful under-stairs storage.
To the rear, the kitchen/diner is a particularly attractive and practical space, fitted with a range of modern wall and base units with complementary worktops and tiled splashbacks. There is space and plumbing for appliances, ample room for a dining table, and windows overlooking the garden. A recently replaced rear door provides direct access outside and contributes to improved efficiency and security.
Upstairs, the landing leads to three bedrooms. The principal bedroom is positioned to the front and benefits from superb long-distance views across the village and surrounding countryside. Bedrooms two and three are set to the rear and enjoy a peaceful outlook over the nature reserve, offering attractive green views and regular birdlife, creating a calm and private backdrop.
The bathroom has been recently refitted and now offers a stylish, contemporary suite comprising a curved glass shower enclosure with modern wall panelling, vanity unit with wash basin, and WC, finished with updated fittings and flooring.
Externally, the property stands on a generous plot with lawned gardens wrapping around the front, side and rear. The rear garden is mainly laid to lawn with fenced boundaries and includes a useful garden shed, providing plenty of outdoor space for families, gardening or entertaining — all set against a backdrop of impressive open views and the adjoining nature reserve.
The home further benefits from uPVC double glazing, solar panels, an air source heat pump heating system, and the addition of thermostatic controls, all contributing to improved energy efficiency and running costs.
EPC currently rated D (56). Since the last assessment, the property has had an air source heat pump installed, confirmed full double glazing, thermostatic controls added, and the rear door replaced — therefore the energy performance is expected to be significantly improved on reassessment.
Disclaimer
Whilst we make enquiries with the Seller to ensure the information provided is accurate, Yopa makes no representations or warranties of any kind with respect to the statements contained in the particulars which should not be relied upon as representations of fact. All representations contained in the particulars are based on details supplied by the Seller. Your Conveyancer is legally responsible for ensuring any purchase agreement fully protects your position. Please inform us if you become aware of any information being inaccurate.
Money Laundering Regulations
Should a purchaser(s) have an offer accepted on a property marketed by Yopa, they will need to undertake an identification check and asked to provide information on the source and proof of funds. This is done to meet our obligation under Anti Money Laundering Regulations (AML) and is a legal requirement. We use a specialist third party service together with an in-house compliance team to verify your information. The cost of these checks is £82.50 +VAT per purchase, which is paid in advance, when an offer is agreed and prior to a sales memorandum being issued. This charge is non-refundable under any circumstances.
- COUNCIL TAXA payment made to your local authority in order to pay for local services like schools, libraries, and refuse collection. The amount you pay depends on the value of the property.Read more about council Tax in our glossary page.
- Ask agent
- PARKINGDetails of how and where vehicles can be parked, and any associated costs.Read more about parking in our glossary page.
- Ask agent
- GARDENA property has access to an outdoor space, which could be private or shared.
- Yes
- ACCESSIBILITYHow a property has been adapted to meet the needs of vulnerable or disabled individuals.Read more about accessibility in our glossary page.
- Ask agent
Energy performance certificate - ask agent
Meifod, Henllan, LL16
Add an important place to see how long it'd take to get there from our property listings.
__mins driving to your place
Get an instant, personalised result:
- Show sellers you’re serious
- Secure viewings faster with agents
- No impact on your credit score

Your mortgage
Notes
Staying secure when looking for property
Ensure you're up to date with our latest advice on how to avoid fraud or scams when looking for property online.
Visit our security centre to find out moreDisclaimer - Property reference 479817. The information displayed about this property comprises a property advertisement. Rightmove.co.uk makes no warranty as to the accuracy or completeness of the advertisement or any linked or associated information, and Rightmove has no control over the content. This property advertisement does not constitute property particulars. The information is provided and maintained by Yopa, North West & Midlands. Please contact the selling agent or developer directly to obtain any information which may be available under the terms of The Energy Performance of Buildings (Certificates and Inspections) (England and Wales) Regulations 2007 or the Home Report if in relation to a residential property in Scotland.
*This is the average speed from the provider with the fastest broadband package available at this postcode. The average speed displayed is based on the download speeds of at least 50% of customers at peak time (8pm to 10pm). Fibre/cable services at the postcode are subject to availability and may differ between properties within a postcode. Speeds can be affected by a range of technical and environmental factors. The speed at the property may be lower than that listed above. You can check the estimated speed and confirm availability to a property prior to purchasing on the broadband provider's website. Providers may increase charges. The information is provided and maintained by Decision Technologies Limited. **This is indicative only and based on a 2-person household with multiple devices and simultaneous usage. Broadband performance is affected by multiple factors including number of occupants and devices, simultaneous usage, router range etc. For more information speak to your broadband provider.
Map data ©OpenStreetMap contributors.





