
1 bedroom retirement property for sale
Peglars Way, Wichelstowe, Swindon, Wiltshire, SN1 7GX

- PROPERTY TYPE
Retirement Property
- BEDROOMS
1
- SIZE
Ask developer
Key features
- Stunning retirement homes near Swindon, Wiltshire
- Stylish communal lounge for parties, events and everyday socialising
- Beautiful, energy saving, low maintenance over 60s retirement housing for stress-free independent living
- Manager on-site during office hours to help keep everything running smoothly
- Close to shops and amenities as well as beautiful green spaces and the Wilts and Berks Canal
- Lovely sociable shared landscaped gardens maintained for you
- French balcony
- North West facing
- Near the countryside
- Guest suite
Description
This spectacular 1 bedroom apartment in Swindon, Wiltshire is part of the Locks View development from the award-winning McCarthy Stone. A private retirement apartment, Apartment 39 is located on the third floor, is low-maintenance and contains extra safety features. See the exclusive benefits and highlights this property has to offer in the development information.
- £135,000/£310 pcm (50% example share/50% rent)
- Other shares available
SAP Rating - up to 86
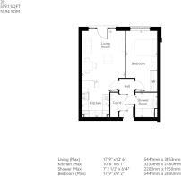
Room Dimensions
- Living Room - 20.96 SQM
- Kitchen - 7.94 SQM
- Shower - 4.29 SQM
- Bedroom - 15.23 SQM
- COUNCIL TAXA payment made to your local authority in order to pay for local services like schools, libraries, and refuse collection. The amount you pay depends on the value of the property.Read more about council Tax in our glossary page.
- Band: TBC
- PARKINGDetails of how and where vehicles can be parked, and any associated costs.Read more about parking in our glossary page.
- Ask developer
- GARDENA property has access to an outdoor space, which could be private or shared.
- Yes
- ACCESSIBILITYHow a property has been adapted to meet the needs of vulnerable or disabled individuals.Read more about accessibility in our glossary page.
- Ask developer
Peglars Way, Wichelstowe, Swindon, Wiltshire, SN1 7GX
Add an important place to see how long it'd take to get there from our property listings.
__mins driving to your place
About McCarthy Stone
Over 60s retirement property for sale, rent and Shared Ownership in Swindon, Wiltshire
Discover purpose-built retirement homes at our Locks View development. These stylish independent living apartments for the over 60s are conveniently situated near local amenities in the beautifully designed residential area of Wichelstowe, Swindon. Within easy walking distance, you can reach a Waitrose alongside many shops, pubs, and restaurants. In East Wichelstowe, you’ll also find a dentist and a hair and beauty salon. This retirement community is close to the picturesque Wilts and Berks Canal - on its banks, you’ll find the Hall and Woodhouse gastro pub, which has a full-sized canal boat inside!
Easy independent living for the over 60s
All our retirement property for sale, rent and Shared Ownership in Swindon is cleverly designed with smart yet stylish features, like easy turn taps, to make life easier now and in the future. Low maintenance, warm and elegant, with the latest security and safety features built in, most of our homeowners enjoy cheaper bills too.
Many of these retirement apartments have either private patios or balconies. All offer access to attractive communal spaces including the fabulous lounge with Wi-Fi and a state-of-the-art audio and video system plus a gorgeous garden area with seating. You’re looked after by the friendly on-site manager and these shared spaces are filled with (entirely optional) events, parties and clubs.
What’s more, you can book the hotel-style guest suite to effortlessly host visitors in style—you can also holiday in our network of guest suites! Parking is available and well-behaved pets are welcome too.
Local area
If you're looking for new build retirement homes close to Swindon then the high-quality, contemporary feel of Wichelstowe development could be for you. Built with convenience in mind, this new residential area is in harmony with its natural surroundings.
Slightly further afield you’ll find golf clubs at Basset Down Complex and Broome Manor, and nearby Coate Water Country park is lovely for a stroll around the lake and also offers angling, a playground and a café.
Just off junction 16 of the M4, Wichelstowe makes a fantastic base to explore the South West. The eateries, amenities and shops of Swindon town centre are also easily accessible and Swindon’s Designer outlet is just 1.5 miles away.
Close to the wildlife haven of the Wilts and Berks Canal, it has over 200 acres of open space, thousands of trees, 1.5 acres of allotments and over 12 kilometres of walkways and cycle paths. There’s a thriving community too, with the StoweAway Community Centre offering things like yoga, fitness classes and board game nights.
The properties at this development are leasehold properties with a term of 999 years from and including 11/02/2025.
Notes
Staying secure when looking for property
Ensure you're up to date with our latest advice on how to avoid fraud or scams when looking for property online.
Visit our security centre to find out moreDisclaimer - Property reference 1_Apartment 39. The information displayed about this property comprises a property advertisement. Rightmove.co.uk makes no warranty as to the accuracy or completeness of the advertisement or any linked or associated information, and Rightmove has no control over the content. This property advertisement does not constitute property particulars. The information is provided and maintained by McCarthy Stone. Please contact the selling agent or developer directly to obtain any information which may be available under the terms of The Energy Performance of Buildings (Certificates and Inspections) (England and Wales) Regulations 2007 or the Home Report if in relation to a residential property in Scotland.
*This is the average speed from the provider with the fastest broadband package available at this postcode. The average speed displayed is based on the download speeds of at least 50% of customers at peak time (8pm to 10pm). Fibre/cable services at the postcode are subject to availability and may differ between properties within a postcode. Speeds can be affected by a range of technical and environmental factors. The speed at the property may be lower than that listed above. You can check the estimated speed and confirm availability to a property prior to purchasing on the broadband provider's website. Providers may increase charges. The information is provided and maintained by Decision Technologies Limited. **This is indicative only and based on a 2-person household with multiple devices and simultaneous usage. Broadband performance is affected by multiple factors including number of occupants and devices, simultaneous usage, router range etc. For more information speak to your broadband provider.
Map data ©OpenStreetMap contributors.





