
3 bedroom semi-detached house for sale
Dymchurch Road, Hythe, Kent, CT21 4AA

- PROPERTY TYPE
Semi-Detached
- BEDROOMS
3
- SIZE
Ask developer
Key features
- 10 year NHBC Buildmark warranty
- 2 year customer care warranty
- Separate living room with doors also leading to the garden
- Open plan kitchen and dining room
- Utility room with external access
- En-suite to bedroom 1
- Low cost energy efficient homes
- High performance glazing for maximum all year round comfort
Description
This home is available with Home Reach, a shared ownership scheme in partnership with Heylo. The price advertised is a 50% share of the full market value.
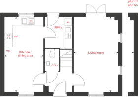
Traditional from the outside but ideally suited to modern living, the Becket is the perfect family home. The ground floor features a large living room and an open plan kitchen/dining room, offering flexible, sociable, bright and airy spaces. The kitchen/dining room provides direct access into the garden through a set of double doors and an adjoining utility room. On the first floor are three generously-sized, bright bedrooms and two bathrooms, located around a central landing. Bright, flexible, and with ample storage, this is the ultimately sociable home and one which is ideally suited to family life.
See shared ownership key information here
Home Reach is a new build ownership solution brought to you by heylo housing group. The Home Reach part buy - part rent scheme cannot be used in conjunction with any other Linden Homes purchase scheme, offer or promotion. Subject to affordability criteria as prescribed by the Homes and Communities Agency. Subject to individual mortgage lender qualification and affordability criteria. Shares of up to 75% of the home are available. Prices advertised can represent up to a 75% share of the home. More information on eligibility and affordability of using Home Reach to purchase your home can be found at . YOUR HOME MAY BE REPOSSESSED IF YOU DO NOT KEEP UP PAYMENTS ON A MORTGAGE OR ANY OTHER DEBT SECURED ON IT"
Room Dimensions
- Kitchen / dining area - 2.94 x 5.61 9' 8" x 18' 5"
- Living room - 3.30 x 5.61 10' 10" x 18' 5"
- Bedroom 1 - 3.33 x 3.45 10' 11" x 11' 4"
- Bedroom 2 - 3.44 x 2.95 11' 3" x 9' 8"
- Bedroom 3 - 3.00 x 2.57 9' 10" x 8' 5"
- COUNCIL TAXA payment made to your local authority in order to pay for local services like schools, libraries, and refuse collection. The amount you pay depends on the value of the property.Read more about council Tax in our glossary page.
- Ask developer
- PARKINGDetails of how and where vehicles can be parked, and any associated costs.Read more about parking in our glossary page.
- Ask developer
- GARDENA property has access to an outdoor space, which could be private or shared.
- Yes
- ACCESSIBILITYHow a property has been adapted to meet the needs of vulnerable or disabled individuals.Read more about accessibility in our glossary page.
- Ask developer
Energy performance certificate - ask developer
Dymchurch Road, Hythe, Kent, CT21 4AA
Add an important place to see how long it'd take to get there from our property listings.
__mins driving to your place
Get an instant, personalised result:
- Show sellers you’re serious
- Secure viewings faster with agents
- No impact on your credit score
About Linden Homes Kent
Stunning show homes now open - book your appointment to view!
Whether you're a first time buyer, growing family or looking to downsize, Martello lakes offers a stunning collection of homes designed to suit every lifestyle.
Set along the beautiful Kent coastline, this unique development combines modern living with the charm of seaside life. Hythe is a vibrant coastal town with everything you need close at hand - boutique shops, cafes, restaurants and essential services. The town boasts a long stretch of beach with views across the English Channel , perfect for relaxing walks, picnics or water sports. You'll also find the historic Royal Military Canal and scenic countryside trails nearby, offering endless opportunities for outdoor adventures.
So if you're looking for a home that blends coastal charm, modern design, and a welcoming community, Martello Lakes is the perfect place to start your next chapter.
Find the development using What 3 words - ///giraffes.origins.meanings
Your mortgage
Notes
Staying secure when looking for property
Ensure you're up to date with our latest advice on how to avoid fraud or scams when looking for property online.
Visit our security centre to find out moreDisclaimer - Property reference 3_57. The information displayed about this property comprises a property advertisement. Rightmove.co.uk makes no warranty as to the accuracy or completeness of the advertisement or any linked or associated information, and Rightmove has no control over the content. This property advertisement does not constitute property particulars. The information is provided and maintained by Linden Homes Kent. Please contact the selling agent or developer directly to obtain any information which may be available under the terms of The Energy Performance of Buildings (Certificates and Inspections) (England and Wales) Regulations 2007 or the Home Report if in relation to a residential property in Scotland.
*This is the average speed from the provider with the fastest broadband package available at this postcode. The average speed displayed is based on the download speeds of at least 50% of customers at peak time (8pm to 10pm). Fibre/cable services at the postcode are subject to availability and may differ between properties within a postcode. Speeds can be affected by a range of technical and environmental factors. The speed at the property may be lower than that listed above. You can check the estimated speed and confirm availability to a property prior to purchasing on the broadband provider's website. Providers may increase charges. The information is provided and maintained by Decision Technologies Limited. **This is indicative only and based on a 2-person household with multiple devices and simultaneous usage. Broadband performance is affected by multiple factors including number of occupants and devices, simultaneous usage, router range etc. For more information speak to your broadband provider.
Map data ©OpenStreetMap contributors.






