Trent Lane, Castle Donington, DE74 2NP
- SIZE AVAILABLE
5,801 sq ft
539 sq m
- SECTOR
Light industrial facility to lease
Lease details
- Lease available date:
- Ask agent
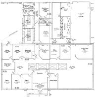
Key features
- Office with store
- Former printers
- Suitable for variety of uses
- Large car park
- Corner position of Maple Road and Trent Lane
- 0.5 miles north of Castle Donington Town Centre
- Excellent transport links, close to M1, A50 & East Midlands Airport
Description
Hybrid office / workshop fronting Trent Lane. Large car park. Predominantly open plan with offices, workshop, stores, kitchen, WC's and shower room. Accommodation benefits from air conditioning for heating and comfort cooling. Corner plot with 24 car park spaces included.
VAT
All figures are quoted exclusive of VAT, we are advised the property is registered for VAT which is applicable at the prevailing rate.
EPC
D (99)
Viewing
Please contact us or visit the OMEETO website for full details and a virtual tour. Physical viewings with proceedable parties can be arranged on request by contacting our commercial property agents. OMEETO do not take any responsibility for any loss or injury caused whilst carrying out a site visit.
Trent Lane, Castle Donington, DE74 2NP
NEAREST STATIONS
Distances are straight line measurements from the centre of the postcode- Long Eaton Station3.4 miles
- East Midlands Parkway Station3.5 miles
- Spondon Station5.1 miles
Notes
Disclaimer - Property reference 323LH. The information displayed about this property comprises a property advertisement. Rightmove.co.uk makes no warranty as to the accuracy or completeness of the advertisement or any linked or associated information, and Rightmove has no control over the content. This property advertisement does not constitute property particulars. The information is provided and maintained by OMEETO LTD, Derbyshire. Please contact the selling agent or developer directly to obtain any information which may be available under the terms of The Energy Performance of Buildings (Certificates and Inspections) (England and Wales) Regulations 2007 or the Home Report if in relation to a residential property in Scotland.
Map data ©OpenStreetMap contributors.





