
Waterloo Chambers, Waterloo Lane, Chelmsford, Essex, CM1

- PROPERTY TYPE
Apartment
- BEDROOMS
2
- BATHROOMS
1
- SIZE
770 sq ft
72 sq m
Key features
- City centre apartment
- Two double bedrooms
- Open plan kitchen/living room
- Shaker style kitchen with Quartz tops
- Range of integrated appliances
- Luxury contemporary bathroom
- Approximately 0.25 miles from Chelmsford Railway Station
- Secure gated parking
Description
Description
Internal images shown are of a different plot and have been virtually dressed for the purpose of marketing.
Waterloo Chambers Apartments is a collection of one and two bedroom properties occupying a prominent, city centre position, elegantly finished to a high specification and each with private parking.
Located within a leafy turning moments from the hustle & bustle of the high street, these superb apartments are set across two buildings with central gated access to private under and lower ground parking.
Each apartment boasts bright spacious accommodation with flexible layouts designed for contemporary, practical living.
Situated 0.25 miles from Chelmsford railway station which runs regular services to London Liverpool Street with an approximate journey time of 33 minutes.
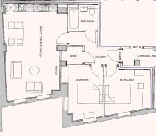
Plot 17 Dimensions:
KITCHEN/LIVING/DINING 4850mm x 7350mm (15'9" x 24'1")
BEDROOM 1 3500mm x 3650mm (11'4" x 11'9")
BEDROOM 2 3300mm x 4200mm (10'8" x 13'7")
BATHROOM 2295mm x 2050mm (7'5" x 6'7")
Specification:
KITCHEN
Elegant modern Shaker-Style kitchens
Range of integrated appliances to include:-oven, hob, microwave, fridge / freezer, dishwasher & washer/dryer
Quartz work surfaces
LED under unit lighting
Undermounted sink
BATHROOMS
Contemporary bathroom suites
Ceramic wall tiling
FLOORING AND JOINERY
Luxury vinyl tile to kitchen, living room and bathrooms
Quality fitted carpet to bedrooms
Modern internal doors with contemporary door furniture
Elegant skirtings and architraves
HEATING & ELECTRICAL
Electric heating
Air source heat pump hot water system
TV & SKY points in kitchen, living room & bedrooms
Heated towel rail to bathrooms
Chrome switches and sockets
Dimmer switches to lounge and kitchen
Video intercom system
AMENITIES
Private gated parking area
Allocated parking to all plots
Visitor parking
EV charging points
Secure bike storage
Small pets allowed
WARRANTY
10 year ICW build warranty
Location
The City of Chelmsford offers the perfect blend of urban convenience and natural beauty. With its vibrant city centre, excellent transport links and beautiful parks.
Enjoy the lively shopping districts, vibrant cultural scene and a variety of dining options on your doorstep, all just a short stroll away.
With its easy access transport links to London and stunning countryside, Chelmsford City is a great place to live.
Square Footage: 770 sq ft
Leasehold with approximately 997 years remaining.
Additional Info
10 year ICW warranty which complies with The Consumer Code for New Homes.
999 year lease.
Service charge - TBC
EPC - To be confirmed.
Some Images used are virtually staged. Please note the show home images are for illustrative purposes only, as finishes may vary within Phase II.
Brochures
Web Details- COUNCIL TAXA payment made to your local authority in order to pay for local services like schools, libraries, and refuse collection. The amount you pay depends on the value of the property.Read more about council Tax in our glossary page.
- Band: TBC
- PARKINGDetails of how and where vehicles can be parked, and any associated costs.Read more about parking in our glossary page.
- Yes
- GARDENA property has access to an outdoor space, which could be private or shared.
- Ask agent
- ACCESSIBILITYHow a property has been adapted to meet the needs of vulnerable or disabled individuals.Read more about accessibility in our glossary page.
- Ask agent
Energy performance certificate - ask agent
Waterloo Chambers, Waterloo Lane, Chelmsford, Essex, CM1
Add an important place to see how long it'd take to get there from our property listings.
__mins driving to your place
Get an instant, personalised result:
- Show sellers you’re serious
- Secure viewings faster with agents
- No impact on your credit score
Your mortgage
Notes
Staying secure when looking for property
Ensure you're up to date with our latest advice on how to avoid fraud or scams when looking for property online.
Visit our security centre to find out moreDisclaimer - Property reference CHD240174. The information displayed about this property comprises a property advertisement. Rightmove.co.uk makes no warranty as to the accuracy or completeness of the advertisement or any linked or associated information, and Rightmove has no control over the content. This property advertisement does not constitute property particulars. The information is provided and maintained by Savills New Homes, Chelmsford. Please contact the selling agent or developer directly to obtain any information which may be available under the terms of The Energy Performance of Buildings (Certificates and Inspections) (England and Wales) Regulations 2007 or the Home Report if in relation to a residential property in Scotland.
*This is the average speed from the provider with the fastest broadband package available at this postcode. The average speed displayed is based on the download speeds of at least 50% of customers at peak time (8pm to 10pm). Fibre/cable services at the postcode are subject to availability and may differ between properties within a postcode. Speeds can be affected by a range of technical and environmental factors. The speed at the property may be lower than that listed above. You can check the estimated speed and confirm availability to a property prior to purchasing on the broadband provider's website. Providers may increase charges. The information is provided and maintained by Decision Technologies Limited. **This is indicative only and based on a 2-person household with multiple devices and simultaneous usage. Broadband performance is affected by multiple factors including number of occupants and devices, simultaneous usage, router range etc. For more information speak to your broadband provider.
Map data ©OpenStreetMap contributors.





