
Field End, Mileham

- PROPERTY TYPE
Detached
- BEDROOMS
4
- BATHROOMS
3
- SIZE
Ask agent
- TENUREDescribes how you own a property. There are different types of tenure - freehold, leasehold, and commonhold.Read more about tenure in our glossary page.
Freehold
Key features
- Newly built detached family home offering over 2,000 sqft of accommodation within a small and thoughtfully designed development
- Attractive traditional style with modern construction and strong kerb appeal
- Generous and well balanced accommodation arranged over two floors
- Spacious open plan kitchen and dining room with double doors opening to the garden
- Practical utility room and ground floor WC
- Four well proportioned bedrooms to the first floor
- Principal bedroom with dressing area and ensuite shower room
- Private rear garden, double garage, and driveway parking
Description
Set within a small and thoughtfully designed development, this attractive new build four-bedroom detached house at Field End offers over 2,000 sqft of accommodation and presents a modern take on traditional styling, offering generous and well-planned accommodation arranged over two floors. Designed with everyday living in mind, the property combines kerb appeal with a practical internal layout and is finished to a high standard throughout, including a fully fitted kitchen with integrated appliances and contemporary fixtures and fittings. The home also benefits from air source underfloor heating, supporting efficient and comfortable modern living.
Location
Field End is located within the rural Norfolk village of Mileham, offering a quiet countryside setting with a strong sense of local community. The village benefits from a village hall and church, while everyday amenities, including shops, schools, medical services, and leisure facilities, are found in the nearby market towns of Fakenham, Dereham, and Swaffham, all within comfortable driving distance. These towns provide a wide selection of supermarkets, independent retailers, cafés, and schooling options.
The surrounding area is characterised by open farmland and quiet country lanes, making it well suited to walking and outdoor pursuits. Road links place the A47 and A1067 within easy reach, offering convenient connections towards Norwich, King’s Lynn, and the wider Norfolk area. The North Norfolk Coast is also accessible in approximately 35 minutes, providing sandy beaches, coastal walks, and popular seaside villages while retaining the appeal of a rural village setting.
Norwich has recently been named the best place to live in the UK in the Sunday Times Best Places to Live 2026, recognised for its historic character, strong sense of community, and vibrant city atmosphere. The city offers a unique setting where a 900 year old market, independent businesses, and a growing creative scene sit alongside excellent schools, transport links, and modern amenities. As England’s first UNESCO City of Literature, Norwich continues to stand out for its culture, individuality, and quality of life, making it an increasingly sought after place to live, work, and visit.
Field End
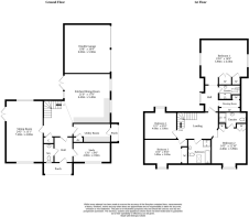
The ground floor opens into a welcoming entrance hall providing access to the main living areas and staircase to the first floor. A spacious sitting room is positioned to the front of the property, offering a comfortable and versatile space for both relaxing and entertaining. To the rear, the heart of the home is the expansive kitchen and dining room, arranged as a generous open plan area suited to day to day living as well as hosting.
The kitchen is fitted with appliances and provides ample workspace and storage, with clear space for dining furniture, while double doors open out to the rear garden, allowing for a natural connection between indoor and outdoor spaces. A separate utility room sits alongside the kitchen, adding everyday practicality, while a ground floor WC and a dedicated study complete the accommodation on this level, making the layout particularly appealing for those working from home.
The first floor offers four well proportioned bedrooms, providing flexible accommodation for families or professional buyers. The principal bedroom features a dressing area and en suite shower room, while the second bedroom also benefits from its own en suite, offering additional comfort and privacy. The remaining bedrooms are served by a modern family bathroom, bringing the total number of bathrooms to three and ensuring convenience for a busy household. The layout and finishes throughout reflect the same high standard seen across the rest of the home, creating a cohesive and well considered living environment.
Externally, the property sits comfortably within its plot, with a private rear garden offering space for seating, play, or planting. A double garage provides secure parking and useful storage, complemented by driveway parking.
As a newly built home, offering spacious accommodation, this property presents an excellent opportunity to enjoy contemporary living in a fresh and well connected setting, with space, efficiency, and modern design at its core.
Agents Notes
We understand this property will be sold freehold. Please contact the office for more information about utilities.
Disclaimer
Minors and Brady (M&B) along with their representatives, are not authorised to provide assurances about the property, whether on their own behalf or on behalf of their client. We don’t take responsibility for any statements made in these particulars, which don’t constitute part of any offer or contract. To comply with AML regulations, £52 is charged to each buyer which covers the cost of the digital ID check. It’s recommended to verify leasehold charges provided by the seller through legal representation. All mentioned areas, measurements, and distances are approximate, and the information, including text, photographs, and plans, serves as guidance and may not cover all aspects comprehensively. It shouldn’t be assumed that the property has all necessary planning, building regulations, or other consents. Services, equipment, and facilities haven’t been tested by M&B, and prospective purchasers are advised to verify the information to their satisfaction through inspection or other means.
- COUNCIL TAXA payment made to your local authority in order to pay for local services like schools, libraries, and refuse collection. The amount you pay depends on the value of the property.Read more about council Tax in our glossary page.
- Ask agent
- PARKINGDetails of how and where vehicles can be parked, and any associated costs.Read more about parking in our glossary page.
- Yes
- GARDENA property has access to an outdoor space, which could be private or shared.
- Yes
- ACCESSIBILITYHow a property has been adapted to meet the needs of vulnerable or disabled individuals.Read more about accessibility in our glossary page.
- Ask agent
Energy performance certificate - ask agent
Field End, Mileham
Add an important place to see how long it'd take to get there from our property listings.
__mins driving to your place
Get an instant, personalised result:
- Show sellers you’re serious
- Secure viewings faster with agents
- No impact on your credit score
Affordability
Notes
Staying secure when looking for property
Ensure you're up to date with our latest advice on how to avoid fraud or scams when looking for property online.
Visit our security centre to find out moreDisclaimer - Property reference 2e330b27-7d40-4675-af66-d91cdad9e410. The information displayed about this property comprises a property advertisement. Rightmove.co.uk makes no warranty as to the accuracy or completeness of the advertisement or any linked or associated information, and Rightmove has no control over the content. This property advertisement does not constitute property particulars. The information is provided and maintained by Minors & Brady, Dereham. Please contact the selling agent or developer directly to obtain any information which may be available under the terms of The Energy Performance of Buildings (Certificates and Inspections) (England and Wales) Regulations 2007 or the Home Report if in relation to a residential property in Scotland.
*This is the average speed from the provider with the fastest broadband package available at this postcode. The average speed displayed is based on the download speeds of at least 50% of customers at peak time (8pm to 10pm). Fibre/cable services at the postcode are subject to availability and may differ between properties within a postcode. Speeds can be affected by a range of technical and environmental factors. The speed at the property may be lower than that listed above. You can check the estimated speed and confirm availability to a property prior to purchasing on the broadband provider's website. Providers may increase charges. The information is provided and maintained by Decision Technologies Limited. **This is indicative only and based on a 2-person household with multiple devices and simultaneous usage. Broadband performance is affected by multiple factors including number of occupants and devices, simultaneous usage, router range etc. For more information speak to your broadband provider.
Map data ©OpenStreetMap contributors.





