
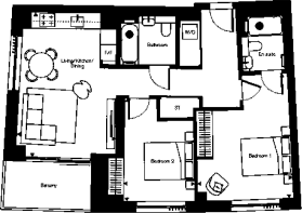
2 bedroom apartment for sale
Ariel Way, London, W12

- PROPERTY TYPE
Apartment
- BEDROOMS
2
- BATHROOMS
2
- SIZE
820 sq ft
76 sq m
Key features
- New Home - Ready to move in
- 24-hour concierge service
- Wellness lounge + personal training & yoga/Pilates studio
- Roof terrace, bar & lounge, plus residents' lounge
- Private cinema + private dining/meeting room
- Access to 25,000 sq ft Soho House gym with 17m pool, steam & sauna
- Westfield 0.2mi. White City/Wood Lane 0.1mi.
Description
The only residential tower at Television Centre, this newly built three-bedroom apartment offers bright open-plan living, excellent resident facilities and an outstanding White City address.
Apartment Highlights:
-2 bedrooms
-Contemporary bathrooms with modern finishes
-Bright open-plan living and dining
-Large windows for great natural light
-Modern kitchen with integrated appliances
-Practical layout with good storage
-New-build apartment within a 23-storey tower
-Views across West London
Residents' Facilities:
-24/7 concierge and on-site security
-Residents' lobby with co-working facilities
-Wellness lounge
-Personal training studio + yoga/Pilates studio
-Roof terrace, bar and lounge
-Residents' lounge
-Private cinema
-Private dining and meeting room
-Access to the 25,000 sq ft Soho House gym with 17m pool, steam room and sauna
Location:
In the heart of White City, next to Westfield London (0.2 miles). Excellent transport links with White City Station (approx. 0.1 miles), Wood Lane (approx. 0.1 miles) and Shepherd's Bush (approx. 0.6 miles) close by.
Value:
A two-bedroom home in a landmark development with a strong amenity offering and quick access to Central London.
Enquiries:
Arrange your private viewing today.
- COUNCIL TAXA payment made to your local authority in order to pay for local services like schools, libraries, and refuse collection. The amount you pay depends on the value of the property.Read more about council Tax in our glossary page.
- Ask agent
- PARKINGDetails of how and where vehicles can be parked, and any associated costs.Read more about parking in our glossary page.
- Underground
- GARDENA property has access to an outdoor space, which could be private or shared.
- Communal garden,Terrace
- ACCESSIBILITYHow a property has been adapted to meet the needs of vulnerable or disabled individuals.Read more about accessibility in our glossary page.
- Lift access
Energy performance certificate - ask agent
Ariel Way, London, W12
Add an important place to see how long it'd take to get there from our property listings.
__mins driving to your place
Get an instant, personalised result:
- Show sellers you’re serious
- Secure viewings faster with agents
- No impact on your credit score
Your mortgage
Notes
Staying secure when looking for property
Ensure you're up to date with our latest advice on how to avoid fraud or scams when looking for property online.
Visit our security centre to find out moreDisclaimer - Property reference WestfieldAr010. The information displayed about this property comprises a property advertisement. Rightmove.co.uk makes no warranty as to the accuracy or completeness of the advertisement or any linked or associated information, and Rightmove has no control over the content. This property advertisement does not constitute property particulars. The information is provided and maintained by HydeRealEstate, London. Please contact the selling agent or developer directly to obtain any information which may be available under the terms of The Energy Performance of Buildings (Certificates and Inspections) (England and Wales) Regulations 2007 or the Home Report if in relation to a residential property in Scotland.
*This is the average speed from the provider with the fastest broadband package available at this postcode. The average speed displayed is based on the download speeds of at least 50% of customers at peak time (8pm to 10pm). Fibre/cable services at the postcode are subject to availability and may differ between properties within a postcode. Speeds can be affected by a range of technical and environmental factors. The speed at the property may be lower than that listed above. You can check the estimated speed and confirm availability to a property prior to purchasing on the broadband provider's website. Providers may increase charges. The information is provided and maintained by Decision Technologies Limited. **This is indicative only and based on a 2-person household with multiple devices and simultaneous usage. Broadband performance is affected by multiple factors including number of occupants and devices, simultaneous usage, router range etc. For more information speak to your broadband provider.
Map data ©OpenStreetMap contributors.





