4 bedroom detached bungalow for sale
Waveney Heights, Brockdish

- PROPERTY TYPE
Detached Bungalow
- BEDROOMS
4
- BATHROOMS
2
- SIZE
1,360 sq ft
126 sq m
- TENUREDescribes how you own a property. There are different types of tenure - freehold, leasehold, and commonhold.Read more about tenure in our glossary page.
Freehold
Key features
- Guide Price £400,000 - £450,000
- Significantly upgraded & enhanced
- Immaculately presented throughout
- Elevated corner plot position
- En-suite facilities
- Garage with home office/gym
- Landscaped gardens
- Freehold
- EPC Rating D
- Council Tax Band C
Description
Well located within Brockdish, the property enjoys an excellent and prominent position set upon an elevated corner plot. This traditional village is situated in a rural but yet not isolated location having been bypassed a number of years ago and found on the north Suffolk borders within the beautiful and undulating countryside running through the Waveney Valley. Over the years the village has proved to have been a popular and sought after location offering an attractive assortment of many period and modern properties whilst still retaining a strong and active local community with the benefit of a well regarded public house, fine church and transport links. A more extensive range of amenities and facilities can be found within the market town of Diss lying some six miles to the west with the benefit of a mainline railway station with regular/direct services to London Liverpool Street and Norwich. Additionally Harleston is within short proximity lying three miles to the north east.
This substantial four-bedroom bungalow is of traditional brick and block cavity wall construction. In recent years, the property has been significantly enhanced, upgraded, and extended, now offering versatile living space in the region of 1,300 sq ft and is presented in excellent condition throughout, featuring modern, high-quality fixtures and fittings. Heating is by way of a modern (two years old) gas-fired central heating boiler via radiators, alongside the property benefitting from replacement sealed unit uPVC double-glazed windows and doors.
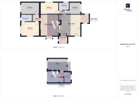
A well sized entrance porch creates a pleasing first impression and provides practical storage space. The reception room is generously proportioned and flooded with plenty of natural light due to its southerly aspect, with a fireplace and inset cast iron stove serving as the focal point. A standout feature is the pristine kitchen/diner, which offers an excellent range of fitted units, granite work surfaces, and integrated appliances. A spacious rear lobby is located off the kitchen and could easily serve as a utility room if required. All four bedrooms are generously sized, offering versatile use if not required as bedrooms. The principal bedroom enjoys the luxury of ensuite facilities. Both the family bathroom and ensuite have been updated with high-quality suites that remain in immaculate condition.
Externally, the property is situated on a generous corner plot, set back from the road. Off-road parking leads to a garage located at the rear. Formerly a double garage, this space has been converted into a home gym which could easily be adapted into a home office, complete with a utility room and WC. The remaining area provides excellent storage, as detailed on the floorplans. Finally, the landscaped gardens offer a high degree of privacy and seclusion.
ENTRANCE PORCH:
KITCHEN/DINER: - 4.32m x 4.67m (14'2" x 15'4")
REAR LOBBY:
RECEPTION ROOM: - 4.04m x 4.65m (13'3" x 15'3")
BEDROOM: - 4.11m x 3.05m (13'6" x 10'0")
EN-SUITE: - 2.54m x 1.45m (8'4" x 4'9")
BEDROOM: - 4.17m x 2.67m (13'8" x 8'9")
BEDROOM: - 3.91m x 2.69m (12'10" x 8'10")
BEDROOM: - 2.36m x 2.67m (7'9" x 8'9")
BATHROOM: - 2.39m x 1.68m (7'10" x 5'6")
GARAGE: - 2.46m x 2.59m (8'1" x 8'6")
OFFICE: - 4.34m x 2.57m (14'3" x 8'5")
WC: - 1.50m x 2.39m (4'11" x 7'10")
AGENTS NOTE: Material Information regarding the property can be found in our Key Facts for Buyers interactive brochure located in the Virtual Tour no. 2 thumbnail.
SERVICES:
Drainage - mains
Heating - gas
EPC Rating D
Council Tax Band C
Tenure - freehold
Anti-Money Laundering Fee Statement
To comply with HMRC's regulations on Anti-Money Laundering (AML), Whittley Parish are legally required to conduct AML checks on every purchaser(s) once a sale is agreed. We use a government-approved electronic identity verification service from Landmark to ensure compliance, accuracy, and security. This is approved by the Government as part of the Digital Identity and Attributes Trust Framework (DIATF).
The cost of anti-money laundering (AML) checks is £50 + VAT (£60 inc VAT) per purchase, payable in advance after an offer has been accepted. This fee to Whittley Parish is mandatory to comply with HMRC regulations and must be paid before a memorandum of sale can be issued. Please note that the fee is non-refundable.
Brochures
Brochure 1Brochure 2Full Details- COUNCIL TAXA payment made to your local authority in order to pay for local services like schools, libraries, and refuse collection. The amount you pay depends on the value of the property.Read more about council Tax in our glossary page.
- Band: C
- PARKINGDetails of how and where vehicles can be parked, and any associated costs.Read more about parking in our glossary page.
- Garage,Driveway
- GARDENA property has access to an outdoor space, which could be private or shared.
- Private garden
- ACCESSIBILITYHow a property has been adapted to meet the needs of vulnerable or disabled individuals.Read more about accessibility in our glossary page.
- No wheelchair access
Waveney Heights, Brockdish
Add an important place to see how long it'd take to get there from our property listings.
__mins driving to your place
Get an instant, personalised result:
- Show sellers you’re serious
- Secure viewings faster with agents
- No impact on your credit score
Your mortgage
Notes
Staying secure when looking for property
Ensure you're up to date with our latest advice on how to avoid fraud or scams when looking for property online.
Visit our security centre to find out moreDisclaimer - Property reference S1584810. The information displayed about this property comprises a property advertisement. Rightmove.co.uk makes no warranty as to the accuracy or completeness of the advertisement or any linked or associated information, and Rightmove has no control over the content. This property advertisement does not constitute property particulars. The information is provided and maintained by Whittley Parish, Diss. Please contact the selling agent or developer directly to obtain any information which may be available under the terms of The Energy Performance of Buildings (Certificates and Inspections) (England and Wales) Regulations 2007 or the Home Report if in relation to a residential property in Scotland.
*This is the average speed from the provider with the fastest broadband package available at this postcode. The average speed displayed is based on the download speeds of at least 50% of customers at peak time (8pm to 10pm). Fibre/cable services at the postcode are subject to availability and may differ between properties within a postcode. Speeds can be affected by a range of technical and environmental factors. The speed at the property may be lower than that listed above. You can check the estimated speed and confirm availability to a property prior to purchasing on the broadband provider's website. Providers may increase charges. The information is provided and maintained by Decision Technologies Limited. **This is indicative only and based on a 2-person household with multiple devices and simultaneous usage. Broadband performance is affected by multiple factors including number of occupants and devices, simultaneous usage, router range etc. For more information speak to your broadband provider.
Map data ©OpenStreetMap contributors.








