
9 bedroom detached house for sale
Tonbridge Road, Bough Beech

- PROPERTY TYPE
Detached
- BEDROOMS
9
- BATHROOMS
6
- SIZE
3,430 sq ft
319 sq m
- TENUREDescribes how you own a property. There are different types of tenure - freehold, leasehold, and commonhold.Read more about tenure in our glossary page.
Freehold
Key features
- Grade II Listed 4 Bedroom Cottage
- 1 Bedroom Annex with En-Suite Shower and Kitchenette
- Listed Barn
- Summerhouse
- Delightful Gardens & Grounds
- Approx 3 Acres
- Isobel’s Stables - 4 Bedroom Separate Oak Framed Conversion (currently used for Airbnb)
Description
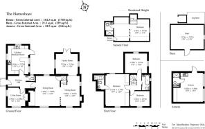
Accessed through double electric gates to an in and out gravel driveway, The Horseshoes is a quintessential and most attractive Grade II listed detached cottage believed to date back to the 16th century with later additions.
The property includes an oak framed four bedroom annexe currently used for Airbnb rental, generating a supplementary income of circa £50,000. Additionally, there is a converted garage into self-contained one bedroom accommodation.
All set within delightful gardens and grounds of about three acres offering wonderful views of the adjacent fields.
FEATURES
- The property retains many period features such as exposed wall and ceiling timbers, inglenook fireplace, wooden floors, and leaded light casement windows.
- Access through a covered entrance porch with glazed wooden door.
- Dual aspect sitting room with a brick inglenook fireplace with bressummer beam, leading via open stud work to the dining room with stairs to the first floor. The family room, adjacent to these areas, offers direct access to the terrace and garden, seamlessly extending the living space.
- Triple aspect kitchen with custom painted wooden units, granite work surfaces, and a breakfast bar. It is equipped with a Rangemaster cooker with a hob and extractor fan. Integrated fridge and space for dishwasher. A glazed door opens directly onto the terrace.
- The ground floor also includes a utility room and cloakroom.
- The principal bedroom features an ensuite bathroom with views to both the front and rear. Two further bedrooms share a family bathroom.
- Stairs lead to a further spacious bedroom with its own ensuite shower room.
OUTSIDE
- Charming converted garage comprising bedroom, shower room and kitchenette.
- The newly constructed single storey oak framed annexe with underfloor heating comprises four double bedrooms, two with a Jack & Jill shower room, whilst the other two bedrooms share the other bathroom. The bright and spacious open plan living area includes a well appointed hand painted kitchen with composite stone worktops and island unit/breakfast bar with integrated dishwasher and washing machine, Neff appliances and induction hob. There is ample space for a dining table. Bifold doors lead to the rear, opening onto a terrace that overlooks the fields.
- There is a summerhouse which is currently being used as an office.
- Delightful gardens with listed period barn and picturesque views of the surrounding fields. A paved terrace provides an ideal setting for outdoor entertaining, a secluded seating area, and a fenced natural pond. The grounds span to approximately three acres and offer walks across unspoiled farmland to Bough Beech reservoir and beyond.
PROPERTY INFORMATION
- Services: Mains Water and Electricity. Private Drainage. Oil fired Central Heating
- Local Authority: Sevenoaks District Council,
- Council Tax band G: £3,799.19 (2024/25)
- Fixtures and fittings are excluded from the sale but may be available by separate negotiation.
SITUATION
The Horseshoes occupies a convenient rural position between the Natural Trust Village of Chiddingstone, Bough Beech and Chiddingstone Causeway with its Post Office and Little Brown Jug Public House/Restaurant.
Wider shopping facilities are available from Sevenoaks, Tonbridge and Tunbridge Wells Town Centres all offer a wide range of shopping facilities as well as main line stations to London Charing Cross/Cannon Street. Similar services are available from Hildenborough Main Line Station. Nearby Penshurst Station has services to Tonbridge and Redhill.
There are a good number of well-regarded schools in the local area including Chiddingstone and Leigh Primary Schools. Grammar Schools for both Boys and Girls in Tonbridge and Tunbridge Wells as well as the Weald of Kent girl’s grammar annexe in Sevenoaks. Tonbridge and Sevenoaks Public Schools and a variety of Preparatory Schools in and around Sevenoaks and Tonbridge including Hilden Grange, the Schools at Somerhill and New Beacon. Holmewood House at Langton Green and Walthamstow Hall for Girls.
The A21 gives access to the M25 and motorway network to Gatwick, Heathrow and Stansted airports, Channel Tunnel Terminus and Ports and Bluewater Shopping Centre.
Leisure facilities include Golf Courses at Hever and Nizels and Sailing at Bough Beech Reservoir. There is also a private health/fitness centre at Nizels. Tonbridge School Sports Centre.
Brochures
The Horseshoes 2025 Broch 2 June.pdf- COUNCIL TAXA payment made to your local authority in order to pay for local services like schools, libraries, and refuse collection. The amount you pay depends on the value of the property.Read more about council Tax in our glossary page.
- Band: G
- PARKINGDetails of how and where vehicles can be parked, and any associated costs.Read more about parking in our glossary page.
- Yes
- GARDENA property has access to an outdoor space, which could be private or shared.
- Yes
- ACCESSIBILITYHow a property has been adapted to meet the needs of vulnerable or disabled individuals.Read more about accessibility in our glossary page.
- Ask agent
Energy performance certificate - ask agent
Tonbridge Road, Bough Beech
Add an important place to see how long it'd take to get there from our property listings.
__mins driving to your place
Get an instant, personalised result:
- Show sellers you’re serious
- Secure viewings faster with agents
- No impact on your credit score



Your mortgage
Notes
Staying secure when looking for property
Ensure you're up to date with our latest advice on how to avoid fraud or scams when looking for property online.
Visit our security centre to find out moreDisclaimer - Property reference 34438700. The information displayed about this property comprises a property advertisement. Rightmove.co.uk makes no warranty as to the accuracy or completeness of the advertisement or any linked or associated information, and Rightmove has no control over the content. This property advertisement does not constitute property particulars. The information is provided and maintained by James Millard Estate Agents, Hildenborough. Please contact the selling agent or developer directly to obtain any information which may be available under the terms of The Energy Performance of Buildings (Certificates and Inspections) (England and Wales) Regulations 2007 or the Home Report if in relation to a residential property in Scotland.
*This is the average speed from the provider with the fastest broadband package available at this postcode. The average speed displayed is based on the download speeds of at least 50% of customers at peak time (8pm to 10pm). Fibre/cable services at the postcode are subject to availability and may differ between properties within a postcode. Speeds can be affected by a range of technical and environmental factors. The speed at the property may be lower than that listed above. You can check the estimated speed and confirm availability to a property prior to purchasing on the broadband provider's website. Providers may increase charges. The information is provided and maintained by Decision Technologies Limited. **This is indicative only and based on a 2-person household with multiple devices and simultaneous usage. Broadband performance is affected by multiple factors including number of occupants and devices, simultaneous usage, router range etc. For more information speak to your broadband provider.
Map data ©OpenStreetMap contributors.






