
6 bedroom detached house for rent
Bagendon, Cirencester, Gloucestershire, GL7

Letting details
- Let available date:
- 10/07/2026
- Deposit:
- £24,923A deposit provides security for a landlord against damage, or unpaid rent by a tenant.Read more about deposit in our glossary page.
- Min. Tenancy:
- 12 months How long the landlord offers to let the property for.Read more about tenancy length in our glossary page.
- Let type:
- Long term
- Furnish type:
- Furnished or unfurnished, landlord is flexible
- Council Tax:
- Ask agent
- PROPERTY TYPE
Detached
- BEDROOMS
6
- BATHROOMS
5
- SIZE
11,418 sq ft
1,061 sq m
Key features
- Substantial country home with six bedrooms
- Perfect layout for entertaining
- Self-contained one-bedroom annexe
- Indoor swimming pool complex with gym
- Mature landscaped grounds
- 3 miles from Cirencester
- 0.5 miles from A417
- EPC Rating = D
Description
Description
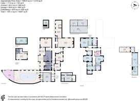
In an elevated setting just outside the village of Bagendon, surrounded by the idyllic countryside of the Cotswold Hills, Peewits House occupies a commanding position on a private gated estate. Enveloped by its own beautifully landscaped gardens, the house is an attractive focal point, constructed from the local honey-coloured Cotswold stone for which the region is famous. The substantial property offers more than 11000 sq ft of space over a number of floors, with a fantastically versatile and generously proportioned layout that’s as well suited to entertaining as it is to family life. The front part of the house is dedicated to formal reception rooms, including a dining room, snug, snooker room and games room – all ideal for hosting. To the rear, light-filled conservatory links an inviting sitting room with wood-burning stove, a well-appointed kitchen, breakfast room and utility room, with the exciting leisure facilities in an adjoining wing. This includes a impressive indoor swimming pool, hot tub and gym, sauna and changing facilities.
In addition there are useful cellars for storage and a detached one-bedroom annexe well suited to an au pair or housekeeper. The first floor bedrooms include an impressive principal suite with dressing room and en suite facilities, three further bedrooms (all en suite) and a private study. There are a further two interconnecting bedrooms and a shower room on the top floor.
Peewits House is approached via a long, gated driveway which runs between paddocks and an area of woodland, emerging at a very generous carriageway driveway at the front the house, providing a striking first impression. There is extensive parking and garaging. The park-like grounds wrap around the property, including expansive lawns, mature trees, formal planting and a sizeable terrace to the rear which provides ample space for outdoor entertaining. There is also use of a tennis court available to residents.
Available furnished or unfurnished.
There is additional outbuilding/office space with can be included in the rental.
Services
Mains water, drainage and electricity. Oil and biomass boiler.
Location
Bagendon is a small village situated within the Cotswold AONB, about three miles north of Cirencester. The village is particularly well situated for access to the A417, linking the M4 and M5 motorways between Swindon and Cheltenham/Gloucester. Locally there is a popular coffee shop, an acclaimed organic farm shop and a number of excellent pubs within the Duntisbournes and surrounding villages. Cirencester Golf Club is also nearby.
The village market town of Cirencester, often referred to as the ‘Capital of the Cotswolds’, has superstore shopping, independent boutiques and a thriving market square which hosts a variety of markets throughout the month. More extensive shopping, including department stores and high street names, can be found in Cheltenham and Bristol.
There is an extensive choice of private schools in the area include Beaudesert Park at Minchinhampton, Rendcomb College, Westonbirt, Cheltenham College and Cheltenham Ladies College. Top ranking Pate’s Grammar School in Cheltenham is also very convenient.
Sporting and recreational pursuits include National Hunt racing at Cheltenham and highly regarded polo clubs at Longdole, Cirencester Park and The Beaufort at Westonbirt. Nearby Rectory Farm offers extensive equestrian opportunities from tuition to a variety of competitive events. There is an abundance of field sports opportunities locally, including hunting with the VWH and Cotswold hunts. The undulating countryside also lends itself well to some top-class shooting.
Direct rail services to London Paddington leave from Kemble Station (about seven miles), scheduled to take from 74 minutes, and Swindon (about 20 miles), from 55 minutes.
Square Footage: 11,418 sq ft
Directions
From Cirencester, join the A417 north via Stratton and continue for about 1.5 miles. Take the exit signposted Bagendon/Perrott’s Brook and at the two roundabouts, take the third exit followed by the second exit onto a road signposted Warrens Gorse. After approximately half a mile, the turning to Peewits House will be found on the right-hand side.
Additional Info
Holding Deposit : £4,153.85 ( 1 week )
Deposit Payable : £24,923.08 ( 6 weeks )
Minimum Term : 12 months
Rent must be paid monthly in advance
Brochures
Web DetailsParticulars- COUNCIL TAXA payment made to your local authority in order to pay for local services like schools, libraries, and refuse collection. The amount you pay depends on the value of the property.Read more about council Tax in our glossary page.
- Band: H
- PARKINGDetails of how and where vehicles can be parked, and any associated costs.Read more about parking in our glossary page.
- Yes
- GARDENA property has access to an outdoor space, which could be private or shared.
- Yes
- ACCESSIBILITYHow a property has been adapted to meet the needs of vulnerable or disabled individuals.Read more about accessibility in our glossary page.
- Ask agent
Bagendon, Cirencester, Gloucestershire, GL7
Add an important place to see how long it'd take to get there from our property listings.
__mins driving to your place
Notes
Staying secure when looking for property
Ensure you're up to date with our latest advice on how to avoid fraud or scams when looking for property online.
Visit our security centre to find out moreDisclaimer - Property reference SGL240097_L. The information displayed about this property comprises a property advertisement. Rightmove.co.uk makes no warranty as to the accuracy or completeness of the advertisement or any linked or associated information, and Rightmove has no control over the content. This property advertisement does not constitute property particulars. The information is provided and maintained by Savills Lettings, Cotswolds. Please contact the selling agent or developer directly to obtain any information which may be available under the terms of The Energy Performance of Buildings (Certificates and Inspections) (England and Wales) Regulations 2007 or the Home Report if in relation to a residential property in Scotland.
*This is the average speed from the provider with the fastest broadband package available at this postcode. The average speed displayed is based on the download speeds of at least 50% of customers at peak time (8pm to 10pm). Fibre/cable services at the postcode are subject to availability and may differ between properties within a postcode. Speeds can be affected by a range of technical and environmental factors. The speed at the property may be lower than that listed above. You can check the estimated speed and confirm availability to a property prior to purchasing on the broadband provider's website. Providers may increase charges. The information is provided and maintained by Decision Technologies Limited. **This is indicative only and based on a 2-person household with multiple devices and simultaneous usage. Broadband performance is affected by multiple factors including number of occupants and devices, simultaneous usage, router range etc. For more information speak to your broadband provider.
Map data ©OpenStreetMap contributors.





