High Street, Elgin, IV30 1EA

- PROPERTY TYPE
Terraced
- BEDROOMS
2
- BATHROOMS
1
- SIZE
Ask agent
- TENUREDescribes how you own a property. There are different types of tenure - freehold, leasehold, and commonhold.Read more about tenure in our glossary page.
Freehold
Key features
- 2 Bedroom Mid-Terrace House
- Centrally Located in Elgin
- Walking distance to local amenities
- Communal garden
- Partial Double Glazing
- Electric Heating
Description
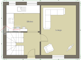
Accommodation comprises on the ground floor a Hallway, Lounge and Kitchen, with the 2nd floor featuring the main bedroom and a modern 4-piece Bathroom suite. With the 2nd floor providing a spacious 2nd Double Bedroom.
Hallway
Ceiling light fitting
Electric wall mounted heater
A built-in storage cupboard housing the hot water tank
Tiled flooring
A carpeted staircase leads to the 1st floor landing
Lounge – 14’8” (4.47) x 8’11” (2.72)
Ceiling light fitting
Single glazed sash window to the front
Electric wall mounted heater
A feature fireplace with surround
Recessed shelved alcoves
Fitted carpet
Kitchen – 9’1” (2.76) x 7’1” (2.15)
Recessed ceiling lighting
2 single glazed sash windows to the rear
Wall mounted cupboards in a high gloss cream coloured finish
Fitted base units with butcher’s block effect work tops
Single sink with drainer unit and mixer tap
Integrated electric hob and oven
Space to accommodate a fridge and washing machine
A breakfast bar area with spacing for 2 stools
Tiled flooring
1st Floor Accommodation
Landing
Pendant light fitting
Single glazed window to the front
The staircase continues to the 2nd floor to where the 2nd double bedroom is located
Fitted carpet
Bedroom One – 15’3” (4.64) x 9’4” (2.84) max and plus a recess
A generous sized room comprising a pendant light fitting
Single glazed sash window to the front
Electric wall mounted heater
Fitted double wardrobe with sliding mirrored doors
Fitted carpet
Bathroom – 8’8” (2.64) x 7’2” (2.18)
A modern bathroom comprising recessed ceiling lighting
Single glazed sash window to the rear
A wall mounted electric heater
A 4-piece suite featuring a free-standing styled double ended bath with mixer tap and hand shower fitting
Quadrant shower cubicle with ‘wet wall’ finish within and an electric shower
Pedestal wash basin and a press flush W.C
Tiled flooring with electric under-floor heating
2nd Floor Accommodation
Bedroom Two – 13’4” (4.06) plus cupboard space x 12’9” (3.88) max into the coombe
A spacious 2nd bedroom comprising recessed ceiling lighting
2 double glazed windows to the rear
A built-in storage cupboard
Fitted carpet
Communal Garden
The property benefits from a shared garden area which is mostly laid to lawn
Note 1
All light fittings & floor coverings are to remain.
- COUNCIL TAXA payment made to your local authority in order to pay for local services like schools, libraries, and refuse collection. The amount you pay depends on the value of the property.Read more about council Tax in our glossary page.
- Ask agent
- PARKINGDetails of how and where vehicles can be parked, and any associated costs.Read more about parking in our glossary page.
- Ask agent
- GARDENA property has access to an outdoor space, which could be private or shared.
- Yes
- ACCESSIBILITYHow a property has been adapted to meet the needs of vulnerable or disabled individuals.Read more about accessibility in our glossary page.
- Ask agent
High Street, Elgin, IV30 1EA
Add an important place to see how long it'd take to get there from our property listings.
__mins driving to your place
Get an instant, personalised result:
- Show sellers you’re serious
- Secure viewings faster with agents
- No impact on your credit score
Your mortgage
Notes
Staying secure when looking for property
Ensure you're up to date with our latest advice on how to avoid fraud or scams when looking for property online.
Visit our security centre to find out moreDisclaimer - Property reference GER-62663924. The information displayed about this property comprises a property advertisement. Rightmove.co.uk makes no warranty as to the accuracy or completeness of the advertisement or any linked or associated information, and Rightmove has no control over the content. This property advertisement does not constitute property particulars. The information is provided and maintained by Grampian Property Centre, Elgin. Please contact the selling agent or developer directly to obtain any information which may be available under the terms of The Energy Performance of Buildings (Certificates and Inspections) (England and Wales) Regulations 2007 or the Home Report if in relation to a residential property in Scotland.
*This is the average speed from the provider with the fastest broadband package available at this postcode. The average speed displayed is based on the download speeds of at least 50% of customers at peak time (8pm to 10pm). Fibre/cable services at the postcode are subject to availability and may differ between properties within a postcode. Speeds can be affected by a range of technical and environmental factors. The speed at the property may be lower than that listed above. You can check the estimated speed and confirm availability to a property prior to purchasing on the broadband provider's website. Providers may increase charges. The information is provided and maintained by Decision Technologies Limited. **This is indicative only and based on a 2-person household with multiple devices and simultaneous usage. Broadband performance is affected by multiple factors including number of occupants and devices, simultaneous usage, router range etc. For more information speak to your broadband provider.
Map data ©OpenStreetMap contributors.





