
Commercial property for sale
Stepney Street, Llanelli, SA15
- PROPERTY TYPE
Commercial Property
- BATHROOMS
2
- SIZE
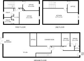
4,087 sq ft
380 sq m
Key features
- Commercial Unit
- Street Parking
- 6 - Office Spaces
- Spacious Facilities
- Dyfed- Wales Centre Location
- Likely to attract enquiries from Serious Investors & Developers
- INVESTMENT POTENTIAL DETAILED BELOW (Let Property Pack)
Description
For investors looking for a rewarding investment, this is a brilliant opportunity!
The property features a large central area for primary business operations, a communal kitchen space, bathroom facilities and a city centre location that is perfect for those that need to commute.
Investment details
It currently produces an annual gross income of £10,500 with tenants currently situated. Considering the purchase price and the potential rental income that could be earned in future years, this will make for a worthwhile addition to an investors property portfolio.
For greater detail on this property's investment potential, please see the Let Property Pack linked below.
If you are interested, please call us.
We are committed to facilitating a smooth transaction process between buyer and seller. To allow for maximum commitment to the sale from both parties, a Buyers Premium will apply in order to secure a property.
Brochures
Let Property PackEnergy Performance Certificates
EPCEPCStepney Street, Llanelli, SA15
NEAREST STATIONS
Distances are straight line measurements from the centre of the postcode- Llanelli Station0.6 miles
- Bynea Station2.7 miles
- Llangennech Station3.6 miles
Notes
Disclaimer - Property reference 223831306. The information displayed about this property comprises a property advertisement. Rightmove.co.uk makes no warranty as to the accuracy or completeness of the advertisement or any linked or associated information, and Rightmove has no control over the content. This property advertisement does not constitute property particulars. The information is provided and maintained by Let Property Sales & Management, Glasgow. Please contact the selling agent or developer directly to obtain any information which may be available under the terms of The Energy Performance of Buildings (Certificates and Inspections) (England and Wales) Regulations 2007 or the Home Report if in relation to a residential property in Scotland.
Map data ©OpenStreetMap contributors.






