
Thorne Road, Doncaster

- PROPERTY TYPE
Semi-Detached
- BEDROOMS
4
- BATHROOMS
1
- SIZE
Ask agent
- TENUREDescribes how you own a property. There are different types of tenure - freehold, leasehold, and commonhold.Read more about tenure in our glossary page.
Freehold
Description
This 4 bedroom semi detached house is situated in this popular residential area and is offered with no onwards chain. With PVC double glazing and gas central heating, it briefly comprises: Entrance hall, dining room, lounge which extends to the full length of the property, fitted kitchen, ground floor W/C, first floor landing, 4 good sized bedrooms, shower room and a separate W/C. Outside, there are gardens to the front and rear plus off road parking for a number of vehicles and a detached garage. Offered with no onwards chain, viewing is highly recommended to appreciate the accommodation on offer.
Accommodation - A PVC double glazed door with double glaze side screen gives access to the entrance hall.
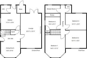
Entrance Hall - With stairs giving access to the first floor landing, an understairs storage cupboard, a ceiling light and a broad opening to the dining room.
Lounge - 6.38m x 3.94m (20'11" x 12'11") - A great space, extending to the full length of the property, the lounge has a PVC double glazed window to the front, further double glazed French style doors opening onto the rear garden, 2 central heating radiators, 2 central ceiling lights, a gas fire inset to the wall and picture rail to the walls.
Dining Room - 3.66m x 3.00m (12'0" x 9'10") - A good sized reception room, it has a PVC double glazed bay window to the front, beamed ceiling, 2 central heating radiators and a ceiling pendant light.
Kitchen - 3.63m x 3.15m (11'11" x 10'4") - Fitted with a range of high and low level units finished with an oak effect cabinet door and a work surface over, there is a single drainer stainless steel sink unit, tiling to the walls, plumbing for an automatic washing machine, a PVC double glazed window, a double glazed exterior door and a further door to the ground floor W/C.
First Floor Landing - AS previously mentioned, stairs rise from the entrance hall to the first floor landing.
With a ceiling light, a PVC double glazed window and doors to the remaining accommodation.
Bedroom 1 - 4.32m x 3.63m (14'2" x 11'11") - A large double bedroom, there is a PVC double glazed window to the front, picture rail, 2 central heating radiators, a central ceiling light and beams to the ceiling.
Bedroom 2 - 3.94m x 3.12m (12'11" x 10'3") - Another good sized double room, it has a PVC double glazed window to the front, picture rail, a central heating radiator and a central ceiling light.
Bedroom 3 - 3.94m x 3.12m (12'11" x 10'3") - Again, a double room, it has a PVC double glazed window to the rear, picture rail, a central heating radiator and a central ceiling light.
Bedroom 4 - 3.15m x 2.72m (10'4" x 8'11") - A good sized fourth bedroom, there is a PVC double glazed window to the side, a built in cupboard and a central ceiling light.
Shower Room - This is all smartly fitted with a shower enclosure including an electric shower and a pedestal wash hand basin. There is tiling to the walls, a ceiling light, a PVC double glazed window and a central heating radiator.
Separate W/C - Fitted with a low flush W/C and a PVC double glazed window.
Outside - To the front of the property, there is a lawned garden with inset trees and shrubs plus a side driveway leading to a detached garage.
Rear Garden - The rear garden is a good size, it is mainly lawned with a patio/ sitting area. There is inset plants, trees and shrubs, a timber storage shed and fencing to the perimeters.
Agents Notes: - TENURE - FREEHOLD.
SERVICES - All mains services are connected.
DOUBLE GLAZING - PVC double glazing, where stated. Age of units various.
HEATING - Gas radiator central heating. Age of boiler TBC.
COUNCIL TAX - Band D.
BROADBAND - Ultrafast broadband is available with download speeds of up to 1000 mbps and upload speeds of up to 1000 mbps.
MOBILE COVERAGE - Coverage is available with EE, Three, 02 and Vodafone.
VIEWING - By prior telephone appointment with horton knights estate agents.
MEASUREMENTS - Please note all measurements are approximate and for guidance purposes only, with a six inch tolerance. Therefore please do NOT rely upon them for carpet measurements, furniture and the like. Similarly, the floor plan is designed as a visual reference and is NOT a scale drawing.
PROPERTY PARTICULARS - We endeavour to make our property particulars accurate and reliable, however if there is a point that is especially important to you, please contact ourselves prior to exchange of contracts, so that we may further clarify that point. We DO NOT give any warranty to the suitability of any part, including fixtures and fittings of this property, prospective buyers are kindly asked to take specific advice from their professional advisors.
OPENING HOURS - Monday - Friday 9:00 - 5:30 Saturday 9:00 - 3:00 Sunday
INDEPENDENT MORTGAGE ADVICE - With so many mortgage options to choose from, how do you know your getting the best deal? Quite simply...YOU DON'T. Talk to an expert. We offer uncomplicated impartial advice. Call us today: .
FREE VALUATIONS - If you need to sell a house then please take advantage of our FREE VALUATION service, contact our Doncaster Office for a prompt and efficient service.
Brochures
Thorne Road, DoncasterBrochure- COUNCIL TAXA payment made to your local authority in order to pay for local services like schools, libraries, and refuse collection. The amount you pay depends on the value of the property.Read more about council Tax in our glossary page.
- Band: D
- PARKINGDetails of how and where vehicles can be parked, and any associated costs.Read more about parking in our glossary page.
- Driveway
- GARDENA property has access to an outdoor space, which could be private or shared.
- Yes
- ACCESSIBILITYHow a property has been adapted to meet the needs of vulnerable or disabled individuals.Read more about accessibility in our glossary page.
- Ask agent
Thorne Road, Doncaster
Add an important place to see how long it'd take to get there from our property listings.
__mins driving to your place
Get an instant, personalised result:
- Show sellers you’re serious
- Secure viewings faster with agents
- No impact on your credit score



Your mortgage
Notes
Staying secure when looking for property
Ensure you're up to date with our latest advice on how to avoid fraud or scams when looking for property online.
Visit our security centre to find out moreDisclaimer - Property reference 33825059. The information displayed about this property comprises a property advertisement. Rightmove.co.uk makes no warranty as to the accuracy or completeness of the advertisement or any linked or associated information, and Rightmove has no control over the content. This property advertisement does not constitute property particulars. The information is provided and maintained by Horton Knights, Doncaster. Please contact the selling agent or developer directly to obtain any information which may be available under the terms of The Energy Performance of Buildings (Certificates and Inspections) (England and Wales) Regulations 2007 or the Home Report if in relation to a residential property in Scotland.
*This is the average speed from the provider with the fastest broadband package available at this postcode. The average speed displayed is based on the download speeds of at least 50% of customers at peak time (8pm to 10pm). Fibre/cable services at the postcode are subject to availability and may differ between properties within a postcode. Speeds can be affected by a range of technical and environmental factors. The speed at the property may be lower than that listed above. You can check the estimated speed and confirm availability to a property prior to purchasing on the broadband provider's website. Providers may increase charges. The information is provided and maintained by Decision Technologies Limited. **This is indicative only and based on a 2-person household with multiple devices and simultaneous usage. Broadband performance is affected by multiple factors including number of occupants and devices, simultaneous usage, router range etc. For more information speak to your broadband provider.
Map data ©OpenStreetMap contributors.





