North Street, Downend, BS16

Letting details
- Let available date:
- 06/07/2026
- Deposit:
- £3,000A deposit provides security for a landlord against damage, or unpaid rent by a tenant.Read more about deposit in our glossary page.
- Min. Tenancy:
- 12 months How long the landlord offers to let the property for.Read more about tenancy length in our glossary page.
- Furnish type:
- Furnished
- Council Tax:
- Ask agent
- PROPERTY TYPE
Detached
- BEDROOMS
4
- BATHROOMS
1
- SIZE
Ask agent
Key features
- AVAILABLE SUMMER
- 4 DOUBLE BEDROOM PROPERTY
- LUXURY STUDENT ACCOMMODATION
- 15MIN DRIVE TO CAMPUS
- CLOSE TO PLENTY OF LOCAL AMENITIES
- GATED DRIVEWAY
- PRIVATE PARKING FOR 2
- PRIVATE GARDEN
- BIKE STORAGE
Description
NEW BUILD | FINISHED READY FOR JULY 2026 | BRAND NEW
4-Bed Student House - North Street
This stunning property is not your typical student accommodation - it's brand new, high-end, and exceptionally spacious, offering a modern home designed with students in mind.
Living Space:
Beautiful open-plan kitchen & lounge area
Comfortable communal sofas and wall-mounted TVs
Breakfast bar with seating, plus fully fitted white goods
Bedrooms & Bathrooms:
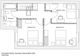
4 generous double bedrooms with mattresses, desk, office chair, and a two-drawer bedside table. Bedrooms One, Two and Four also include a hanging rail and three-drawer chest of drawers. Bedroom Three benefits from a walk-in wardrobe with lighting, hanging rail, shelving, and drawers.
1 full-size bathroom upstairs (with seperate shower and bath)
1 ground floor WC
Outdoor & Parking:
Designated driveway behind a secure electronic gate
Garden with washing lines
Location
Situated on North Street in Downend, you'll have easy access to local shops, transport links and amenities, while still enjoying a high-quality, comfortable space to live and study.
- COUNCIL TAXA payment made to your local authority in order to pay for local services like schools, libraries, and refuse collection. The amount you pay depends on the value of the property.Read more about council Tax in our glossary page.
- Ask agent
- PARKINGDetails of how and where vehicles can be parked, and any associated costs.Read more about parking in our glossary page.
- Yes
- GARDENA property has access to an outdoor space, which could be private or shared.
- Yes
- ACCESSIBILITYHow a property has been adapted to meet the needs of vulnerable or disabled individuals.Read more about accessibility in our glossary page.
- Ask agent
Energy performance certificate - ask agent
North Street, Downend, BS16
Add an important place to see how long it'd take to get there from our property listings.
__mins driving to your place
Notes
Staying secure when looking for property
Ensure you're up to date with our latest advice on how to avoid fraud or scams when looking for property online.
Visit our security centre to find out moreDisclaimer - Property reference efacbd0f-4db4-4a2a-aa4e-29e3c074ce89. The information displayed about this property comprises a property advertisement. Rightmove.co.uk makes no warranty as to the accuracy or completeness of the advertisement or any linked or associated information, and Rightmove has no control over the content. This property advertisement does not constitute property particulars. The information is provided and maintained by Xeno Property, Bristol. Please contact the selling agent or developer directly to obtain any information which may be available under the terms of The Energy Performance of Buildings (Certificates and Inspections) (England and Wales) Regulations 2007 or the Home Report if in relation to a residential property in Scotland.
*This is the average speed from the provider with the fastest broadband package available at this postcode. The average speed displayed is based on the download speeds of at least 50% of customers at peak time (8pm to 10pm). Fibre/cable services at the postcode are subject to availability and may differ between properties within a postcode. Speeds can be affected by a range of technical and environmental factors. The speed at the property may be lower than that listed above. You can check the estimated speed and confirm availability to a property prior to purchasing on the broadband provider's website. Providers may increase charges. The information is provided and maintained by Decision Technologies Limited. **This is indicative only and based on a 2-person household with multiple devices and simultaneous usage. Broadband performance is affected by multiple factors including number of occupants and devices, simultaneous usage, router range etc. For more information speak to your broadband provider.
Map data ©OpenStreetMap contributors.





