
Commercial property for sale
Former Clinic, Leek Road, Stoke on Trent
- PROPERTY TYPE
Commercial Property
- SIZE
7,815 sq ft
726 sq m
Description
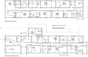
Full planning permission for 12 x 1 bed apartments
For Sale By Auction at 6.30 pm on Monday 9th March 2026
at the Double Tree By Hilton Hotel, Festival Park, Stoke-on-Trent, ST1 5BQ
Contact the Auction Team to Register: or
Description - The property comprises a former NHS clinic measuring 726 sq. m (GIA). which is sat upon a 0.35 acre parcel of land. The property has full planning consent for change of use to 12 self contained flats. (REF; 70467/FUL).
There may be potential for alternative uses subject to the necessary planning permission and consents. It is important that prospective purchasers ensure they have inspected the site and rely upon their own enquiries, assessments and due diligence with regards to its current and potential uses.
Location - The property is well positioned close to local day-to-day amenities, including convenience stores, takeaways and community services, with a wider range of retail and leisure facilities available in Hanley town centre (2 miles). The site benefits from strong road connectivity via Leek Road (A52) leading to the A500, providing direct links across Stoke-on-Trent and onward access to the M6 motorway. Public transport links are available locally, with the 43 bus running from Milton to Hanley Town Centre and the 42 from Ball Green to Hanley, Stoke-on-Trent railway station is located 2.4 miles away, offering regular regional and national services.
Planning & Supporting Information. - The site benefits from full planning consent for 'Change of use to 12 self contained flats together with elevational alterations' dated 22/02/2024 (Ref; 70467/FUL ). A full info pack is available on request which includes the following:
- Decision Notice
- Supplementary Reports
- Plans
- BJB Comparable Evidence
- Photos
NB: Whilst BJB will try and supply as much information as we can about the planning status of the land / property, please be mindful that we are not planning consultants and accordingly it is important that prospective purchasers ensure they have inspected the land / property and rely upon their own enquiries, assessments and due diligence with regards to the planning status and current or potential uses. All information is supplied in good faith and BJB cannot be held liable for any errors or omissions.
Or
Please - it is important that prospective purchasers ensure they have inspected the land / property and rely upon their own enquiries, assessments and due diligence with regards to the planning status and current or potential uses.
Or
Stafford Borough Council )
Staffordshire Moorlands District Council (Tel: )
Cheshire East Council (Tel: )
We are not aware of any current or historic planning consents in relation to this site, however there may be potential for alternative uses subject to the necessary planning permission and consents. It is important that prospective purchasers ensure they have inspected the site and rely upon their own enquiries, assessments and due diligence with regards to its current and potential uses.
Accommodation And Values. - The proposed scheme comprises the following:
Unit 1 - 1 Bed apartment measuring 70.6 Sq. m
Est. £80,000 GDV - £600 PCM
Unit 2 - 1 Bed apartment measuring 40.1 Sq. m
Est. £80,000 GDV - £600 PCM
Unit 3 - 1 Bed apartment measuring 40.2 Sq. m
Est. £80,000 GDV - £600 PCM
Unit 4 - 1 Bed apartment measuring 42.13 Sq. m
Est. £80,000 GDV - £600 PCM
Unit 5 - 1 Bed apartment measuring 44.16 Sq. m
Est. £80,000 GDV - £600 PCM
Unit 6 - 1 Bed apartment measuring 49.65 Sq. m
Est. £80,000 GDV - £600 PCM
Unit 7 - 1 Bed apartment measuring 40.5 Sq. m
Est. £80,000 GDV - £600 PCM
Unit 8 - 1 Bed apartment measuring 49.8 Sq. m
Est. £80,000 GDV - £600 PCM
Unit 9 - 1 Bed apartment measuring 49.5 Sq. m
Est. £80,000 GDV - £600 PCM
Unit 10 - 1 Bed apartment measuring 44.62 Sq. m
Est. £80,000 GDV - £600 PCM
Unit 11 - 1 Bed apartment measuring 39.68 Sq. m
Est. £80,000 GDV - £600 PCM
Unit 12 - 1 Bed apartment measuring 45.46 Sq. m
Est. £80,000 GDV - £600 PCM
Total GDV £960,000
Total Rental Value - £7,200 PCM (£86,400 Annually)
Any sizes / values quoted by BJB are correct to the best of our knowledge, however we would recommended all interest parties carry out their own checks before relying on any information provided.
Local Council - The site is located in the Council district of Stoke
Business Rates & Epc - The current Rateable Value for the property is £x . Queries regarding the rates payable should be addressed to xxx Council: 01782 website
The property has a current EPC rating of x and is valid until xx
Tenure. - Freehold with vacant possession upon completion.
Vat. - All prices quoted by Butters John Bee are exclusive of VAT unless otherwise stated. As the current use of the land is wholly residential in nature, it is assumed that VAT will not be applicable. However, all interested parties should make their own enquiries to satisfy themselves with the VAT position.
Pre-Auction Offers. - Any pre-Auction offers should be submitted via e-mail to residential- . All offers will be forwarded to the client for consideration, but please be aware that the majority of clients prefer to let the marketing run for a period, prior to giving serious consideration to accepting any pre-Auction offer.
Common Auction Conditions. - This property is sold subject to our Common Auction Conditions (a copy is available on request).
Buyers Admin Fee. - A buyers administration fee of £1,800 including VAT is applicable to this lot. The purchaser will pay the fee whether the property is bought before, at or following the auction date.
anything over £500,000
A buyers administration fee of £3,600 including VAT is applicable to this lot. The purchaser will pay the fee whether the property is bought before, at or following the auction date.
anything over £1m
A buyers administration fee of £6,000 including VAT is applicable to this lot. The purchaser will pay the fee whether the property is bought before, at or following the auction date.
Legal Pack. - Purchasing a property at auction is a firm commitment that carries the same legal implications as a signed contract by private treaty. It is important that you consult with your legal adviser before bidding and also your accountant regarding the impact of VAT, if applicable, on the sale price. The legal pack can be viewed online via our website Legal packs can also be viewed at the selling office. These documents should be passed to your legal adviser as they will help you make an informed decision about the lot. If you need further legal information please contact the vendor's solicitor whose details will be in the auction catalogue. Remember that you buy subject to all documentation and terms of contract whether or not you have read them.
Addendum. - Check the latest addendum at buttersjohnbee.com for any alterations or changes to the catalogue.
Internet, Telephone And Proxy Bidding - We are pleased to announce that we are now back in the Auction room at the Double Tree Hilton Hotel (Moat House). However, we also have the other bidding options available: On-Line / Telephone / By-Proxy. You will need to register in advance and provide two forms of ID. Register at or contact the Auction Team on or .
Legal Costs - Please refer to the auction pack in respect of any legal fees or search fees which may be due upon exchange or completion.
Deposit - Please note that a deposit of 10% of the purchase price (Min £3,000) will be due on Exchange of Contracts, whether the land / property is sold prior to Auction, in the Auction room or after the Auction.
Viewings - Strictly By Appointment with the BJB Land & New Homes Team
All Enquiries - Paul G. Beardmore BSc MRICS
Director - Residential Land
Land & New Homes Team
residential-
Alex Djukic BSc MSc
Regional Land Manager
Land & New Homes Team
residential-
Joe Boulton
Assistant Land Manager
Land & New Homes Team
residential-
Looking For Land & Development Opportunities? - Please note that not all land & development opportunities will appear on our website. To ensure that you do not miss out on these opportunities please e-mail: residential- or call the Land & New Homes team to discuss your requirements.
Brochures
Former Clinic, Leek Road, Stoke on TrentBrochureFormer Clinic, Leek Road, Stoke on Trent
NEAREST STATIONS
Distances are straight line measurements from the centre of the postcode- Stoke-on-Trent Station1.5 miles
- Longton Station2.5 miles
- Longport Station2.8 miles
Notes
Disclaimer - Property reference 34440421. The information displayed about this property comprises a property advertisement. Rightmove.co.uk makes no warranty as to the accuracy or completeness of the advertisement or any linked or associated information, and Rightmove has no control over the content. This property advertisement does not constitute property particulars. The information is provided and maintained by Butters John Bee Land, Stoke-on-Trent. Please contact the selling agent or developer directly to obtain any information which may be available under the terms of The Energy Performance of Buildings (Certificates and Inspections) (England and Wales) Regulations 2007 or the Home Report if in relation to a residential property in Scotland.
Auction Fees: The purchase of this property may include associated fees not listed here, as it is to be sold via auction. To find out more about the fees associated with this property please call Butters John Bee Land, Stoke-on-Trent on 01782 493945.
*Guide Price: An indication of a seller's minimum expectation at auction and given as a Guide Price or a range of Guide Prices. This is not necessarily the figure a property will sell for and is subject to change prior to the auction.
Reserve Price: Each auction property will be subject to a Reserve Price below which the property cannot be sold at auction. Normally the Reserve Price will be set within the range of Guide Prices or no more than 10% above a single Guide Price.
Map data ©OpenStreetMap contributors.






