3 bedroom semi-detached house for sale
Acres Rise, Ticehurst, TN5

- PROPERTY TYPE
Semi-Detached
- BEDROOMS
3
- BATHROOMS
1
- SIZE
839 sq ft
78 sq m
- TENUREDescribes how you own a property. There are different types of tenure - freehold, leasehold, and commonhold.Read more about tenure in our glossary page.
Freehold
Key features
- Quiet close yet within half a mile of the village amenities and school
- Bewl Water, Dale Hill golf course and Bedgebury Forest all nearby
- 3 bedrooms
- South-facing garden
- Off-road parking space and unrestricted on street parking
Description
Located in a quiet close, within half a mile of the village centre and only a short walk from the primary school and recreation ground, is this good looking, semi-detached, three bedroom house with off-road parking and South facing garden. EPC: D
Coming to the market for the first time in twenty years, having served very well as a family home for the present owners, this semi-detached house offers well balanced accommodation over two floors, an off-road parking space to the front and an enclosed South-facing garden to the rear.
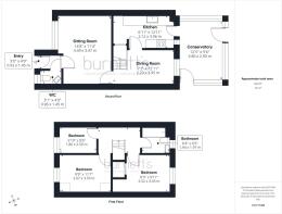
The accommodation includes two reception rooms, a kitchen, conservatory and WC on the ground floor plus three bedrooms and a bathroom on the first floor.
The conservatory has worked very well as an extra reception room, having been used as a playroom, office and for storage over the years. Although it does now require some TLC as some of the wooden frame has started to deteriorate. It has power, heating and lighting.
The kitchen is fitted with wall and base units and has space for a freestanding fridge freezer, washing machine and dishwasher. There is an integrated oven and gas hob with extractor over and useful under stairs storage as well. The kitchen would now benefit from being updated.
A new gas-fired boiler was installed in November 2025 and there is a smart Hive system for controlling the heating.
The majority of the ground floor is laid with laminate wood-effect flooring, perfect for young families and pets.
The bathroom was updated about 7 years ago and features an electric shower over a panelled bath.
The main bedroom has some fitted wardrobes and space for further wardrobes and drawers. The second bedroom is currently used as a single bedroom and study but would accommodate a double bed. The third bedroom is a single bedroom.
To the South-facing rear of the house is a fenced garden laid with decorative pebbles. There is a garden shed and space for seating and pot plants. There is an outside tap and rear gated access.
Location:
Ticehurst is a picturesque village located about 3.5 miles East of Wadhurst and about 10 miles South-East of Royal Tunbridge Wells, in the High Weald National Landscape.
The village offers a lot of amenities including an award-winning pub in The Bell Inn (plus two more pubs close by), a village store with post office facilities, open seven days a week, a greengrocers, Buy the Weigh (zero waste shop and popular cafe), chemist and hairdressers, among others. Close to this property is the village hall and recreation ground with children's playground, and the village primary school, which is rated Good by Ofsted. There is also St Mary’s Church, in the centre of the village and Dale Hill Golf Course and Hotel nearby, which also has leisure facilities.
The surrounding countryside provides a wealth of walking opportunities and stunning scenery, including nearby Bewl Water Reservoir and Bedgebury Pinetum, which are popular attractions.
Nearby Hawkhurst (5 miles) has supermarkets, a small cinema and other amenities. Tunbridge Wells offers more comprehensive shopping and recreational facilities.
The nearest stations are at Stonegate (3.7 miles), Wadhurst (5.6 miles) and Etchingham (4.5 miles). These all serve London Charing Cross and Cannon Street (Stonegate to London Bridge in just under 1hr). There is a bus service that runs through the village serving Hawkhurst, Wadhurst, Wadhurst station and Tunbridge Wells.
Wadhurst has a secondary school and there are prep schools in Hawkhurst. Tunbridge Wells offers a wider selection of educational facilities including boys and girls grammar schools.
Material Information:
Rother District Council. Tax Band D (rates are not expected to rise upon completion).
Mains Gas, electricity, water and drainage.
The property is believed to be of brick/block construction with cavity wall insulation, half-weatherboarded elevations and a concrete tiled roof.
We are not aware of any safety or cladding issues.
The property does have some artex ceiling which may contain traces of asbestos (not tested).
The wooden frame of the conservatory does need some attention.
The property is located within the High Weald National Landscape and an Article 4 Area.
The title has restrictions and easements, in particular relating to what can be done with the garden. We suggest you seek legal advice on the title.
According to the Government Flood Risk website, there is a very low risk of flooding.
Broadband coverage: According to Ofcom, Ultrafast broadband is available in this location.
Mobile Coverage: There is good mobile coverage from 02 in this area.
We are not aware of any mining operations in the vicinity.
We are not aware of planning permission for new houses / extensions at any neighbouring properties.
The property does not have step free access.
B3 B4
EPC Rating: D
Disclaimer
These sales particulars are designed as a general guide. We have not carried out a detailed survey nor tested the services, appliances and specific fittings. All measurements and distances are approximate. Parties are advised to verify the accuracy of any details when considering making an offer. These particulars are believed to be accurate at the time of publishing, but we cannot guarantee their accuracy and they should not be relied upon as statements or representations of fact, and they do not form part of any contract. Any reference to alterations made to any part of the property is not a statement that the necessary planning, building regulations or any other consent has been obtained. It should not be assumed that any items photographed are included in the sale. Please contact us if there is a specific area of importance to you, particularly if travelling some distance.
Brochures
Brochure- COUNCIL TAXA payment made to your local authority in order to pay for local services like schools, libraries, and refuse collection. The amount you pay depends on the value of the property.Read more about council Tax in our glossary page.
- Band: D
- PARKINGDetails of how and where vehicles can be parked, and any associated costs.Read more about parking in our glossary page.
- Yes
- GARDENA property has access to an outdoor space, which could be private or shared.
- Private garden
- ACCESSIBILITYHow a property has been adapted to meet the needs of vulnerable or disabled individuals.Read more about accessibility in our glossary page.
- Ask agent
Acres Rise, Ticehurst, TN5
Add an important place to see how long it'd take to get there from our property listings.
__mins driving to your place
Get an instant, personalised result:
- Show sellers you’re serious
- Secure viewings faster with agents
- No impact on your credit score
Your mortgage
Notes
Staying secure when looking for property
Ensure you're up to date with our latest advice on how to avoid fraud or scams when looking for property online.
Visit our security centre to find out moreDisclaimer - Property reference 3dfdc0d1-89cb-41ec-90f1-c00f536c01ca. The information displayed about this property comprises a property advertisement. Rightmove.co.uk makes no warranty as to the accuracy or completeness of the advertisement or any linked or associated information, and Rightmove has no control over the content. This property advertisement does not constitute property particulars. The information is provided and maintained by Burnetts, Wadhurst. Please contact the selling agent or developer directly to obtain any information which may be available under the terms of The Energy Performance of Buildings (Certificates and Inspections) (England and Wales) Regulations 2007 or the Home Report if in relation to a residential property in Scotland.
*This is the average speed from the provider with the fastest broadband package available at this postcode. The average speed displayed is based on the download speeds of at least 50% of customers at peak time (8pm to 10pm). Fibre/cable services at the postcode are subject to availability and may differ between properties within a postcode. Speeds can be affected by a range of technical and environmental factors. The speed at the property may be lower than that listed above. You can check the estimated speed and confirm availability to a property prior to purchasing on the broadband provider's website. Providers may increase charges. The information is provided and maintained by Decision Technologies Limited. **This is indicative only and based on a 2-person household with multiple devices and simultaneous usage. Broadband performance is affected by multiple factors including number of occupants and devices, simultaneous usage, router range etc. For more information speak to your broadband provider.
Map data ©OpenStreetMap contributors.




