
4 bedroom detached house for sale
Fallowfield Road, Scartho, Grimsby

- PROPERTY TYPE
Detached
- BEDROOMS
4
- BATHROOMS
2
- SIZE
Ask agent
- TENUREDescribes how you own a property. There are different types of tenure - freehold, leasehold, and commonhold.Read more about tenure in our glossary page.
Freehold
Key features
- VILLAGE LOCATION
- DETACHED FAMILY HOME
- LIVING KITCHEN DINER
- UTILITY ROOM
- SUNROOM
- LOUNGE
- FOUR BEDROOMS
- MASTER WITH EN SUITE SHOWER ROOM
- BATHROOM
- GARAGE STORE & HOME OFFICE
Description
Draft Details - PLEASE NOTE THESE ARE DRAFT PARTICULARS AWAITING FINAL APPROVAL FROM THE VENDOR, THEREFORE THE CONTENTS HEREIN MAY BE SUBJECT TO CHANGE AND MUST NOT BE RELIED UPON AS AN ENTIRELY ACCURATE DESCRIPTION OF THE PROPERTY.
Measurements - All measurements are approximate.
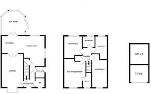
Accommodation - .
Entrance - Accessed via a composite door with side light panels into the hallway.
Hallway - Having wood effect laminate flooring, radiator, carpeted stairs leading to the first floor and Oak connecting doors.
Cloakroom - 1.50 x 1.10 (4'11" x 3'7") - Benefitting from a white two piece suite comprising of; Pedestal hand wash basin and low flush wc. Finished with tiling to the splashback area, radiator, wood effect laminate flooring and a uPVC double glazed window to the front aspect.
Utility Room - 1.80 x 1.70 (5'10" x 5'6") - The handy utility room has a uPVC door leading to the driveway, handy worksurface and ample space for an automatic washing machine and tumble dryer. Wall mounted boiler and finished with tiled effect vinyl flooring.
Living Kitchen Diner - 7.02 x 5.53 (23'0" x 18'1") - The living kitchen diner is the true hub of the home with ample space for a large family dining table and seating area ideal for a young family or entertaining. The kitchen benefits from a large range of cream shaker style wall and base unit with contrasting work surfaces and matching upstands and incorporates a composite sink and drainer, ceramic hob with stainless steel splash back, stainless steel chimney style extractor hood above and double electric fan assisted oven beneath. Finished with dual aspect uPVC double glazed windows, one with blinds the other with plantation shutters, radiator, large storage cupboard and tiled effect vinyl flooring. The dining or seating area has wood effect laminate flooring, radiator and double Oak doors leading to the lounge and further double glazed Oak doors leading to the conservatory.
Living Kitchen Diner -
Living Kitchen Diner -
Living Kitchen Diner -
Living Kitchen Diner -
Sunroom - 3.90 x 3.46 (12'9" x 11'4") - A brilliant addition creating further open plan living accessed via double Oak doors from the living kitchen diner the sunroom is brick base with uPVC double glazed windows above and French doors leading to the patio. Finished with a radiator and wood effect laminate flooring.
Lounge - 5.82 x 3.24 (19'1" x 10'7") - The family lounge can be accessed via the hall or the living dining kitchen and has a uPVC double glazed square bay window fitted with white plantation shutters to the front aspect, wood effect laminate flooring and radiator.
Lounge -
Lounge -
First Floor - .
First Floor Landing - Having continued carpeted flooring, dado rail, radiator, built in airing cupboard and loft access to the ceiling. The loft has full insulation, boarding, light and pull down ladder.
Bedroom One - 4.02 x 3.31 (13'2" x 10'10") - The master bedroom has a uPVC double glazed window to the front aspect, carpeted flooring, radiator and built in wardrobes with sliding doors.
Bedroom One -
En Suite Shower Room - 1.94 x 1.61 (6'4" x 5'3") - The en suite shower room benefits from a white three piece suite comprising of; Shower with glazed screen, tiled splashbacks, hand wash basin with handy storage beneath and low flush wc. Finished with tiling to the splashback, tiled effect laminate flooring, radiator and a uPVC double glazed window to the front aspect.
Bedroom Two - 4.99 x 2.72 (16'4" x 8'11") - The second double bedroom has a uPVC double glazed window to the front aspect, carpeted flooring and radiator.
Bedroom Two -
Bedroom Three - 3.36 x 2.50 (11'0" x 8'2") - The third double bedroom is to the rear of the property with a uPVC double glazed window, carpeted flooring and radiator.
Bedroom Four - 3.33 x 2.50 (10'11" x 8'2") - The fourth bedroom has a uPVC double glazed window to the rear aspect, carpeted flooring and radiator.
Family Bathroom - 2.05 x 1.71 (6'8" x 5'7") - The family bathroom benefits from a white three piece suite comprising of; Bath with hand shower attachment, pedestal hand wash basin and low flush wc. Finished with part tiling to the walls, tiled effect vinyl flooring, radiator and uPVC double glazed door to the rear aspect.
Outside -
The Gardens - The property enjoys a cul de sac position with an open plan front garden which has a lawn and parking area, paved driveway providing further off road parking leading to the garage store and a wooden gate leading to the rear garden. The enclosed rear garden has fenced boundaries with mature planting to the borders, artificial lawn and a large paved patio that wraps round to provide two seating areas ideal for outside entertaining.
Garage Store / Home Office - The brick built garage has an up and over door to the front aspect and has been converted to provide handy storage and is fitted with electric and lighting. The rear of the garage has been made into a home office with uPVC double glazed French doors and a uPVC double glazed window to the rear aspect.
The Gardens -
The Gardens -
Council Tax Band & Epc Rating - Council Tax Band - D
EPC -
Tenure - Freehold - We are informed by the seller that the tenure of this property is Freehold. Confirmation / verification has been requested. Please consult us for further details.
Viewing Arrangements - Please contact Joy Walker Estate Agents on to arrange a viewing on this property.
Opening Times - Monday - Friday 9.00 am to 5.15 pm. Saturday 9.00 am to 1.00 pm
Brochures
Fallowfield Road, Scartho, GrimsbyEPCBrochure- COUNCIL TAXA payment made to your local authority in order to pay for local services like schools, libraries, and refuse collection. The amount you pay depends on the value of the property.Read more about council Tax in our glossary page.
- Band: D
- PARKINGDetails of how and where vehicles can be parked, and any associated costs.Read more about parking in our glossary page.
- Yes
- GARDENA property has access to an outdoor space, which could be private or shared.
- Yes
- ACCESSIBILITYHow a property has been adapted to meet the needs of vulnerable or disabled individuals.Read more about accessibility in our glossary page.
- Ask agent
Fallowfield Road, Scartho, Grimsby
Add an important place to see how long it'd take to get there from our property listings.
__mins driving to your place
Get an instant, personalised result:
- Show sellers you’re serious
- Secure viewings faster with agents
- No impact on your credit score



Your mortgage
Notes
Staying secure when looking for property
Ensure you're up to date with our latest advice on how to avoid fraud or scams when looking for property online.
Visit our security centre to find out moreDisclaimer - Property reference 34441067. The information displayed about this property comprises a property advertisement. Rightmove.co.uk makes no warranty as to the accuracy or completeness of the advertisement or any linked or associated information, and Rightmove has no control over the content. This property advertisement does not constitute property particulars. The information is provided and maintained by Joy Walker Estate Agents, Cleethorpes. Please contact the selling agent or developer directly to obtain any information which may be available under the terms of The Energy Performance of Buildings (Certificates and Inspections) (England and Wales) Regulations 2007 or the Home Report if in relation to a residential property in Scotland.
*This is the average speed from the provider with the fastest broadband package available at this postcode. The average speed displayed is based on the download speeds of at least 50% of customers at peak time (8pm to 10pm). Fibre/cable services at the postcode are subject to availability and may differ between properties within a postcode. Speeds can be affected by a range of technical and environmental factors. The speed at the property may be lower than that listed above. You can check the estimated speed and confirm availability to a property prior to purchasing on the broadband provider's website. Providers may increase charges. The information is provided and maintained by Decision Technologies Limited. **This is indicative only and based on a 2-person household with multiple devices and simultaneous usage. Broadband performance is affected by multiple factors including number of occupants and devices, simultaneous usage, router range etc. For more information speak to your broadband provider.
Map data ©OpenStreetMap contributors.





