
9 bedroom detached house for sale
Sheldon Avenue, London, N6

- PROPERTY TYPE
Detached
- BEDROOMS
9
- BATHROOMS
7
- SIZE
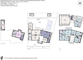
9,246 sq ft
859 sq m
- TENUREDescribes how you own a property. There are different types of tenure - freehold, leasehold, and commonhold.Read more about tenure in our glossary page.
Freehold
Key features
- Exceptional detached freehold house
- Expansive entertaining space
- Flexible and versatile bedroom accommodation
- Landscaped garden with swimming pool
- Gym and treatment room
- Cinema
- EPC Rating = C
Description
Description
Nestled on one of the most prestigious avenues in Highgate, this magnificent eight-bedroom detached residence (9246 sqft / 859 sqm) offers unparalleled luxury and privacy, complete with secure gated access, a spacious garage, an expansive carriage driveway, and a beautifully landscaped garden featuring a swimming pool.
Upon entry, you are welcomed by a striking grand entrance that highlights the extensive proportions and sophistication of the home. The ground floor encompasses versatile living spaces exquisitely designed for both family gatherings and entertaining guests. This level features a contemporary Poggenpohl kitchen with an elegant dining area and a formal reception room, both of which open directly onto the landscaped garden, providing a seamless indoor-outdoor experience. Additional highlights on this floor include a formal dining area, an inviting secondary reception room, a two-story conservatory currently used as an office space, a functional utility room, and a convenient guest WC. The outdoor oasis boasts a delightful swimming pool, making it a perfect retreat for family enjoyment during the summer season.
Ascending to the first floor up the stunning galleried staircase, you will discover an exceptional principal suite equipped with a luxurious dressing room, a lavish en-suite bathroom, and a private terrace ideal for sunbathing while overlooking the garden. This floor also accommodates five further generously sized double bedrooms, each featuring en-suite facilities, and an additional guest WC. On the second floor, the residence reveals an expansive playroom, perfectly suited for children's activities, complemented by an en-suite bathroom and kitchenette. Also located on this floor is a self-contained two-bedroom staff apartment with a well-appointed bathroom, offering greater flexibility for accommodating guests.
The lower ground level is dedicated to wellness and practicality, offering a gym complete with a sauna and bathroom amenities, massage/room / salon and a utility room equipped with a wine cellar.
Property photography courtesy of VCI Production Crew
Location
Sheldon Avenue is a serene residential street, conveniently located just a short stroll from the picturesque Kenwood and Hampstead Heath, as well as close proximity to the vibrant amenities of Highgate Village. The area is renowned for its prestigious schools, including Highgate and Channing, and provides effortless access to the Northern Line Underground stations: East Finchley (0.8 miles) and Highgate (0.9 miles), offering a quick commute to central London while indulging in the tranquil ambiance of elegant country living.
Square Footage: 9,246 sq ft
Brochures
Web DetailsParticulars- COUNCIL TAXA payment made to your local authority in order to pay for local services like schools, libraries, and refuse collection. The amount you pay depends on the value of the property.Read more about council Tax in our glossary page.
- Band: H
- PARKINGDetails of how and where vehicles can be parked, and any associated costs.Read more about parking in our glossary page.
- Yes
- GARDENA property has access to an outdoor space, which could be private or shared.
- Yes
- ACCESSIBILITYHow a property has been adapted to meet the needs of vulnerable or disabled individuals.Read more about accessibility in our glossary page.
- Ask agent
Sheldon Avenue, London, N6
Add an important place to see how long it'd take to get there from our property listings.
__mins driving to your place
Get an instant, personalised result:
- Show sellers you’re serious
- Secure viewings faster with agents
- No impact on your credit score
Your mortgage
Notes
Staying secure when looking for property
Ensure you're up to date with our latest advice on how to avoid fraud or scams when looking for property online.
Visit our security centre to find out moreDisclaimer - Property reference HAH250025. The information displayed about this property comprises a property advertisement. Rightmove.co.uk makes no warranty as to the accuracy or completeness of the advertisement or any linked or associated information, and Rightmove has no control over the content. This property advertisement does not constitute property particulars. The information is provided and maintained by Savills, Hampstead. Please contact the selling agent or developer directly to obtain any information which may be available under the terms of The Energy Performance of Buildings (Certificates and Inspections) (England and Wales) Regulations 2007 or the Home Report if in relation to a residential property in Scotland.
*This is the average speed from the provider with the fastest broadband package available at this postcode. The average speed displayed is based on the download speeds of at least 50% of customers at peak time (8pm to 10pm). Fibre/cable services at the postcode are subject to availability and may differ between properties within a postcode. Speeds can be affected by a range of technical and environmental factors. The speed at the property may be lower than that listed above. You can check the estimated speed and confirm availability to a property prior to purchasing on the broadband provider's website. Providers may increase charges. The information is provided and maintained by Decision Technologies Limited. **This is indicative only and based on a 2-person household with multiple devices and simultaneous usage. Broadband performance is affected by multiple factors including number of occupants and devices, simultaneous usage, router range etc. For more information speak to your broadband provider.
Map data ©OpenStreetMap contributors.





