
2 bedroom flat for sale
Flat 7 Bruce Court, Links Parade, Carnoustie, DD7 7JE

- PROPERTY TYPE
Flat
- BEDROOMS
2
- BATHROOMS
2
- SIZE
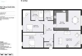
1,313 sq ft
122 sq m
- TENUREDescribes how you own a property. There are different types of tenure - freehold, leasehold, and commonhold.Read more about tenure in our glossary page.
Freehold
Key features
- Uninterrupted Golf Course & Sea Views
- Luxury Apartment
- Spacious Accomodation
- Gas Central Heating and Double Glazing
- Communal Gardens
- Garage & Private Residents Parking
Description
Perched proudly along the seafront at 7 Bruce Court, this beautifully curated apartment blends timeless period character with thoughtful modern touches - all set against the ever-changing backdrop of Carnoustie’s coastline. Just a short stroll from the town’s train station and with open green space stretching out in front, it’s a home that offers both serenity and convenience in equal measure.
Step inside, and the quality of the shared entrance immediately sets the tone - well kept and inviting, it reflects the quiet pride that residents take in this historic building. Within the apartment itself, the sense of care continues. The property has been diligently maintained in recent years, with ongoing investment in the fabric of the building including the roof, windows, and general upkeep, offering welcome peace of mind for the next owner.
At the heart of the home, the lounge is a striking yet welcoming space. Soaring ceilings, intricate cornicing, and a large bay window flood the room with natural light, framing uninterrupted views across the links and out to sea. The space is layered with colour and texture, from the feature fireplace wall to the rich hardwood floors, creating a room that feels as bold as it is comfortable.
To the front, the dining kitchen is just as impressive. Matte navy cabinetry, exposed brickwork, and industrial-inspired lighting bring a modern edge to this sociable space. A generous dining area sits perfectly within the bay, where shutters open to reveal more of that coastal outlook - a daily reminder of the setting that makes this home so special. Integrated appliances, including a wine fridge, dishwasher, and additional fitted appliances, are all included in the sale, allowing the next owner to move straight in and enjoy the space as intended.
The apartment offers two spacious double bedrooms, both tastefully decorated and wonderfully private. The principal bedroom benefits from a stylish en suite shower room, while a separate bathroom serves guests and the second bedroom - ideal for visiting family or those who work from home. Both the bathroom and en suite are enhanced by underfloor heating, adding a welcome touch of everyday luxury.
Externally, the property is just as well considered. Residents’ parking is available, and the flat comes with its own private garage - an increasingly rare feature in this central location.
From the integrity of its period features to the quality of its ongoing care, this is a home that speaks of quiet confidence, offering refined coastal living in the ever-popular town of Carnoustie.
EPC Rating: C
Brochures
Home Report- COUNCIL TAXA payment made to your local authority in order to pay for local services like schools, libraries, and refuse collection. The amount you pay depends on the value of the property.Read more about council Tax in our glossary page.
- Band: E
- PARKINGDetails of how and where vehicles can be parked, and any associated costs.Read more about parking in our glossary page.
- Yes
- GARDENA property has access to an outdoor space, which could be private or shared.
- Communal garden
- ACCESSIBILITYHow a property has been adapted to meet the needs of vulnerable or disabled individuals.Read more about accessibility in our glossary page.
- Ask agent
Energy performance certificate - ask agent
Flat 7 Bruce Court, Links Parade, Carnoustie, DD7 7JE
Add an important place to see how long it'd take to get there from our property listings.
__mins driving to your place
Get an instant, personalised result:
- Show sellers you’re serious
- Secure viewings faster with agents
- No impact on your credit score
Your mortgage
Notes
Staying secure when looking for property
Ensure you're up to date with our latest advice on how to avoid fraud or scams when looking for property online.
Visit our security centre to find out moreDisclaimer - Property reference d5a811c7-3f84-4de7-916b-a267d434be73. The information displayed about this property comprises a property advertisement. Rightmove.co.uk makes no warranty as to the accuracy or completeness of the advertisement or any linked or associated information, and Rightmove has no control over the content. This property advertisement does not constitute property particulars. The information is provided and maintained by Verdala, Dundee. Please contact the selling agent or developer directly to obtain any information which may be available under the terms of The Energy Performance of Buildings (Certificates and Inspections) (England and Wales) Regulations 2007 or the Home Report if in relation to a residential property in Scotland.
*This is the average speed from the provider with the fastest broadband package available at this postcode. The average speed displayed is based on the download speeds of at least 50% of customers at peak time (8pm to 10pm). Fibre/cable services at the postcode are subject to availability and may differ between properties within a postcode. Speeds can be affected by a range of technical and environmental factors. The speed at the property may be lower than that listed above. You can check the estimated speed and confirm availability to a property prior to purchasing on the broadband provider's website. Providers may increase charges. The information is provided and maintained by Decision Technologies Limited. **This is indicative only and based on a 2-person household with multiple devices and simultaneous usage. Broadband performance is affected by multiple factors including number of occupants and devices, simultaneous usage, router range etc. For more information speak to your broadband provider.
Map data ©OpenStreetMap contributors.






