
4 bedroom end of terrace house for rent
Benson Close, Bransgore, Christchurch

Letting details
- Let available date:
- 13/02/2026
- Deposit:
- £2,134A deposit provides security for a landlord against damage, or unpaid rent by a tenant.Read more about deposit in our glossary page.
- Min. Tenancy:
- 6 months How long the landlord offers to let the property for.Read more about tenancy length in our glossary page.
- Let type:
- Long term
- Furnish type:
- Unfurnished
- Council Tax:
- Ask agent
- PROPERTY TYPE
End of Terrace
- BEDROOMS
4
- BATHROOMS
1
- SIZE
Ask agent
Key features
- 4 BED
- New carpets fitted
- Council Tax Band D
- EPC RATING C
- Garden
- Gas central heating
- Unfurnished
- Walking distance to the village
Description
The property has been newly decorated throughout and benefits from brand new carpets and lino, creating a fresh, modern feel while maintaining its classic Georgian-style character.
The ground floor offers generous and flexible living accommodation, including a large living room, a separate dining room and a bright conservatory, ideal for family living or entertaining. The fitted kitchen is well appointed with integrated appliances and ample cupboard space.
Upstairs, the property provides four well-proportioned bedrooms and a family bathroom. As an end of terrace home, it enjoys additional privacy and excellent natural light throughout.
Situated in Bransgore, a charming and well-regarded village on the edge of the New Forest, the property benefits from a semi-rural setting with local shops, schools and amenities close by, while still offering convenient access to surrounding towns, countryside walks and coastal locations.
Offered unfurnished and available NOW, this property is ideal for tenants seeking space, comfort and village living.
Key Features:
- Four-bedroom end of terrace Georgian-style house
- Newly decorated throughout
- New carpets and lino
- Large living room, dining room & conservatory
- Fitted kitchen with integrated appliances
- Unfurnished
- Located in Bransgore, on the edge of the New Forest
EPC Rating: C
Council Tax Band: D
Viewings highly recommended.
AFFORDABILITY: Prospective tenants must show a combined income of £55,500 and have clear credit.
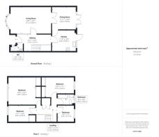
KITCHEN
3.62m ( 11'11'') x 3.05m ( 10'1'')
LOUNGE
3.85m ( 12'8'') x 6.12m ( 20'1'')
DINING
3.28m ( 10'10'') x 3.65m ( 12'0'')
MASTER
3.85m ( 12'8'') x 4.29m ( 14'1'')
BEDROOM 2
2.43m ( 8'0'') x 4.27m ( 14'1'')
BATHROOM
1.66m ( 5'6'') x 2.50m ( 8'3'')
BEDROOM 3
2.50m ( 8'3'') x 3.94m ( 13'0'')
BEDROOM 4
2.17m ( 7'2'') x 2.51m ( 8'3'')
Brochures
Property Brochure- COUNCIL TAXA payment made to your local authority in order to pay for local services like schools, libraries, and refuse collection. The amount you pay depends on the value of the property.Read more about council Tax in our glossary page.
- Band: D
- PARKINGDetails of how and where vehicles can be parked, and any associated costs.Read more about parking in our glossary page.
- No disabled parking,Not allocated,No permit
- GARDENA property has access to an outdoor space, which could be private or shared.
- Private garden
- ACCESSIBILITYHow a property has been adapted to meet the needs of vulnerable or disabled individuals.Read more about accessibility in our glossary page.
- Ask agent
Benson Close, Bransgore, Christchurch
Add an important place to see how long it'd take to get there from our property listings.
__mins driving to your place
Notes
Staying secure when looking for property
Ensure you're up to date with our latest advice on how to avoid fraud or scams when looking for property online.
Visit our security centre to find out moreDisclaimer - Property reference 8225. The information displayed about this property comprises a property advertisement. Rightmove.co.uk makes no warranty as to the accuracy or completeness of the advertisement or any linked or associated information, and Rightmove has no control over the content. This property advertisement does not constitute property particulars. The information is provided and maintained by Slades Estate Agents, Southbourne. Please contact the selling agent or developer directly to obtain any information which may be available under the terms of The Energy Performance of Buildings (Certificates and Inspections) (England and Wales) Regulations 2007 or the Home Report if in relation to a residential property in Scotland.
*This is the average speed from the provider with the fastest broadband package available at this postcode. The average speed displayed is based on the download speeds of at least 50% of customers at peak time (8pm to 10pm). Fibre/cable services at the postcode are subject to availability and may differ between properties within a postcode. Speeds can be affected by a range of technical and environmental factors. The speed at the property may be lower than that listed above. You can check the estimated speed and confirm availability to a property prior to purchasing on the broadband provider's website. Providers may increase charges. The information is provided and maintained by Decision Technologies Limited. **This is indicative only and based on a 2-person household with multiple devices and simultaneous usage. Broadband performance is affected by multiple factors including number of occupants and devices, simultaneous usage, router range etc. For more information speak to your broadband provider.
Map data ©OpenStreetMap contributors.





