Steyning Avenue, Peacehaven, East Sussex, BN10
- PROPERTY TYPE
Land
- SIZE
14,854 sq ft
1,380 sq m
Key features
- Land
- Peacehaven, East Sussex Location
- 1,382 m² GIA ( 874 m² residential NSA + 200 m² community)
- Mid-high specification coastal development
- Prime position near the Peacehaven seafront with open views
- Expected GDV: £5.5 million
- Local Council Authority - Lewes District Council
- Planning Permission Reference LW/25/0224
- For Sale By Modern Method of Auction
- Please contact Branch for Further Details
Description
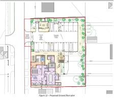
A rarely available building plot in the coastal town of Peacehaven, East Sussex with planning permission to demolish the current site and complete a substantial re development to build 14 new residential apartments and 2 community spaces. The break down of this comprises; 7 one bedroom apartments, 6 two bedroom apartments and 1 three bedroom apartment.
The site is well placed with its proximity to the A259. The local bus stop is a 2-minute walk away and provides a regular connection through Peacehaven and on to Brighton, Newhaven, Seaford and Eastbourne.
The nearest train station is in Newhaven and is a approximately a 16-minute bus journey away or a 15-minute cycle ride, with onward links by train to Lewes, Brighton, Eastbourne and London.
There is a Sainsbury's Local within a short walk of the site as well as a Co-op Food convenience store, numerous food outlets, local shops, a pharmacy and takeaways.
The nearest dentist is immediately adjacent to the site to the South.
There is an infant school and several lower and upper schools within approximately 20 minutes'
walk of the site. Public transport links are also available.
As well as the good level of service within walking distance and the onward public transport links, the
site is well located with the A259 connecting into Brighton and via the A26 onto the A27 with good
wider road links.
1,382 m² GIA ( 874 m² residential NSA + 200 m² community)
Mid-high specification coastal development
Prime position near the Peacehaven seafront with open views
Development Potential
Expected GDV: £5.5 million
Local Council Authority - Lewes District Council
Planning Permission Reference LW/25/0224
This land is for sale by the Modern Method of Auction, meaning the buyer and seller are to Complete within 56 days (the "Reservation Period"). Interested parties personal data will be shared with the Auctioneer (iamsold).
If considering buying with a mortgage, inspect and consider the land carefully with your lender before bidding.
A Buyer Information Pack is provided. The winning bidder will pay £349.00 including VAT for this pack which you must view before bidding.
The buyer signs a Reservation Agreement and makes payment of a non-refundable Reservation Fee of 4.5% of the purchase price including VAT, subject to a minimum of £6,600.00 including VAT. This is paid to reserve the property to the buyer during the Reservation Period and is paid in addition to the purchase price. This is considered within calculations for Stamp Duty Land Tax.
Services may be recommended by the Agent or Auctioneer in which they will receive payment from the service provider if the service is taken. Any payment that will be received by the Agent or Auctioneer will be confirmed to you in writing before services are taken. Services are optional.
IMPORTANT NOTE TO POTENTIAL PURCHASERS & TENANTS:
We endeavour to make our particulars accurate and reliable, however, they do not constitute or form part of an offer or any contract and none is to be relied upon as statements of representation or fact. The services, systems and appliances listed in this specification have not been tested by us and no guarantee as to their operating ability or efficiency is given. All photographs and measurements have been taken as a guide only and are not precise. Floor plans where included are not to scale and accuracy is not guaranteed. If you require clarification or further information on any points, please contact us, especially if you are traveling some distance to view. POTENTIAL PURCHASERS: Fixtures and fittings other than those mentioned are to be agreed with the seller. POTENTIAL TENANTS: All properties are available for a minimum length of time, with the exception of short term accommodation. Please contact the branch for details. A security deposit of at least one month’s rent is required. Rent is to be paid one month in advance. It is the tenant’s responsibility to insure any personal possessions. Payment of all utilities including water rates or metered supply and Council Tax is the responsibility of the tenant in most cases.
QBG260021/2
Brochures
Web DetailsSteyning Avenue, Peacehaven, East Sussex, BN10
NEAREST STATIONS
Distances are straight line measurements from the centre of the postcode- Newhaven Harbour Station2.3 miles
- Newhaven Town Station2.3 miles
- Newhaven Marine Station2.4 miles
Notes
Disclaimer - Property reference QBG260021. The information displayed about this property comprises a property advertisement. Rightmove.co.uk makes no warranty as to the accuracy or completeness of the advertisement or any linked or associated information, and Rightmove has no control over the content. This property advertisement does not constitute property particulars. The information is provided and maintained by Your Move, Brighton. Please contact the selling agent or developer directly to obtain any information which may be available under the terms of The Energy Performance of Buildings (Certificates and Inspections) (England and Wales) Regulations 2007 or the Home Report if in relation to a residential property in Scotland.
Auction Fees: The purchase of this property may include associated fees not listed here, as it is to be sold via auction. To find out more about the fees associated with this property please call Your Move, Brighton on 01273 109723.
*Guide Price: An indication of a seller's minimum expectation at auction and given as a Guide Price or a range of Guide Prices. This is not necessarily the figure a property will sell for and is subject to change prior to the auction.
Reserve Price: Each auction property will be subject to a Reserve Price below which the property cannot be sold at auction. Normally the Reserve Price will be set within the range of Guide Prices or no more than 10% above a single Guide Price.
Map data ©OpenStreetMap contributors.





