
3 bedroom semi-detached house for sale
Fircroft Road, Ipswich, Suffolk

- PROPERTY TYPE
Semi-Detached
- BEDROOMS
3
- BATHROOMS
1
- SIZE
Ask agent
- TENUREDescribes how you own a property. There are different types of tenure - freehold, leasehold, and commonhold.Read more about tenure in our glossary page.
Freehold
Key features
- SEMI-DETACHED FAMILY HOME
- 3 DOUBLE BEDROOMS
- 2 RECEPTION ROOMS
- KITCHEN
- CONSERVATORY
- FIRST FLOOR BATHROOM
- GAS CENTRAL HEATING
- DOUBLE GLAZED EXCEPT WHERE STATED
- WALKING DISTANCE TO SCHOOLS & BUS SERVICE
- SOME UPDATING REQUIRED
Description
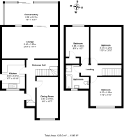
ENTRANCE HALL UPVC door into entrance, cloak cupboard, radiator, laminate flooring, rear hallway leading to stairs to first floor, doors to lounge, dining and kitchen.
LOUNGE/DINING 21' x 11' 11" (6.4m x 3.63m) Carpeted flooring, feature fireplace with coal effect gas fire, radiator, single glazed window to rear looking into conservatory and double glazed patio doors into conservatory.
CONSERVATORY 19' 11" x 8' 1" (6.07m x 2.46m) Laminate flooring, double glazed door to rear garden.
KITCHEN 10' 10" x 8' 7" (3.3m x 2.62m) Matching wall & base units with roll edge work tops, inset sink & drainer hot & cold mixer tap, plumbing for washing machine, space for fridge freezer, electric hob and oven, vinyl floor covering, double glazed window to front aspect, double glazed door to side aspect.
DINING ROOM 15' 6" x 7' 11" (4.72m x 2.41m) Carpeted flooring, radiator, double glazed window to front aspect, 2 door storage cupboard.
STAIRS Rear hallway with glazed window to lounge/dining, carpeted stairs and landing, loft hatch, doors to bedrooms and bathroom.
BEDROOM 1 13' 10" x 11' 9" (4.22m x 3.58m) Exposed floor boards, double glazed window to rear aspect, radiator.
BEDROOM 2 11' 9" x 11' (3.58m x 3.35m) Carpeted flooring, double glazed window to front aspect, radiator.
BEDROOM 3 11' 2" x 8' 9" (3.4m x 2.67m) Laminate flooring, double glazed window to rear aspect, radiator.
BATHROOM Comprising low level WC, wash hand basin, bath and shower cubicle, vinyl floor covering, radiator, double glazed window to front aspect.
OUTSIDE Off road parking for 1 car, lawn area, side pedestrian access leading to rear garden which is mainly laid to lawn, flower borders all enclosed by fencing.
COUNCIL Ipswich Borough Council
Council Tax Band (C) £2,096.48
SEVICES We understand all mains services are connected.
NEAREST SCHOOLS Castle Hill infant & junior school, Ormiston Endeavour Academy.
DIGITAL MARKETS, COMPETITION AND CONSUMER ACT 2024 (DMCC)
Your Ipswich Ltd has not tested any electrical items, appliances, plumbing or heating systems and therefore cannot testify that they are operational. These particulars are set out as a general outline only for the guidance of potential purchasers or tenants and do not constitute an offer or contract. Photographs are not necessarily comprehensive or current and all descriptions, dimensions, references to condition necessary permissions for use and occupation and other details are given in good faith and believed to be correct but should not be relied upon as statements of, or representations of, fact. Intending purchasers or tenants must satisfy themselves by inspection or otherwise as to the correctness of each of them. We have taken steps to comply with the Digital Markets, Competition and Consumer Act 2024 (DMCC), which require both the seller and their agent to disclose anything, within their knowledge, that would affect the buying decision of the average consumer. If there are any aspects of this property that you wish to clarify before arranging an appointment to view or considering an offer to purchase, please contact us and we will make every effort to be of assistance.
Your Ipswich Ltd, as part of their service to both vendor and purchaser, offer assistance to arrange mortgage and insurance policies, legal services, energy performance certificates, and the valuation and sale of any property relating to any purchaser connected to this transaction. Your Ipswich Ltd confirms they will not prefer one purchaser above another solely because he/she has agreed to accept the offer of any other service from Your Ipswich Ltd. Referral commission (where received) is in the range of £60 to £200.
AGENT´S STAMP DUTY NOTE
Please be advised that as of the 1st of April 2025, the government is changing the stamp duty and land tax structure on all residential purchases, which may affect the cost of stamp duty and land tax for your property purchase.
As of the 1st of April 2025, stamp duty and land tax will become due on all residential purchases of £125,000 or more. First time buyers will be required to pay stamp duty and land tax on all purchases of £300,000 or more.
If you are purchasing a second home, you will also be required to pay an additional 5% stamp duty and land tax.
BROADBAND & MOBILE PHONE COVERAGE
Broadband- To check the broadband coverage available in the area go to
Mobile Phone- To check mobile phone coverage in the area go to
Brochures
IPSWICH & SUF...- COUNCIL TAXA payment made to your local authority in order to pay for local services like schools, libraries, and refuse collection. The amount you pay depends on the value of the property.Read more about council Tax in our glossary page.
- Band: C
- PARKINGDetails of how and where vehicles can be parked, and any associated costs.Read more about parking in our glossary page.
- Off street
- GARDENA property has access to an outdoor space, which could be private or shared.
- Yes
- ACCESSIBILITYHow a property has been adapted to meet the needs of vulnerable or disabled individuals.Read more about accessibility in our glossary page.
- Ask agent
Fircroft Road, Ipswich, Suffolk
Add an important place to see how long it'd take to get there from our property listings.
__mins driving to your place
Get an instant, personalised result:
- Show sellers you’re serious
- Secure viewings faster with agents
- No impact on your credit score
Your mortgage
Notes
Staying secure when looking for property
Ensure you're up to date with our latest advice on how to avoid fraud or scams when looking for property online.
Visit our security centre to find out moreDisclaimer - Property reference 100138005273. The information displayed about this property comprises a property advertisement. Rightmove.co.uk makes no warranty as to the accuracy or completeness of the advertisement or any linked or associated information, and Rightmove has no control over the content. This property advertisement does not constitute property particulars. The information is provided and maintained by Your Ipswich, Ipswich. Please contact the selling agent or developer directly to obtain any information which may be available under the terms of The Energy Performance of Buildings (Certificates and Inspections) (England and Wales) Regulations 2007 or the Home Report if in relation to a residential property in Scotland.
*This is the average speed from the provider with the fastest broadband package available at this postcode. The average speed displayed is based on the download speeds of at least 50% of customers at peak time (8pm to 10pm). Fibre/cable services at the postcode are subject to availability and may differ between properties within a postcode. Speeds can be affected by a range of technical and environmental factors. The speed at the property may be lower than that listed above. You can check the estimated speed and confirm availability to a property prior to purchasing on the broadband provider's website. Providers may increase charges. The information is provided and maintained by Decision Technologies Limited. **This is indicative only and based on a 2-person household with multiple devices and simultaneous usage. Broadband performance is affected by multiple factors including number of occupants and devices, simultaneous usage, router range etc. For more information speak to your broadband provider.
Map data ©OpenStreetMap contributors.






