
5 bedroom semi-detached house for sale
Send Lodge, Send Road, Send, Woking, GU23

- PROPERTY TYPE
Semi-Detached
- BEDROOMS
5
- BATHROOMS
2
- SIZE
2,703 sq ft
251 sq m
- TENUREDescribes how you own a property. There are different types of tenure - freehold, leasehold, and commonhold.Read more about tenure in our glossary page.
Freehold
Key features
- 19th Century character home
- Living room with open fireplace
- Triple aspect family room with wood burning stove
- Five bedrooms and two bathrooms
- Mature garden and Summer House with electric/power
- Garage and parking
- EPC Rating = D
Description
Description
Built in 1810, 2 Send Lodge is a semi detached five bedroom family home with mature garden, located in the popular village of Send. The property is well presented and has an abundance of character.
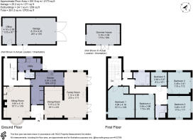
At the front of the house is the sitting room. It has a lovely bay window and feature open fireplace, with built in storage and shelving either side. Also at the front of the house is the dining room with character wooden ceiling beams, and a triple aspect family room which spans the depth of the house, with wood burning stove and double doors to the garden. The kitchen is L shaped, with one wall open to the dining room, which is split by a granite breakfast bar. It is well appointed with integrated appliances, including a wine fridge, granite worksurfaces and tiled floor. A guest cloakroom and a useful utility room, which includes a sink, fitted cupboards and stable door to outside, completes the downstairs accommodation.
Upstairs, provides the principal bedroom with fitted wardrobe. There are four further bedrooms, a bathroom and a shower room.
Outside, the mature garden is approximately 97 ft and is laid to lawn with a patio. The garden is bordered with mature shrubs and trees which provide screening. There is also a summer house with electric/power and further patio with seating area.
The entrance is shared access, which leads to the properties' front driveway area that provides parking for up to 8 cars and access to the garage which was a former Coach House for the property, which has a self contained office at the rear with power and internet service and views to the garden. The property backs on to private woodland and the River Wey navigation.
Location
The property sits in the Cartbridge area of Send and is one of a number of the original properties in the village that sits on what was the old “Cartbridge” over the River Wey Navigation. Approximately 0.03 miles to the River Wey and surrounding countryside, it is a perfect location to get out and explore the rural local area. Located between the towns of Woking and Guildford with easy access.
The village of Send offers a selection of local shops and amenities, primarily located along the A247 Send Road, including a pub, Post Office and the Village's Medical Centre nearby.
The village of Ripley is approximately 2.8 miles away and has further amenities, including a selection of cafés, shops, pubs and restaurants.
Local attractions include the world-renowned gardens at RHS Wisley and Polesden Lacey.
Woking (fast train approximately 24 minutes, 6-8 per hour) and West Byfleet and Clandon train stations provide regular services into London Waterloo.The A3 at Potter Lane and the M25 Junction 10 are approximately 2.0 miles and 7.5 miles away respectively, and provide access to London, Guildford and the motorway network, useful for connections to both Heathrow and Gatwick airports.
There is a wide choice of schools in the area including Hoebridge, Cranmore, Ripley Court, Guildford High School,Tormead and The Royal Grammar School.
Square Footage: 2,703 sq ft
Brochures
Web Details- COUNCIL TAXA payment made to your local authority in order to pay for local services like schools, libraries, and refuse collection. The amount you pay depends on the value of the property.Read more about council Tax in our glossary page.
- Band: G
- PARKINGDetails of how and where vehicles can be parked, and any associated costs.Read more about parking in our glossary page.
- Yes
- GARDENA property has access to an outdoor space, which could be private or shared.
- Yes
- ACCESSIBILITYHow a property has been adapted to meet the needs of vulnerable or disabled individuals.Read more about accessibility in our glossary page.
- Ask agent
Send Lodge, Send Road, Send, Woking, GU23
Add an important place to see how long it'd take to get there from our property listings.
__mins driving to your place
Get an instant, personalised result:
- Show sellers you’re serious
- Secure viewings faster with agents
- No impact on your credit score
Your mortgage
Notes
Staying secure when looking for property
Ensure you're up to date with our latest advice on how to avoid fraud or scams when looking for property online.
Visit our security centre to find out moreDisclaimer - Property reference CLI228899. The information displayed about this property comprises a property advertisement. Rightmove.co.uk makes no warranty as to the accuracy or completeness of the advertisement or any linked or associated information, and Rightmove has no control over the content. This property advertisement does not constitute property particulars. The information is provided and maintained by Savills, Cobham. Please contact the selling agent or developer directly to obtain any information which may be available under the terms of The Energy Performance of Buildings (Certificates and Inspections) (England and Wales) Regulations 2007 or the Home Report if in relation to a residential property in Scotland.
*This is the average speed from the provider with the fastest broadband package available at this postcode. The average speed displayed is based on the download speeds of at least 50% of customers at peak time (8pm to 10pm). Fibre/cable services at the postcode are subject to availability and may differ between properties within a postcode. Speeds can be affected by a range of technical and environmental factors. The speed at the property may be lower than that listed above. You can check the estimated speed and confirm availability to a property prior to purchasing on the broadband provider's website. Providers may increase charges. The information is provided and maintained by Decision Technologies Limited. **This is indicative only and based on a 2-person household with multiple devices and simultaneous usage. Broadband performance is affected by multiple factors including number of occupants and devices, simultaneous usage, router range etc. For more information speak to your broadband provider.
Map data ©OpenStreetMap contributors.





