4 bedroom detached house for sale
Rodborough Hill, Stroud

- PROPERTY TYPE
Detached
- BEDROOMS
4
- BATHROOMS
2
- SIZE
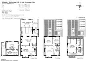
2,702 sq ft
251 sq m
- TENUREDescribes how you own a property. There are different types of tenure - freehold, leasehold, and commonhold.Read more about tenure in our glossary page.
Freehold
Key features
- Detached Victorian home
- Large Rear Extension
- Detached Home Office/Studio
- Close to Amenities
- Traditional and Contemporary Spaces
- Fabulous Master Suite
- Off Street Parking for several Vehicles
- Lovely Bay Windows
- Far reaching Views
- Access to both Primary and Secondary Schools
Description
Description - Willesden offers the best of both worlds with its period character seamlessly blended with a stylish contemporary extension creating light filled family spaces.
A welcoming entrance hall with parquet flooring sets the tone leading to the main reception rooms. To the front is an elegant sitting room with bay window and fireplace, while a second, dual-length reception room offers a more relaxed space with wood-burning stove and study/play area open to the sociable kitchen.
The kitchen/dining room is the true heart of the home, featuring an Everhot oven, a statement central island with breakfast bar, and wrap around windows with sliding doors opening onto the rear garden — ideal for everyday living and entertaining. A utility room and cloakroom complete the ground floor.
The first floor offers three well-appointed bedrooms and a family bathroom, while the top floor is dedicated to an impressive principal suite with dressing room, en-suite shower room and far-reaching countryside views.
The delightful, family-friendly gardens to the rear of the house are arranged over two equally spacious upper and lower levels, bordered by a variety of fruit trees. These versatile outdoor spaces are ideal for entertaining or for those wishing to create a kitchen garden alongside the existing greenhouse.
A detached studio, currently divided into three separate areas, features beautiful glass doors that allow natural light to flood in, offering endless possibilities for home working, creative pursuits, or recreation.
A true rarity for the area, the property also benefits from off-street parking for several vehicles.
Brochures
Rodborough Hill, Stroud- COUNCIL TAXA payment made to your local authority in order to pay for local services like schools, libraries, and refuse collection. The amount you pay depends on the value of the property.Read more about council Tax in our glossary page.
- Band: E
- PARKINGDetails of how and where vehicles can be parked, and any associated costs.Read more about parking in our glossary page.
- Driveway
- GARDENA property has access to an outdoor space, which could be private or shared.
- Yes
- ACCESSIBILITYHow a property has been adapted to meet the needs of vulnerable or disabled individuals.Read more about accessibility in our glossary page.
- Ask agent
Rodborough Hill, Stroud
Add an important place to see how long it'd take to get there from our property listings.
__mins driving to your place
Get an instant, personalised result:
- Show sellers you’re serious
- Secure viewings faster with agents
- No impact on your credit score
Your mortgage
Notes
Staying secure when looking for property
Ensure you're up to date with our latest advice on how to avoid fraud or scams when looking for property online.
Visit our security centre to find out moreDisclaimer - Property reference 34442817. The information displayed about this property comprises a property advertisement. Rightmove.co.uk makes no warranty as to the accuracy or completeness of the advertisement or any linked or associated information, and Rightmove has no control over the content. This property advertisement does not constitute property particulars. The information is provided and maintained by Murrays Estate Agents, Stroud. Please contact the selling agent or developer directly to obtain any information which may be available under the terms of The Energy Performance of Buildings (Certificates and Inspections) (England and Wales) Regulations 2007 or the Home Report if in relation to a residential property in Scotland.
*This is the average speed from the provider with the fastest broadband package available at this postcode. The average speed displayed is based on the download speeds of at least 50% of customers at peak time (8pm to 10pm). Fibre/cable services at the postcode are subject to availability and may differ between properties within a postcode. Speeds can be affected by a range of technical and environmental factors. The speed at the property may be lower than that listed above. You can check the estimated speed and confirm availability to a property prior to purchasing on the broadband provider's website. Providers may increase charges. The information is provided and maintained by Decision Technologies Limited. **This is indicative only and based on a 2-person household with multiple devices and simultaneous usage. Broadband performance is affected by multiple factors including number of occupants and devices, simultaneous usage, router range etc. For more information speak to your broadband provider.
Map data ©OpenStreetMap contributors.




