4 bedroom duplex for sale
2/2 22 Westminster Terrace, Finnieston, G3 7RU

- PROPERTY TYPE
Duplex
- BEDROOMS
4
- BATHROOMS
2
- SIZE
2,422 sq ft
225 sq m
- TENUREDescribes how you own a property. There are different types of tenure - freehold, leasehold, and commonhold.Read more about tenure in our glossary page.
Freehold
Description
Set within a mid-19th-century blonde sandstone terrace dating from circa 1854, this substantial upper duplex occupies the second and top floors of the building and offers generous, flexible living.
The communal close has been recently decorated, enhancing the presentation of the building, and the property has been well maintained and retains a range of original features including original floorboards, sash windows, ornate cornice work, decorative mouldings, architraves and traditional fireplace surrounds, all contributing to the character and scale of the accommodation.
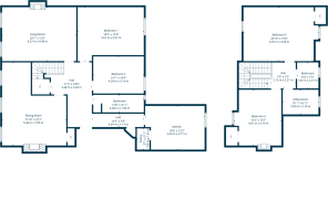
The sense of scale is immediately apparent on entering the impressive reception hallway, with its generous proportions and tall ceilings, which provides access to the lower level principal accommodation, and benefits from built-in storage. The lower level hosts a spacious front-facing lounge with high ceilings, stunning open outlooks, and a log-burning stove, creating a refined yet comfortable principal living space. The dining room is also positioned to the front of the property and enjoys the same exceptional open views, with an arched opening leading through to a separate sitting area, offering excellent flexibility for both family living and entertaining. The kitchen is found to the rear of the building, accompanied by ample storage, workspace, integrated appliances, breakfasting bar and is further complemented by a separate walk-in pantry. Two well-proportioned double bedrooms and a striking family bathroom are also located on this level.
An original balustrade leads to the upper level, which comprises two further double bedrooms, both with built-in storage, a second bathroom and a utility room, providing additional practicality.
Further benefits include gas central heating, extensive storage throughout and off-road residents' parking to the rear.
The property is well placed for local amenities and transport links, offering an excellent opportunity to acquire a substantial period home of character and scale, in an extremely central position.
EER Band: D
Local Area
Today Finnieston has been promoted and built up as a modern residential and leisure area, mirroring Shoreditch in London. To this end many new bars and restaurants have been established, including The Ox & Finch, The Gannet, Six by Nico, The Kelvingrove Café, The Crabshakk and The Finnieston. Finnieston Street is a major junction on the Clydeside Expressway, and on 18th September 2006, was augmented with the addition of the Clyde Arc (known locally as “The Squinty Bridge”) over the River Clyde.
Finnieston is also home to the SEC and the world-renowned OVO Hydro, where many events and concerts are held.
Public transport is available by bus and rail and there are excellent road links to Glasgow City Centre, via the Clydeside Expressway, the Clyde Tunnel and motorways.
Brochures
Web Details- COUNCIL TAXA payment made to your local authority in order to pay for local services like schools, libraries, and refuse collection. The amount you pay depends on the value of the property.Read more about council Tax in our glossary page.
- Band: F
- PARKINGDetails of how and where vehicles can be parked, and any associated costs.Read more about parking in our glossary page.
- Off street
- GARDENA property has access to an outdoor space, which could be private or shared.
- Ask agent
- ACCESSIBILITYHow a property has been adapted to meet the needs of vulnerable or disabled individuals.Read more about accessibility in our glossary page.
- Ask agent
Energy performance certificate - ask agent
2/2 22 Westminster Terrace, Finnieston, G3 7RU
Add an important place to see how long it'd take to get there from our property listings.
__mins driving to your place
Get an instant, personalised result:
- Show sellers you’re serious
- Secure viewings faster with agents
- No impact on your credit score
Your mortgage
Notes
Staying secure when looking for property
Ensure you're up to date with our latest advice on how to avoid fraud or scams when looking for property online.
Visit our security centre to find out moreDisclaimer - Property reference WE5503. The information displayed about this property comprises a property advertisement. Rightmove.co.uk makes no warranty as to the accuracy or completeness of the advertisement or any linked or associated information, and Rightmove has no control over the content. This property advertisement does not constitute property particulars. The information is provided and maintained by Corum, West End. Please contact the selling agent or developer directly to obtain any information which may be available under the terms of The Energy Performance of Buildings (Certificates and Inspections) (England and Wales) Regulations 2007 or the Home Report if in relation to a residential property in Scotland.
*This is the average speed from the provider with the fastest broadband package available at this postcode. The average speed displayed is based on the download speeds of at least 50% of customers at peak time (8pm to 10pm). Fibre/cable services at the postcode are subject to availability and may differ between properties within a postcode. Speeds can be affected by a range of technical and environmental factors. The speed at the property may be lower than that listed above. You can check the estimated speed and confirm availability to a property prior to purchasing on the broadband provider's website. Providers may increase charges. The information is provided and maintained by Decision Technologies Limited. **This is indicative only and based on a 2-person household with multiple devices and simultaneous usage. Broadband performance is affected by multiple factors including number of occupants and devices, simultaneous usage, router range etc. For more information speak to your broadband provider.
Map data ©OpenStreetMap contributors.







