
4 bedroom semi-detached house for sale
Gordon Road, Edinburgh

- PROPERTY TYPE
Semi-Detached
- BEDROOMS
4
- BATHROOMS
1
- SIZE
2,282 sq ft
212 sq m
- TENUREDescribes how you own a property. There are different types of tenure - freehold, leasehold, and commonhold.Read more about tenure in our glossary page.
Freehold
Description
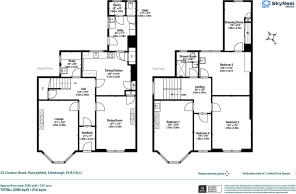
Extending to approximately 2,282 sq ft, the property already offers generous accommodation over two levels, with the scale and proportions that make traditional houses on this street so desirable. The ground floor comprises a welcoming entrance vestibule and broad central hallway, an impressive bay-windowed lounge, a separate dining room, study, and a large dining kitchen to the rear, complemented by a utility room, pantry and WC. This layout provides an excellent footprint for modern family living and offers clear potential to open up and enhance the rear of the house to create a superb kitchen, dining and family hub overlooking the garden.
Upstairs, the first-floor hosts four well-proportioned bedrooms, including a particularly spacious principal bedroom with adjoining dressing room, together with a shower room and additional accommodation off the landing. The ceiling heights and room sizes throughout underline the sense of space and flexibility the house provides, and the existing layout offers strong foundations for reimagining the upper level to suit modern family requirements.
While the property now requires upgrading and modernisation, this is where its true appeal lies. The house offers outstanding development potential, subject to the necessary consents, with obvious scope to extend further into the rear garden to create a larger open-plan living environment, as well as the opportunity to develop the attic level to form additional bedrooms, a home office or even a principal suite. With its sizeable footprint, traditional structure and generous plot, this is a home that can be significantly enhanced to create a long-term family house of real quality and value in a blue-chip location.
Gordon Road is a highly regarded Corstorphine address, known for its handsome period homes, excellent local amenities, and convenient access to the city centre, transport links and well-regarded schooling.
Accommodation comprises:
Ground floor
Entrance Vestibule, Hall, Lounge, Dining Room, Large Understairs Cupboard, Study, Kitchen, Utility, Pantry, WC
First Floor
Landing, Principal Bedroom, Dressing Room, Second Double Bedroom, Third Double Bedroom, Fourth Single Bedroom, Family Shower Room.
Outside Space
The property benefits from gated off-street parking, garage, substantial South West facing garden, and unrestricted on-street parking.
Location:
Corstorphine is a highly desirable and well-established residential district to the west of Edinburgh’s city centre, popular with families and professionals alike for its excellent amenities, green space and superb connectivity.
The area offers a wide range of everyday shopping facilities along St John’s Road, including supermarkets, independent retailers, cafés and restaurants, while The Gyle Shopping Centre and Hermiston Gait retail park are both a short drive away, providing extensive high-street and larger retail options. Leisure opportunities are plentiful, with Corstorphine Hill Nature Reserve, local parks and golf courses nearby, as well as David Lloyd Leisure and a number of sports clubs.
Schooling in the area is well regarded at both primary and secondary level, and the location is particularly convenient for access to a number of Edinburgh’s private schools. The area is also ideally placed for those working at Edinburgh Park, the Gyle business district, or the Royal Infirmary via the city bypass.
Corstorphine benefits from excellent public transport links, with frequent bus services providing quick access to the city centre and surrounding areas. The tram line, offering direct links to Edinburgh Airport and the city centre, is also easily accessible. For commuters, the City Bypass, M8, M9 and Forth Road Bridge routes are all within easy reach, making this a practical base for travel both in and out of the capital.
Combining suburban space with city convenience, Corstorphine remains one of Edinburgh’s most consistently sought-after residential locations.
EPC: D
Council Tax Band: G
Tenure: Freehold.
Viewing by appointment via Rettie & Co.
EPC Rating: D
Council Tax Band: G
- COUNCIL TAXA payment made to your local authority in order to pay for local services like schools, libraries, and refuse collection. The amount you pay depends on the value of the property.Read more about council Tax in our glossary page.
- Band: G
- PARKINGDetails of how and where vehicles can be parked, and any associated costs.Read more about parking in our glossary page.
- Yes
- GARDENA property has access to an outdoor space, which could be private or shared.
- Yes
- ACCESSIBILITYHow a property has been adapted to meet the needs of vulnerable or disabled individuals.Read more about accessibility in our glossary page.
- Ask agent
Gordon Road, Edinburgh
Add an important place to see how long it'd take to get there from our property listings.
__mins driving to your place
Get an instant, personalised result:
- Show sellers you’re serious
- Secure viewings faster with agents
- No impact on your credit score
Your mortgage
Notes
Staying secure when looking for property
Ensure you're up to date with our latest advice on how to avoid fraud or scams when looking for property online.
Visit our security centre to find out moreDisclaimer - Property reference PER251127. The information displayed about this property comprises a property advertisement. Rightmove.co.uk makes no warranty as to the accuracy or completeness of the advertisement or any linked or associated information, and Rightmove has no control over the content. This property advertisement does not constitute property particulars. The information is provided and maintained by Rettie, Edinburgh. Please contact the selling agent or developer directly to obtain any information which may be available under the terms of The Energy Performance of Buildings (Certificates and Inspections) (England and Wales) Regulations 2007 or the Home Report if in relation to a residential property in Scotland.
*This is the average speed from the provider with the fastest broadband package available at this postcode. The average speed displayed is based on the download speeds of at least 50% of customers at peak time (8pm to 10pm). Fibre/cable services at the postcode are subject to availability and may differ between properties within a postcode. Speeds can be affected by a range of technical and environmental factors. The speed at the property may be lower than that listed above. You can check the estimated speed and confirm availability to a property prior to purchasing on the broadband provider's website. Providers may increase charges. The information is provided and maintained by Decision Technologies Limited. **This is indicative only and based on a 2-person household with multiple devices and simultaneous usage. Broadband performance is affected by multiple factors including number of occupants and devices, simultaneous usage, router range etc. For more information speak to your broadband provider.
Map data ©OpenStreetMap contributors.








