3 bedroom terraced house for rent
Station Street, Loughborough, LE11

Letting details
- Let available date:
- 09/02/2026
- Deposit:
- £1,090A deposit provides security for a landlord against damage, or unpaid rent by a tenant.Read more about deposit in our glossary page.
- Min. Tenancy:
- Ask agent How long the landlord offers to let the property for.Read more about tenancy length in our glossary page.
- Let type:
- Long term
- Furnish type:
- Furnished
- Council Tax:
- Ask agent
- PROPERTY TYPE
Terraced
- BEDROOMS
3
- BATHROOMS
2
- SIZE
Ask agent
Key features
- Loughborough
- Three Bedrooms
- Close to Town Centre
Description
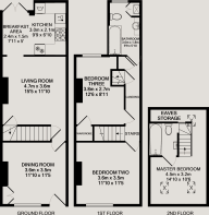
Dining Room 3.6m (11'10) x 3.5m (11'6)
A bright and spacious lounge, situated upon entrance of the property.
Living Room 4.7m (15'5) x 3.6m (11'10)
A bright and spacious dining room, with modern decoration, log burner and door with access to the stairs.
Kitchen 3m (9'10) x 2.1m (6'11)
A modern kitchen featuring an integrated oven, gas hob, and extractor hood, along with a dishwasher, fridge/freezer, and washing machine with French doors leading to the garden.
Bedroom Two 3.6m (11'10) x 3.5m (11'6)
A spacious first floor double bedroom with an outlook to the front of the property.
Bedroom Three 3.8m (12'6) x 2.7m (8'10)
A double bedroom located on the first floor overlooking the rear of the property.
Bathroom 3m (9'10) x 1.8m (5'11)
A smart three-piece family bathroom complete with shower over the bath.
Master Bedroom 4.5m (14'9) x 3.2m (10'6)
Located on the second floor, a double room with a three piece ensuite.
Ensuite 1.6m (5'3) x 1.4m (4'7)
A modern three piece ensuite.
Garden
A sizeable low maintenance garden with patio area.
Parking
Parking Permit.
Heating
Gas fired central heating.
Glazing
Modern, good quality, uPVC double glazing.
Brochures
1456.pdf- COUNCIL TAXA payment made to your local authority in order to pay for local services like schools, libraries, and refuse collection. The amount you pay depends on the value of the property.Read more about council Tax in our glossary page.
- Band: A
- PARKINGDetails of how and where vehicles can be parked, and any associated costs.Read more about parking in our glossary page.
- Yes
- GARDENA property has access to an outdoor space, which could be private or shared.
- Yes
- ACCESSIBILITYHow a property has been adapted to meet the needs of vulnerable or disabled individuals.Read more about accessibility in our glossary page.
- Ask agent
Station Street, Loughborough, LE11
Add an important place to see how long it'd take to get there from our property listings.
__mins driving to your place
Notes
Staying secure when looking for property
Ensure you're up to date with our latest advice on how to avoid fraud or scams when looking for property online.
Visit our security centre to find out moreDisclaimer - Property reference 1456. The information displayed about this property comprises a property advertisement. Rightmove.co.uk makes no warranty as to the accuracy or completeness of the advertisement or any linked or associated information, and Rightmove has no control over the content. This property advertisement does not constitute property particulars. The information is provided and maintained by Huntleys, Loughborough. Please contact the selling agent or developer directly to obtain any information which may be available under the terms of The Energy Performance of Buildings (Certificates and Inspections) (England and Wales) Regulations 2007 or the Home Report if in relation to a residential property in Scotland.
*This is the average speed from the provider with the fastest broadband package available at this postcode. The average speed displayed is based on the download speeds of at least 50% of customers at peak time (8pm to 10pm). Fibre/cable services at the postcode are subject to availability and may differ between properties within a postcode. Speeds can be affected by a range of technical and environmental factors. The speed at the property may be lower than that listed above. You can check the estimated speed and confirm availability to a property prior to purchasing on the broadband provider's website. Providers may increase charges. The information is provided and maintained by Decision Technologies Limited. **This is indicative only and based on a 2-person household with multiple devices and simultaneous usage. Broadband performance is affected by multiple factors including number of occupants and devices, simultaneous usage, router range etc. For more information speak to your broadband provider.
Map data ©OpenStreetMap contributors.




