269 Lord Street, Southport, Southport, Merseyside, PR8
- SIZE
Ask agent
- SECTOR
Residential development for sale
Key features
- Landmark Grade II Listed building in a highly prominent position on Southport's iconic Lord Street
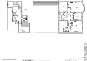
- Full Planning Permission and Listed Building Consent granted for residential conversion of upper floors
- Approved scheme for 9 self-contained apartments (1 & 2 bedroom mix)
- Substantial ground floor commercial accommodation retained (Class E compatible)
- Residential-led mixed-use development with separate and secure access
- Secure rear car parking providing one space per apartment
- Rare opportunity for developers or owner-occupiers seeking a prime town centre asset with planning certainty
Description
Planning Permission and Listed Building Consent have been granted by Sefton Metropolitan Borough Council for the conversion of the first, second and third floors into residential use, while retaining a large and flexible ground floor commercial unit.
The approved scheme has been carefully designed to respect the historic and architectural significance of the building. External alterations are minimal, with the emphasis placed on the sensitive reuse of the upper floors, retention of key architectural features and a clear functional separation between commercial and residential elements.
This opportunity will appeal to:
Residential developers seeking a consented town centre scheme
Mixed-use specialists
Owner-occupiers wishing to trade from the ground floor while developing the upper floors
Brochures
269 Lord Street, Southport, Southport, Merseyside, PR8
NEAREST STATIONS
Distances are straight line measurements from the centre of the postcode- Southport Station0.2 miles
- Birkdale Station1.0 miles
- Meols Cop Station1.3 miles
Notes
Disclaimer - Property reference 2686FH. The information displayed about this property comprises a property advertisement. Rightmove.co.uk makes no warranty as to the accuracy or completeness of the advertisement or any linked or associated information, and Rightmove has no control over the content. This property advertisement does not constitute property particulars. The information is provided and maintained by Fitton Estates, Merseyside/Lancashire. Please contact the selling agent or developer directly to obtain any information which may be available under the terms of The Energy Performance of Buildings (Certificates and Inspections) (England and Wales) Regulations 2007 or the Home Report if in relation to a residential property in Scotland.
Map data ©OpenStreetMap contributors.






