2 bedroom cottage for rent
Eastcourt, Near Malmesbury

Letting details
- Let available date:
- Now
- Deposit:
- £1,615A deposit provides security for a landlord against damage, or unpaid rent by a tenant.Read more about deposit in our glossary page.
- Min. Tenancy:
- Ask agent How long the landlord offers to let the property for.Read more about tenancy length in our glossary page.
- Let type:
- Long term
- Furnish type:
- Furnished
- Council Tax:
- Ask agent
- PROPERTY TYPE
Cottage
- BEDROOMS
2
- BATHROOMS
2
- SIZE
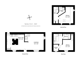
1,252 sq ft
116 sq m
Key features
- Character Cotswold cottage
- Popular country village location
- 2 double bedrooms, 2 bathrooms
- Delightful, cosy living room & dining area
- Fully furnished
- Small garden & off-street parking
- Council Tax Band C (Wiltshire)
- EPC Rating E
- Available from January
Description
The property is available fully furnished on a long-term let from January 2026. Sorry, not suitable for pets.
Description - Converted from a former malt house, the cottage has immense character with exposed beams and the original 'kiln'. The ground floor features a unique and well presented kitchen which includes the original brick kiln and separate dining area, as well as a delightful living room. On the first floor there is a double bedroom with a separate walk-in dressing room, and a bathroom complete with bath. The second floor has another good-size double bedroom and separate bathroom with shower unit. Additional built-in storage is also available. At the front of the cottage there is a small enclosed garden ideal for sitting out, and ample off-street parking for at least two cars.
Situation - Kiln Cottage enjoys a beautiful rural setting down a quiet country lane in the village of Eastcourt. The nearby village of Crudwell (just 1 mile west) has a newly opened farm shop as well as two highly rated dining venues, The Rectory Hotel and The Potting Shed pub. The village of Oaksey (just over 1 mile northeast) also has a well-regarded pub and a popular village shop.
There is an excellent range of shops and amenities available in Malmesbury (6 miles), Tetbury (6 miles) and Cirencester (10 miles) including Waitrose stores in both Malmesbury and Cirencester. There is also an excellent choice of local schools including popular primary schools in the nearby villages of Crudwell, Oaksey and Minety; secondary school options include Ofsted 'Outstanding' rated Malmesbury as well as various private education options.
The area offers good commuter access to regional centres including Swindon, Oxford, Cheltenham, Bath and Bristol. The M4 motorway (Junction 17) is about 10 miles away whilst a mainline rail service to London Paddington runs from Kemble Station (5 miles), scheduled to take about 75 minutes.
Brochures
Eastcourt, Near MalmesburyBrochure- COUNCIL TAXA payment made to your local authority in order to pay for local services like schools, libraries, and refuse collection. The amount you pay depends on the value of the property.Read more about council Tax in our glossary page.
- Band: C
- PARKINGDetails of how and where vehicles can be parked, and any associated costs.Read more about parking in our glossary page.
- Off street
- GARDENA property has access to an outdoor space, which could be private or shared.
- Yes
- ACCESSIBILITYHow a property has been adapted to meet the needs of vulnerable or disabled individuals.Read more about accessibility in our glossary page.
- Ask agent
Eastcourt, Near Malmesbury
Add an important place to see how long it'd take to get there from our property listings.
__mins driving to your place
Notes
Staying secure when looking for property
Ensure you're up to date with our latest advice on how to avoid fraud or scams when looking for property online.
Visit our security centre to find out moreDisclaimer - Property reference 34334677. The information displayed about this property comprises a property advertisement. Rightmove.co.uk makes no warranty as to the accuracy or completeness of the advertisement or any linked or associated information, and Rightmove has no control over the content. This property advertisement does not constitute property particulars. The information is provided and maintained by Victoria Allman Lettings, Cotswolds. Please contact the selling agent or developer directly to obtain any information which may be available under the terms of The Energy Performance of Buildings (Certificates and Inspections) (England and Wales) Regulations 2007 or the Home Report if in relation to a residential property in Scotland.
*This is the average speed from the provider with the fastest broadband package available at this postcode. The average speed displayed is based on the download speeds of at least 50% of customers at peak time (8pm to 10pm). Fibre/cable services at the postcode are subject to availability and may differ between properties within a postcode. Speeds can be affected by a range of technical and environmental factors. The speed at the property may be lower than that listed above. You can check the estimated speed and confirm availability to a property prior to purchasing on the broadband provider's website. Providers may increase charges. The information is provided and maintained by Decision Technologies Limited. **This is indicative only and based on a 2-person household with multiple devices and simultaneous usage. Broadband performance is affected by multiple factors including number of occupants and devices, simultaneous usage, router range etc. For more information speak to your broadband provider.
Map data ©OpenStreetMap contributors.




