3 bedroom end of terrace house for sale
Farrar Road, Droylsden, Manchester, M43 6FX

- PROPERTY TYPE
End of Terrace
- BEDROOMS
3
- BATHROOMS
1
- SIZE
Ask agent
- TENUREDescribes how you own a property. There are different types of tenure - freehold, leasehold, and commonhold.Read more about tenure in our glossary page.
Freehold
Key features
- NO Onward Vendor Chain
- Three Good Sized Bedrooms
- OPEN PLAN LIVING/DINING/KITCHEN
- Double Driveway
- Garage
- Versatile "Work from Home" Space
- Fantastic Garden
- Excellent Location
- Close to a Wealth of Local Amenities
- Please Quote Ref:KB1421
Description
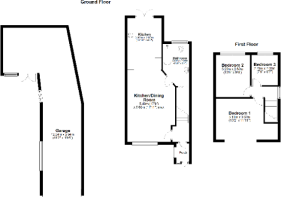
This beautifully renovated and well-maintained, end-terraced property offers a wonderful family home in an established residential area. In brief, the property comprises: Porch, OPEN PLAN LIVING with a spacious lounge, modern fitted dining/kitchen, and a beautiful bathroom. To the first floor, there are three, good sized bedrooms. The internal condition is of a high standard and must be viewed to be appreciated. The current houseproud owner has undertaken many improvements to make this property really stand out.
The property has an enclosed rear garden with patio and enjoys afternoon sunshine making it the perfect spot to enjoy those precious family moments.
To the front aspect, there is a double driveway leading to the garage and to the rear of the garage, there is a versatile space suitable for a wide range of uses such as work from home office, workshop or simply additional family space.
The surrounding area is well served by a wide range of local amenities such as the Tesco supermarket, a local precinct with many outlets, the canal nearby for walks and many clubs for all the family including Droylsden FC. There are lots of hospitality venues and with trams and buses to Manchester and Ashton a short stroll away. The M60 motorway access is only minutes away linking you to the wider UK network.
A three-bedroom family home available with no onward vendor chain.
IDEAL BUY TO LET INVESTMENT OR FOR FAMILIES OR FIRST TIME BUYERS.
For more information or to book a viewing, please call and quote reference KB1421.
- COUNCIL TAXA payment made to your local authority in order to pay for local services like schools, libraries, and refuse collection. The amount you pay depends on the value of the property.Read more about council Tax in our glossary page.
- Band: A
- PARKINGDetails of how and where vehicles can be parked, and any associated costs.Read more about parking in our glossary page.
- Garage,Driveway
- GARDENA property has access to an outdoor space, which could be private or shared.
- Private garden
- ACCESSIBILITYHow a property has been adapted to meet the needs of vulnerable or disabled individuals.Read more about accessibility in our glossary page.
- Ask agent
Energy performance certificate - ask agent
Farrar Road, Droylsden, Manchester, M43 6FX
Add an important place to see how long it'd take to get there from our property listings.
__mins driving to your place
Get an instant, personalised result:
- Show sellers you’re serious
- Secure viewings faster with agents
- No impact on your credit score
Your mortgage
Notes
Staying secure when looking for property
Ensure you're up to date with our latest advice on how to avoid fraud or scams when looking for property online.
Visit our security centre to find out moreDisclaimer - Property reference S1588909. The information displayed about this property comprises a property advertisement. Rightmove.co.uk makes no warranty as to the accuracy or completeness of the advertisement or any linked or associated information, and Rightmove has no control over the content. This property advertisement does not constitute property particulars. The information is provided and maintained by eXp UK, North West. Please contact the selling agent or developer directly to obtain any information which may be available under the terms of The Energy Performance of Buildings (Certificates and Inspections) (England and Wales) Regulations 2007 or the Home Report if in relation to a residential property in Scotland.
*This is the average speed from the provider with the fastest broadband package available at this postcode. The average speed displayed is based on the download speeds of at least 50% of customers at peak time (8pm to 10pm). Fibre/cable services at the postcode are subject to availability and may differ between properties within a postcode. Speeds can be affected by a range of technical and environmental factors. The speed at the property may be lower than that listed above. You can check the estimated speed and confirm availability to a property prior to purchasing on the broadband provider's website. Providers may increase charges. The information is provided and maintained by Decision Technologies Limited. **This is indicative only and based on a 2-person household with multiple devices and simultaneous usage. Broadband performance is affected by multiple factors including number of occupants and devices, simultaneous usage, router range etc. For more information speak to your broadband provider.
Map data ©OpenStreetMap contributors.




