
Plot for sale
Bernard Road, Brampton, Huntingdon, PE28
- PROPERTY TYPE
Plot
- SIZE
Ask agent
Key features
- Well Positioned Individual Residential Building Plot
- Ideal Self Build Opportunity
- Planning Reference 22/02143/OUT
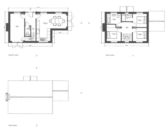
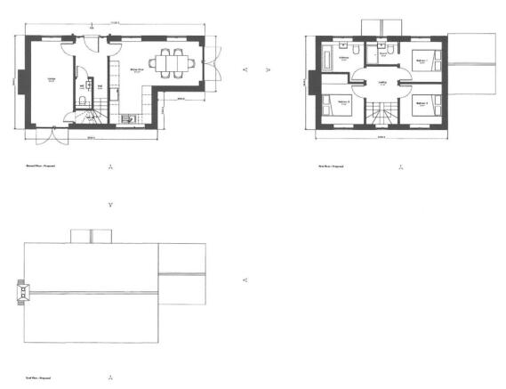
- Outline Planning Consent For A Single Three Bedroom Detached Dwelling
- Desirable Village Location
- Close To Village Green And Village Services
- All Plans And Information Are Available At Huntingdon District Council Planning Portal
Description
Situated in the heart of the desirable village of Brampton, this well positioned individual residential building plot presents a fantastic opportunity for those seeking to create their dream home in a popular village setting. With outline planning consent already secured for a single three-bedroom detached dwelling, this plot offers a blank canvas for a self-build or builders project.
Located close to the village green and a range of local services, this plot benefits from an enviable position within the village. Brampton is renowned for its strong community spirit and array of amenities including shops, cafes, and schools, making it a highly sought-after location for families and professionals alike.
The outline planning permission (Planning Reference 22/02143/OUT) granted by Huntingdon District Council provides clear guidelines and reassurance for prospective builders. Approval is in place for a thoughtfully designed three-bedroom detached dwelling, perfectly complementing the character of the surrounding homes while allowing for flexibility in the final design and layout. This makes the plot ideal for self-builders or developers looking to bring a bespoke residential property to life.
All plans and detailed information relating to the planning consent, including conditions and documentation, are readily accessible via the Huntingdon District Council Planning Portal. This transparency ensures that potential purchasers can easily review and understand the scope of development permitted and make informed decisions regarding their investment.
Don’t miss the chance to secure this individual plot and embark on a rewarding building project in a well regarded village location.
Description
A rare opportunity to acquire an individual building plot centrally located within this ever popular village setting. Close to the village green and primary school, the plot occupies a desirable and appealing location.
Planning
Outline planning permission has been granted for an individual three bedroom detached home over two storeys.
Tenure
Freehold with vacant possession upon completion.
Purchasers will be liable to pay the CIL - Community Infrastructure Levy - to Huntingdon District Council at the standard rate of £85.00 per square metre.
Brochures
Brochure 1Bernard Road, Brampton, Huntingdon, PE28
NEAREST STATIONS
Distances are straight line measurements from the centre of the postcode- Huntingdon Station1.7 miles



Notes
Disclaimer - Property reference 29935218. The information displayed about this property comprises a property advertisement. Rightmove.co.uk makes no warranty as to the accuracy or completeness of the advertisement or any linked or associated information, and Rightmove has no control over the content. This property advertisement does not constitute property particulars. The information is provided and maintained by Peter Lane & Partners, Huntingdon. Please contact the selling agent or developer directly to obtain any information which may be available under the terms of The Energy Performance of Buildings (Certificates and Inspections) (England and Wales) Regulations 2007 or the Home Report if in relation to a residential property in Scotland.
Map data ©OpenStreetMap contributors.





