1 bedroom flat for sale
Headstone Gardens, Harrow, HA2

- PROPERTY TYPE
Flat
- BEDROOMS
1
- BATHROOMS
1
- SIZE
Ask agent
Key features
- ONE BEDROOM FIRST FLOOR FLAT
- SHARE OF FREEHOLD WITH 101 YEAR LEASE REMAINING
- PREVIOUS PLANNING PERMISSION GRANTED - PA/306/E.01
- NO ONWARD CHAIN
- SPACIOUS BAY FRONTED LIVING ROOM
- RECENTLY REFURBISHED THROUGHOUT
- MODERN FITTED KITCHEN WITH INTEGRATED APPLIANCES
- CONTEMPORARY BATHROOM SUITE
- DOUBLE GLAZING & GAS CENTRAL HEATING
- GARAGE WITH VEHICLE ACCESS
Description
** SHARE OF FREEHOLD ** A recently refurbished one bedroom, first floor flat, which was previously granted planning permission to convert the loft into another bedroom with en-suite (PA/306/E.01; PA/306/P.01; PA/306/P.02; SITE PLAN). The property is conveniently located for shops and transport links and features a 15'6" bay fronted living room, modern fitted kitchen with integrated appliances, spacious bedroom and contemporary bathroom and separate W/C. Further benefits include share of freehold with a 101 year lease remaining, double glazing, gas central heating, garden/storage area, single garage with vehicle access and no onward chain.
Entrance
Entrance via front aspect frosted double glazed door, coconut matting, carpeted stairs to first floor.
Hallway
Side aspect double glazed window, picture rail, loft access, power points, radiator, carpeted flooring.
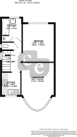
Living Room
15' 6" x 10' 10" (4.72m x 3.30m) Front aspect double glazed window into bay, spot lighting, feature open fireplace with surround, radiator, power points, phone point, TV aerial, carpeted flooring.
Kitchen
7' 7" x 6' 8" (2.31m x 2.03m) Front aspect part frosted double glazed window, range of wall and base level units with square edge work surfaces, glass upstands and splash back, integrated circular sink with drainer, integrated 'AEG' electric hob with oven below and 'AEG' overhead extractor fan, integrated 'Sharp' slimline dishwasher, integrated fridge/freezer, power points, wooden flooring.
Bedroom
12' 6" x 10' 6" (3.81m x 3.20m) Rear aspect double glazed window, radiator, power points, carpeted flooring.
Bathroom
7' 10" x 6' 8" (2.39m x 2.03m) Rear aspect frosted double glazed window, spot lighting, panel enclosed bath with mixer tap, wall mounted shower with attachment, glass shower screen, extractor fan, wall mounted heated towel rail, wall mounted mirror, tile effect panelled walls, cupboard housing wall mounted boiler, plumbed for washing machine, lino flooring.
Garden/Storage Area
Side access to garden/storage area via wooden gate, fence enclosed.
Garage
Single garage with up and over door, vehicle access via side road.
Brochures
Brochure 1- COUNCIL TAXA payment made to your local authority in order to pay for local services like schools, libraries, and refuse collection. The amount you pay depends on the value of the property.Read more about council Tax in our glossary page.
- Ask agent
- PARKINGDetails of how and where vehicles can be parked, and any associated costs.Read more about parking in our glossary page.
- Yes
- GARDENA property has access to an outdoor space, which could be private or shared.
- Yes
- ACCESSIBILITYHow a property has been adapted to meet the needs of vulnerable or disabled individuals.Read more about accessibility in our glossary page.
- Ask agent
Headstone Gardens, Harrow, HA2
Add an important place to see how long it'd take to get there from our property listings.
__mins driving to your place
Get an instant, personalised result:
- Show sellers you’re serious
- Secure viewings faster with agents
- No impact on your credit score
Your mortgage
Notes
Staying secure when looking for property
Ensure you're up to date with our latest advice on how to avoid fraud or scams when looking for property online.
Visit our security centre to find out moreDisclaimer - Property reference 29940391. The information displayed about this property comprises a property advertisement. Rightmove.co.uk makes no warranty as to the accuracy or completeness of the advertisement or any linked or associated information, and Rightmove has no control over the content. This property advertisement does not constitute property particulars. The information is provided and maintained by Christopher Edwards, Rayners Lane, Pinner. Please contact the selling agent or developer directly to obtain any information which may be available under the terms of The Energy Performance of Buildings (Certificates and Inspections) (England and Wales) Regulations 2007 or the Home Report if in relation to a residential property in Scotland.
*This is the average speed from the provider with the fastest broadband package available at this postcode. The average speed displayed is based on the download speeds of at least 50% of customers at peak time (8pm to 10pm). Fibre/cable services at the postcode are subject to availability and may differ between properties within a postcode. Speeds can be affected by a range of technical and environmental factors. The speed at the property may be lower than that listed above. You can check the estimated speed and confirm availability to a property prior to purchasing on the broadband provider's website. Providers may increase charges. The information is provided and maintained by Decision Technologies Limited. **This is indicative only and based on a 2-person household with multiple devices and simultaneous usage. Broadband performance is affected by multiple factors including number of occupants and devices, simultaneous usage, router range etc. For more information speak to your broadband provider.
Map data ©OpenStreetMap contributors.




