
3 bedroom semi-detached house for sale
Edington Way, Kings Hill, ME19 4SW

- PROPERTY TYPE
Semi-Detached
- BEDROOMS
3
- BATHROOMS
2
- SIZE
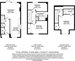
1,179 sq ft
110 sq m
- TENUREDescribes how you own a property. There are different types of tenure - freehold, leasehold, and commonhold.Read more about tenure in our glossary page.
Freehold
Key features
- Semi-Detached House
- High Specification Home
- Stunning Open Plan Kitchen/Diner/Living Room
- 3 Double Bedrooms
- Plenty of Storage & Wardrobes
- Modern Bathroom, Ensuite & Cloakroom
- Rear Garden
- Driveway for 2 Cars & Plenty of Visit Parking
Description
A superb 3 bedroom semi detached home arranged over 3 floors. Being just 2 years old it is the perfect home for anyone wanting generous bedrooms sizes and modern, high specification interior. The property is conveniently located walking distance of the lovely Linear Park and also provides easy access to shops, gyms, schools and amenities of Kings Hill..
Internally the accommodation comprises entrance hall, coat handing recess, storage cupboard, cloakroom, kitchen with integral appliances, breakfast bar that is open plan to the bright lounge/dining room with feature fire and doors to the garden.
To the first floor are two fantastic size bedrooms (bedroom 2 having built in wardrobes) and the main bathroom. To the second floor is a large main bedroom with en-suite, walk in wardrobe & further storage cupboard that is also used as walk in wardrobe by the current owners.
Externally the property has parking for two/three vehicles to the side of the property and enjoys an easy to maintain rear garden.
Local Information For Kings Hill - Kings Hill is a modern, "American-style concept village" situated in the heart of Kent that entwines quality of life, convenience and charm to create one of the most desirable places to live and bring up a family in England. Nestled amongst attractive, landscaped gardens and protected woodland areas the Management team at Kings Hill provides landscaping and maintenance for the local residents, which means that the area is safe, clean and consistently maintained to a high standard. Kings Hill offers excellent commuting facilities with easy access to the M20, a regular bus service to the nearby towns of Tonbridge, Maidstone and West Malling, as well as a direct bus service to West Malling station, where trains run to London Victoria, Charing Cross and Ashford International. The station is less than 1 mile away. Kings Hill has its own toddlers group, a pre-school nursery, 3 highly coveted primary schools and various clubs. The range of sports and leisure facilities are excellent. It includes shops, eateries, 18-hole PGA championship golf course, David Lloyd health club, sports park, community centre, numerous play parks and much more. Two miles away is the beautiful town of West Malling and all within ten miles are Royal Tunbridge Wells, Maidstone, Tonbridge and Paddock Wood. Staying closer to home Kings Hill offers Liberty Square - the hub of the village, where there is Asda, Aldi and Waitrose supermarkets, eateries and further amenities (such as hairdressers, pharmacy, doctors, dentist and much more) can be found.
Disclaimer - All dimensions are approximate and any floor plans are for guidance purposes only. Reference to appliances and/or services does not imply that they are necessarily in working order. Whilst we endeavor to make our sales particulars as accurate as possible, all interested parties must verify their accuracy themselves.
Brochures
Edington Way, Kings Hill, ME19 4SWBrochure- COUNCIL TAXA payment made to your local authority in order to pay for local services like schools, libraries, and refuse collection. The amount you pay depends on the value of the property.Read more about council Tax in our glossary page.
- Band: E
- PARKINGDetails of how and where vehicles can be parked, and any associated costs.Read more about parking in our glossary page.
- Yes
- GARDENA property has access to an outdoor space, which could be private or shared.
- Yes
- ACCESSIBILITYHow a property has been adapted to meet the needs of vulnerable or disabled individuals.Read more about accessibility in our glossary page.
- Ask agent
Edington Way, Kings Hill, ME19 4SW
Add an important place to see how long it'd take to get there from our property listings.
__mins driving to your place
Get an instant, personalised result:
- Show sellers you’re serious
- Secure viewings faster with agents
- No impact on your credit score



Your mortgage
Notes
Staying secure when looking for property
Ensure you're up to date with our latest advice on how to avoid fraud or scams when looking for property online.
Visit our security centre to find out moreDisclaimer - Property reference 34448176. The information displayed about this property comprises a property advertisement. Rightmove.co.uk makes no warranty as to the accuracy or completeness of the advertisement or any linked or associated information, and Rightmove has no control over the content. This property advertisement does not constitute property particulars. The information is provided and maintained by Kings Hill Properties, Kings Hill. Please contact the selling agent or developer directly to obtain any information which may be available under the terms of The Energy Performance of Buildings (Certificates and Inspections) (England and Wales) Regulations 2007 or the Home Report if in relation to a residential property in Scotland.
*This is the average speed from the provider with the fastest broadband package available at this postcode. The average speed displayed is based on the download speeds of at least 50% of customers at peak time (8pm to 10pm). Fibre/cable services at the postcode are subject to availability and may differ between properties within a postcode. Speeds can be affected by a range of technical and environmental factors. The speed at the property may be lower than that listed above. You can check the estimated speed and confirm availability to a property prior to purchasing on the broadband provider's website. Providers may increase charges. The information is provided and maintained by Decision Technologies Limited. **This is indicative only and based on a 2-person household with multiple devices and simultaneous usage. Broadband performance is affected by multiple factors including number of occupants and devices, simultaneous usage, router range etc. For more information speak to your broadband provider.
Map data ©OpenStreetMap contributors.





