
2 bedroom apartment for rent
Regents Court

Letting details
- Let available date:
- 28/02/2026
- Deposit:
- Ask agentA deposit provides security for a landlord against damage, or unpaid rent by a tenant.Read more about deposit in our glossary page.
- Min. Tenancy:
- Ask agent How long the landlord offers to let the property for.Read more about tenancy length in our glossary page.
- Let type:
- Long term
- Furnish type:
- Unfurnished
- Council Tax:
- Ask agent
This property is Built For Renters.
- PROPERTY TYPE
Apartment
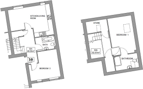
- BEDROOMS
2
- BATHROOMS
1
- SIZE
1,097 sq ft
102 sq m
Key features
- Reduced Deposit Option Available
- Parking Available on Application
- 24/7 Maintenance
- Pet Friendly
- 5 mins Drive to Durham City Centre
Description
Welcome to Regents Court by Ocasa Homes
Discover stylish living in the heart of Durham. Located on Bent House Lane, Regents Court is perfect for those seeking convenience, comfort, and modern city living.
Your Space & Shared Living
Enjoy privacy and comfort in your unfurnished flat:
-Two spacious double bedrooms, ready for your personal touch
-Large windows providing natural light and scenic views
-Bright and airy living space, ideal for relaxation and socialising
-Modern kitchen with integrated appliances and ample storage
-Two bathrooms, including an en-suite to the master bedroom
Beyond your flat, benefit from:
-A communal garden for outdoor relaxation
-On-site parking for added convenience
Prime Location
Regents Court puts Durham’s best right on your doorstep:
-Short distance to the city centre with shops, restaurants, and entertainment
-Close to scenic countryside walks and green spaces
-20-minute walk to Durham University
Why Choose Ocasa?
We make renting simple, secure, and stress-free. With Ocasa, you’ll benefit from:
-Reduced deposit options (just one week's rent)
-Fast, efficient referencing
-Emergency 24/7 maintenance support
-Dedicated local experts
-Tenant referral rewards
Book Your Viewing Today
Don’t miss out—contact us now to arrange a viewing or find out more about availability!
The Legal Bits
-Minimum 12-month tenancy
-Income must meet affordability criteria (yearly rent multiplied by 2.5)
-Referencing will include employment, income, and credit checks for all adults over 18
-Images are for illustrative purposes and may not represent the exact property
Important Notice
Ocasa Homes may instruct partner agents to conduct viewings on our behalf. By requesting a viewing, your contact details may be shared with them. Contact us if you have any concerns before submitting your request.
Regents Court
- COUNCIL TAXA payment made to your local authority in order to pay for local services like schools, libraries, and refuse collection. The amount you pay depends on the value of the property.Read more about council Tax in our glossary page.
- Ask agent
- PARKINGDetails of how and where vehicles can be parked, and any associated costs.Read more about parking in our glossary page.
- Yes
- GARDENA property has access to an outdoor space, which could be private or shared.
- Ask agent
- ACCESSIBILITYHow a property has been adapted to meet the needs of vulnerable or disabled individuals.Read more about accessibility in our glossary page.
- Ask agent
Energy performance certificate - ask agent
On-site perks of living at this Built for Renters development
Additional costs may apply for some services – please check the full property description above.
Regents Court
Add an important place to see how long it'd take to get there from our property listings.
__mins driving to your place
Notes
Staying secure when looking for property
Ensure you're up to date with our latest advice on how to avoid fraud or scams when looking for property online.
Visit our security centre to find out moreDisclaimer - Property reference 219725_p0193145_REG018Z. The information displayed about this property comprises a property advertisement. Rightmove.co.uk makes no warranty as to the accuracy or completeness of the advertisement or any linked or associated information, and Rightmove has no control over the content. This property advertisement does not constitute property particulars. The information is provided and maintained by Ocasa Homes, Regents Court. Please contact the selling agent or developer directly to obtain any information which may be available under the terms of The Energy Performance of Buildings (Certificates and Inspections) (England and Wales) Regulations 2007 or the Home Report if in relation to a residential property in Scotland.
*This is the average speed from the provider with the fastest broadband package available at this postcode. The average speed displayed is based on the download speeds of at least 50% of customers at peak time (8pm to 10pm). Fibre/cable services at the postcode are subject to availability and may differ between properties within a postcode. Speeds can be affected by a range of technical and environmental factors. The speed at the property may be lower than that listed above. You can check the estimated speed and confirm availability to a property prior to purchasing on the broadband provider's website. Providers may increase charges. The information is provided and maintained by Decision Technologies Limited. **This is indicative only and based on a 2-person household with multiple devices and simultaneous usage. Broadband performance is affected by multiple factors including number of occupants and devices, simultaneous usage, router range etc. For more information speak to your broadband provider.
Map data ©OpenStreetMap contributors.





