Glenbourne House, 63 Burscough Street, Ormskirk, Lancashire, L39
- SIZE AVAILABLE
1,241 sq ft
115 sq m
- SECTOR
Office to lease
Lease details
- Lease available date:
- Ask agent
Key features
- Well Appointed Upper Floor Offices
- Open plan floors
- Centrally Located Close to All Town Centre Amenities
- Parking Available
- Alternative Uses Considered
- Available by way of a new lease
- No VAT on rental or service charge
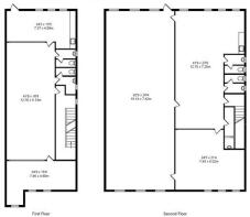
- First floor apporx 1,241 sq ft NIA
- Second Floor 2,790 sq ft
- Available individually or combined
Description
The first floor provides predominantly open plan office accommodation with good natural light, supplemented by ancillary areas and W.C. facilities. The layout lends itself to a range of occupiers, with flexibility for further partitioning if required.
The second floor offers a substantial open plan office environment extending across the full depth of the building, benefitting from a series of dormer windows to the front elevation and additional windows to the rear, providing excellent levels of natural light. The floor also incorporates W.C. facilities and a dedicated store.
The accommodation is suitable on a floor by floor basis or combined.
Heating is provided via a high efficiency combination boiler serving steel panel radiators. The office areas benefit from LG7 compliant surface mounted lighting, perimeter power and data trunking, and an addressable fire alarm system with L1 coverage throughout the building.
4 car parking spaces are provided in total, with 2 spaces being proposed for each floor. The property is however adjacent to WLBC pay and display car park off Burscough Street.
Brochures
Glenbourne House, 63 Burscough Street, Ormskirk, Lancashire, L39
NEAREST STATIONS
Distances are straight line measurements from the centre of the postcode- Ormskirk Station0.1 miles
- Aughton Park Station1.2 miles
- Town Green Station2.1 miles
Notes
Disclaimer - Property reference 2701LH. The information displayed about this property comprises a property advertisement. Rightmove.co.uk makes no warranty as to the accuracy or completeness of the advertisement or any linked or associated information, and Rightmove has no control over the content. This property advertisement does not constitute property particulars. The information is provided and maintained by Fitton Estates, Merseyside/Lancashire. Please contact the selling agent or developer directly to obtain any information which may be available under the terms of The Energy Performance of Buildings (Certificates and Inspections) (England and Wales) Regulations 2007 or the Home Report if in relation to a residential property in Scotland.
Map data ©OpenStreetMap contributors.





