5 bedroom semi-detached house for sale
Weaver Avenue, Burscough, L40 4LE

- PROPERTY TYPE
Semi-Detached
- BEDROOMS
5
- BATHROOMS
3
- SIZE
Ask agent
- TENUREDescribes how you own a property. There are different types of tenure - freehold, leasehold, and commonhold.Read more about tenure in our glossary page.
Ask agent
Key features
- Move in ready condition with well-maintained interiors and exteriors
- Stylish open plan lounge/dining area with excellent natural light
- Contemporary décor with feature wall and modern finishes
- Modern breakfast kitchen with integrated appliances and breakfast bar
- Five spacious bedrooms
- Large front-facing window offering a bright and airy feel
- Generous rear garden with mature planting and open lawn
- Stunning covered timber garden lodge, perfect for relaxing or entertaining
- Large garage with driveway and off road parking
- Highly desirable residential location
Description
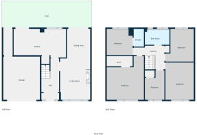
The property welcomes you into a bright, spacious hallway that immediately sets the tone for the home’s clean, contemporary aesthetic. The downstairs of the home is finished with a warm wood effect flooring and a cohesive modern colour palette. To the right of the hallway, you’ll find a generous living room, flooded with natural light from large windows and offering ample space for family relaxation and entertaining. To the rear, the home opens out into a spectacular open plan kitchen and dining space—the heart of the home. The kitchen has been finished to an exceptional standard, complete with sleek cabinetry, integrated appliances, modern lighting, and an attractive breakfast bar perfect for casual dining. The adjoining dining area provides direct views and access to the rear garden, creating a seamless indoor outdoor flow ideal for entertaining. A convenient internal door leads through to the integral garage, offering excellent storage.
The spacious landing leads to five beautifully sized bedrooms, each offering excellent proportions rarely found in modern homes. Whether used as bedrooms, home offices, hobby rooms or guest space, the versatility is outstanding.
The spacious primary bedroom includes fitted wardrobes, while the remaining bedrooms are served by a modern and spacious family bathroom. Bedroom 2 features a private en-suite, with bedroom 3 benefiting from a walk in dressing room. A dedicated W.C. adds further convenience for busy households.
One of the standout features of this property is the generous, beautifully landscaped rear garden. Designed to offer both practicality and tranquillity, it features a wide lawn, mature shrubs, and established trees that provide year round greenery and privacy. At the far end, the garden opens into a charming timber built covered seating area, thoughtfully crafted to create an outdoor haven. Whether used for morning coffee, evenings with friends, or peaceful downtime, this sheltered space extends the home’s living area into the garden and can be enjoyed in all seasons.
Beyond the garden, the property backs directly onto open countryside, offering exceptional privacy, far reaching views and a sense of space rarely available in this location.
To the front, there is ample off road parking along with access to the integral garage.
Set in a quiet and established residential area, the property is perfectly placed for access to well regarded schools, transport links, shopping amenities and countryside walking routes. It strikes the perfect balance between convenience and tranquility—ideal for families seeking a peaceful retreat without sacrificing access to everyday essentials.
- COUNCIL TAXA payment made to your local authority in order to pay for local services like schools, libraries, and refuse collection. The amount you pay depends on the value of the property.Read more about council Tax in our glossary page.
- Ask agent
- PARKINGDetails of how and where vehicles can be parked, and any associated costs.Read more about parking in our glossary page.
- Yes
- GARDENA property has access to an outdoor space, which could be private or shared.
- Yes
- ACCESSIBILITYHow a property has been adapted to meet the needs of vulnerable or disabled individuals.Read more about accessibility in our glossary page.
- Ask agent
Energy performance certificate - ask agent
Weaver Avenue, Burscough, L40 4LE
Add an important place to see how long it'd take to get there from our property listings.
__mins driving to your place
Get an instant, personalised result:
- Show sellers you’re serious
- Secure viewings faster with agents
- No impact on your credit score
Your mortgage
Notes
Staying secure when looking for property
Ensure you're up to date with our latest advice on how to avoid fraud or scams when looking for property online.
Visit our security centre to find out moreDisclaimer - Property reference S1590211. The information displayed about this property comprises a property advertisement. Rightmove.co.uk makes no warranty as to the accuracy or completeness of the advertisement or any linked or associated information, and Rightmove has no control over the content. This property advertisement does not constitute property particulars. The information is provided and maintained by eXp UK, North West. Please contact the selling agent or developer directly to obtain any information which may be available under the terms of The Energy Performance of Buildings (Certificates and Inspections) (England and Wales) Regulations 2007 or the Home Report if in relation to a residential property in Scotland.
*This is the average speed from the provider with the fastest broadband package available at this postcode. The average speed displayed is based on the download speeds of at least 50% of customers at peak time (8pm to 10pm). Fibre/cable services at the postcode are subject to availability and may differ between properties within a postcode. Speeds can be affected by a range of technical and environmental factors. The speed at the property may be lower than that listed above. You can check the estimated speed and confirm availability to a property prior to purchasing on the broadband provider's website. Providers may increase charges. The information is provided and maintained by Decision Technologies Limited. **This is indicative only and based on a 2-person household with multiple devices and simultaneous usage. Broadband performance is affected by multiple factors including number of occupants and devices, simultaneous usage, router range etc. For more information speak to your broadband provider.
Map data ©OpenStreetMap contributors.





